
MODGAS-XWR2 Technical Guide
OVERVIEW
3
General Information
Features
The MODGAS-XWR2 Controller provides the following:
• Can control two (2) Gas Valves using input from
Proof of Ignition Modules
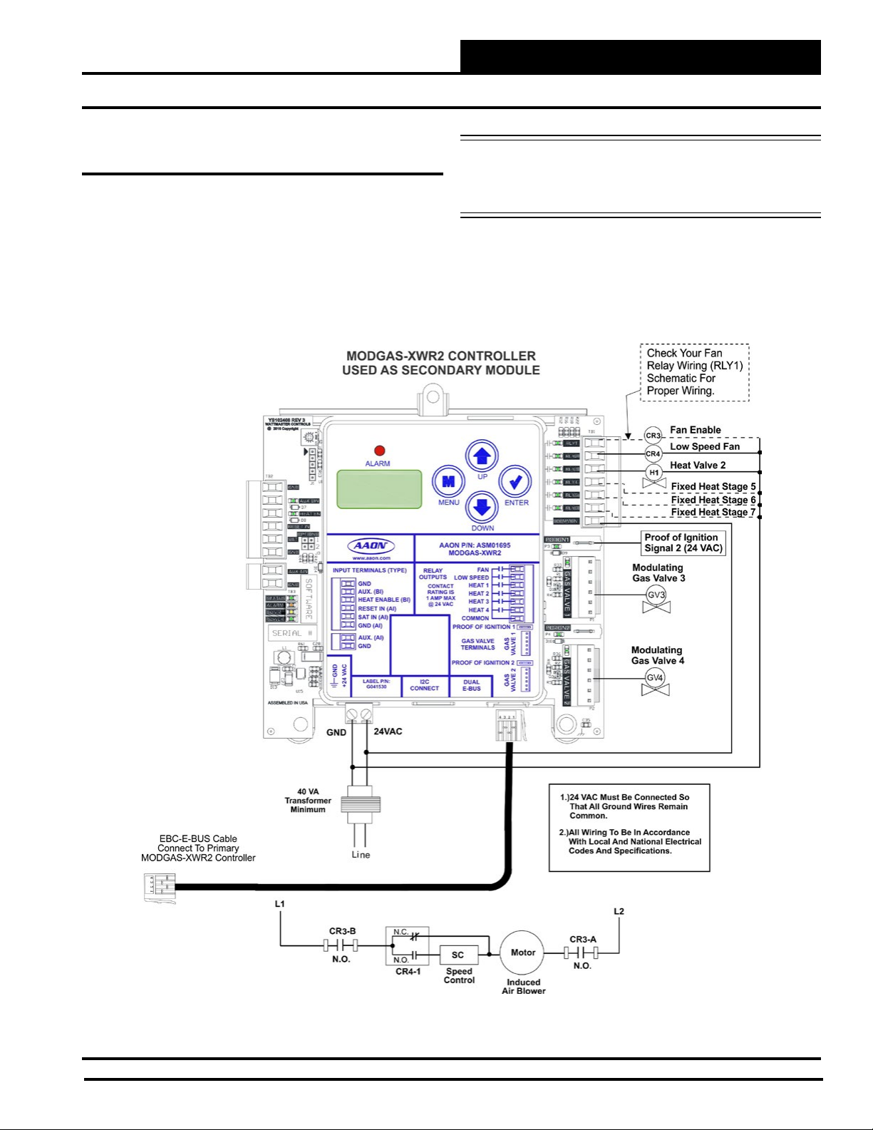
• A second MODGAS-XWR2 Controller can be added as a
slave to allow control of 4 modulating gas valves.
• Monitors Supply Air Temperature and Supply Air Reset
and modulates gas valves to maintain Setpoint
• Provides active relays to control the Fan, Fan Speed, and
Heat Stages
• Controls up to 4 stages of Heat with one Controller
• Contains a 2 x 8 LCD character display and 4 buttons
that allow for status display, setpoint changes, and
conguration changes
NOTE: The MODGAS-XWR2 Controller contains no user-
serviceable parts. Contact qualied technical personnel
if your MODGAS-XWR2 Controller is not operating
correctly.
Overview
The MODGAS-XWR2 Controller (previously referred to as the MOD-
GAS-XWR-1) is designed to be used with White-Rogers®valves only.
It will modulate up to two (2) White-Rogers®gas valves to maintain a
desired Discharge (Supply) Air Temperature (up to four (4) modulating
gas valves may be controlled when a second MODGAS-XWR2 Control-
ler congured as a slave module). The MODGAS-XWR2 Controller also
controls the speed of the induced draft fan to maintain proper combustion
in the heat exchanger. See Figure 1, page 4.
NOTE: The MODGAS-XWR2 provides (2) more relays than the
MODGAS-XWR Controller. The MODGAS-XWR2 Controller can
replace the MODGAS-XWR Controller. See page 36 for drop-in re-
placement instructions.
The controller can be used as a stand-alone unit or be connected to
a 12 Relay E-BUS Expansion Module (stand-alone only) or VCCX2
Controller, VCB-X Controller, or VCM-X E-BUS (I2C) Controller us-
ing a modular cable.
The MODGAS-XWR2 Controller can be congured for: one (1) modu-
lating valve with one ignitor as one stage, two (2) modulating valves with
one ignitor as one stage, two (2) modulating valves with two ignitors as
one stage, and two (2) modulating valves, with two ignitors as two stages.
Two MODGAS-XWR2 Controllers (Primary/Secondary) may be con-
gured to control four (4) modulating valves as one stage - two valves
with one ignitor on each board. In addition, two Controllers may be
congured to control four (4) modulating valves with two ignitors on
each board. The rst valve on each board is stage one and the second
valve on each board is stage two. NOTE: Primary/Secondary congu-
ration is not supported using I2C communications (VCM-X E-BUS).
The MODGAS-XWR2 Controller can also control or eect control of ad-
ditional xed valves for additional stages of heat by using the additional
Heat Relays on the board itself. When the MODGAS-XWR2 is attached
to one of the listed Unit Controllers, these additional stages are aected
through the Unit Controller. In stand-alone mode, these additional xed
heat stages can be increased by attaching a 12 Relay E-BUS Expansion
Module. And in communicating mode, additional xed heat stages can
be increased by attaching a 12 Relay E-BUS Expansion Module to the
Unit Controller.