
GI
I E
TECHNICAL GUIDE
95.5% AFUE SINGLE STAGE
RESIDENTIAL GAS FURNACES
MULTI-POSITION
MODELS: TG9S
NATURAL GAS
60 - 120 MBH INPUT
Due to continuous product improvement, specifications
are subject to change without notice.
Additional rating information can be found at
www.ahridirectory.org
WARRANTYSUMMARY
A 20-year limited warranty on heat exchangers in residen-
tial applications.
A 10-year warranty on the heat exchanger in commercial
applications. 12 Months Parts.
Standard 5-year limited Parts warranty.
Residential Only
Extended lifetime heat exchanger and 10-year limited
parts warranty when product is registered online
within 90 days of purchase for replacement or closing
for new home construction. (Residential Only)
See Limited Warranty certificate in Users Information Manual for details.
DESCRIPTION
These compact units employ induced combustion, reliable hot
surface ignition and high heat transfer aluminized tubular heat
exchangers. The units are factory shipped for installation in
upflow or horizontal applications and may be converted for
downflow applications.
These furnaces are designed for residential installation in a
basement, closet, alcove, attic, recreation room or garage and
are also ideal for commercial applications. All units are factory
assembled, wired and tested to assure safe dependable and
economical installation and operation.
These units are Category IV listed and may be vented either
through side wall or roof applications using approved plastic
combustion air and vent piping.
FEATURES
• Easily applied in upflow, horizontal left or right, or downflow
installation with minimal conversion necessary.
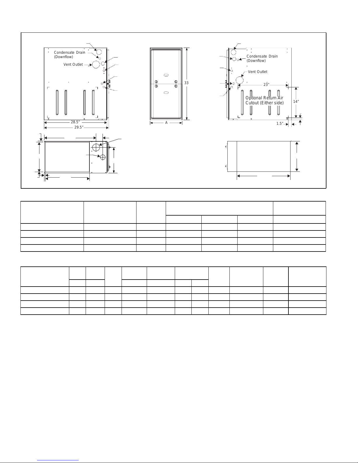
• Compact, easy to install, ideal height 33" tall cabinet.
• Blower-off delay for cooling SEER improvement.
• Easy access to controls to connect power/control wiring.
• Built-in, high level self diagnostics with fault code displays
standard on integrated control module for reliable opera-
tion.
• Low unit amp requirement for easy replacement applica-
tion.
• Single wire twinning or staging feature available.
• All models are convertable to use propane (LP) gas.
• Electronic Hot Surface Ignition saves fuel cost with
increased dependability and reliability.
• 100% shut off main gas valve for extra safety.
• 4 speed, direct drive PSC motor.
• 24V, 40 VA control transformer and blower relay supplied
for add-on cooling.
• Hi-tech tubular aluminized steel primary heat exchanger.
• Secondary heat exchanger made of corrosion resistant
stainless steel materials.
• Timed on, adjustable off blower capability for maximum
comfort.
• Blower door safety switch.
• Solid removable bottom panel allows easy conversion.
• Airflow leakage less than 1% of nominal airflow at duct-
blaster conditions.
• No knockouts to deal with, making installation easier.
• Movable duct connector flanges for application flexibility.
• Quiet inducer operation.
• Inducer rotates for easy conversion of venting options.
• Fully supported blower assembly for easy access and
removal of blower.
• External air filters used for maximum flexibility in meeting
customers IAQ needs.
• Protection included from air intake, exhaust vent, or con-
densate blockage.
• No special vent termination required.
• 1/4 turn knobs provided for easy door removal.
• Internal condensate trap design (patent pending) provides
condensate management options and is self-priming to
prevent nuisance problems.
• Venting applications - may be installed as either 2-pipe
(sealed combustion) or single-pipe vent (using indoor com-
bustion air).
FOR DISTRIBUTION USE ONLY - NOT TO BE USED AT POINT OF RETAIL SALE