
Planning Information
ESeries Built-In Double Ovens
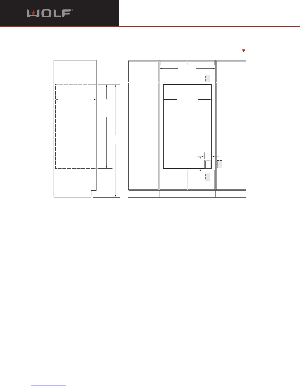
MODELS DO30-2F/S AND DO30-2U/S
Dimensions in parentheses are in
millimeters unless otherwise specified. 6
INSTALLATION NOTES
Refer to the illustrations and specifications
for overall dimensions, finished rough opening
dimensions and installation specifics.
For ease of installation, Wolf recommends
using a 33" (838) wide cabinet with the E
Series double oven in a standard installation
and a 36" (914) wide cabinet in a flush inset
installation. The cabinet base platform must be
able to support 400 lbs (181 kg).
Wolf E Series built-in ovens may be used in
astandard installation, where the face trim
overlaps stiles and rails, or in a flush inset
installation with the front of the oven flush with
surrounding cabinetry. Refer to the illustrations
on pages 4 and 5.
For standard installations, the oven is
installed byinserting into cabinetry from the
front. The oven has a face trim on all four sides
and will overlap stiles and rails. The trim
overlaps 5/8"(16) on the top, 1/8"(3) on the
bottom and 3/4"(19) on each side.
The flush inset installation requires the oven
to be recessed into the cabinet. A minimum 33"
(838) wide and 25" (635) deep cabinet is
needed if you want the front of the oven to be
flush with surrounding cabinetry.
E Series double ovens require a separate,
grounded 3-wire 240/208 V AC, 60 Hz, 50 amp
service with its own circuit breaker. Locate
the electrical supply within the shaded area
shown in the illustration for your specific
installation on pages 4 and 5.
IMPORTANT NOTE: Unless you are using
cabinets deeper than 24" (610) for a standard
installation or 25" (635) for a flush inset instal-
lation, it is recommended that the electrical
supply be placed in an adjacent cabinet within
reach of the conduit. Refer to the Installation
illustrations on pages 4 and 5 for location of
the electrical supply for your specific installa-
tion.
You must follow all National Electrical Code
regulations. In addition, be aware of local codes
and ordinances when installing your service.
The Wolf E Series double oven may be
installed in combination with a Wolf warming
drawer.Refer to page 7 for specifications.
Refer to the installation instructions
shipped with each Wolf product for detailed
specifications.
For flush inset installations, the inside edges
of the rough opening must be finished, as
they will be exposed when the oven door is
open. These edges should be stained
instead of having a laminated surface, to
avoid damage from high temperatures
during self-clean.