
CARATTERISTICHE TECNICHE DELL’ALIMENTATORE Art. 931A
Alimentatore con custodia in materiale termoplastico grigio, predisposto per montaggi
su quadri con barra DIN ad omega con un ingombro di 8 moduli oppure con fissaggio
a parete tramite tasselli.
L’alimentatore è munito di un doppio generatore di nota elettronico che si sostituisce
alla tradizionale chiamata in alternata su ronzatore o campanello. Il segnale sonoro
dispone di due tonalità differenziate (presenti ai morsetti C1-C2) permettendo così
l’individuazione immediata del punto da cui si effettua la chiamata (ingresso principale,
cancello, garage, ecc.); ciò permette di utilizzare per la diffusione del suono un unico
altoparlante incorporato nel citofono stesso.
L’utilizzo del morsetto C1 come comune pulsanti per le chiamate da targa permette
l’attivazione di un segnale sonoro nella targa stessa nel momento in cui si effettuano le
chiamate verso i citofoni. Inoltre questo alimentatore è stato predisposto per il funzion-
amento con citofoni per chiamata in alternata; per tale utilizzo è necessario utilizzare il
morsetto CP come comune pulsanti per le chiamate da targa. Anche in questo caso il
morsetto CP determina un segnale sonoro in targa.
PRINCIPIO DI FUNZIONAMENTO
Con questo alimentatore si possono realizzare due tipi di impianto:
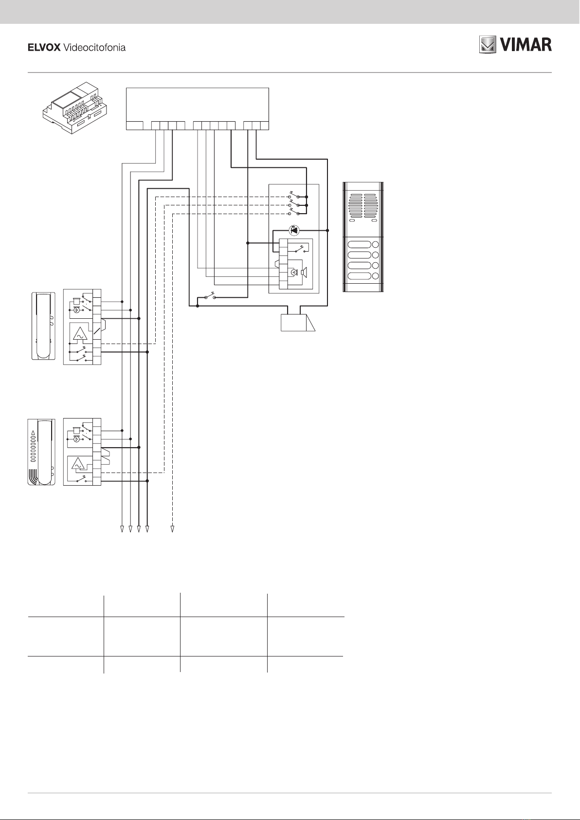
1) Comunicazione semplice tra i citofoni interni e il posto esterno (Art. 930). Schemi
c3693, c3694.
2) Comunicazione tra il posto esterno (Art. 930) e i citofoni interni con segreto di con-
versazione tra utente e utente. In questo caso solamente il citofono chiamato dal
posto esterno è abilitato alla conversazione e all’apertura dell’eventuale serratura.
Schema c3762, c3763.
TECHNICAL CHARACTERISTICS OF POWER SUPPLY ART. 931A
Power supply in grey ABS housing; preset for mounting on cases with DIN 8-module
support or with expanding plugs with screws.
This power supply features a dual electronic tone generator which replaces the tradi-
tional alternating current call on a buzzer or bell. The sound signal has two different
tones (on terminals C1-C2), enabling users to immediately identify which point is calling
(main entrance, gate, garage, etc.). This solution also makes it possible to use a single
loudspeaker built into the phone itself to produce the sound. The use of C1 terminal for
push-buttons commun wire for calls coming from the panel enables the activation of an
acoustic signal in the same panel when calls are made to the interphones.
Furthermore, this power supplier has been preset for operation with interphones with
A.C. call; for such purpose terminal “CP” must be used as push-buttons “commun”
terminal for calls from the door entry panel, which also routes an acoustic sound to
the panel.
OPERATING INSTRUCTIONS
This power supply can be used for two types of systems:
1) Simple communication between the inside phones and outdoor unit (Art. 930).
Diagram c3693, c3694.
2) Communication between the speech unit (Art. 930) and inside phones with conver-
sation privacy between users. In this case only the phone called from the outdoor
unit is enabled for conversation and release of the lock, if any, on the door. Diagram
c3762, c3763.
CARACTÉRISTIQUES TECHNIQUES DE L’ALIMENTATION ART. 931A
Alimentation avec boîtier en matière thermoplastique grise; prédisposée pour mon-
tages su barre DIN à 8 modules ou pour le montage à paroi avec vis à goujons.
Grâce à cet alimentation, on peut réaliser deux types d’installation:
L’alimentation est dotée d’un double générateur de note électronique qui remplace
l’appel traditionnel en courant alternatif sur ronfleur ou sonnette. Le signal sonore dis-
pose de deux tonalités différenciées (présentes aux bornes C1-C2), ce qui permet
d’identifier immédiatement l’endroit d’ou l’appel est effectué (entrée principale, grille,
garage, etc.) et d’utiliser un seul haut-parleur incorporé dans l’interphone lui-même
pour la diffusion du son.
L’emploi de la borne C1 comme commun boutons-poussoirs pour les appels depuis
la plaque de rue permet l’activation d’un signal sonore dans la même plaque de rue
au moment dans lequel on effectue des appels vers les postes d’appartement. De
plus, cette alimentation a été predisposée pour le fonctionnement avec postes d’ap-
partement avec appel en C.A.; pour cet emploi il est nécessaire d’utiliser la borne CP
comme commun boutons-poussoirs pour les appels depuis la plaque de rue, laquelle
determine aussi un signal sonore sur la plaque de rue.
INSTRUCTIONS POUR LE FONCTIONNEMENT
1) Communication simple entre les interphones intérieurs et le poste extérieur (Art.
930). Schéma c3693, c3694.
2) Communication entre le poste extérieur (Art. 930) et les interphones intérieurs avec
secret de conversation entre les utilisateurs. Dans ce cas, seul l’interphone appelé
du poste extérieur est habilité à la conversation et à l’ouverture de l’éventuelle
gâche. Schéma c3762, c3763.
TECNISCHE DATEN DES NETZGERÄTS ART. 931A
Netzgerät mit graues ABS-Gehäuse. Vorbereitet für Montage auf DIN-Schiene oder
Wandmontage mit Schrauben and Dübeln.
Mit diesem Netzgerät können zwei Anlagentypen aufgebaut werden:
Das Netzgerät ist mit einem Doppeltonerzeuger ausgestattet, der das herkömmliche
Wechselstrom-Rufsystem mit Summer oder Läutwerk ersetzt. Das Tonsignal verfügt
über zwei unterschiedliche Tonhöhen (an den Klemmen C1-C2), so daß sofort die
Herkuftsstelle des anrufes feststellbar ist (Haupteingang, Tor, Garage usw.). Für die
Ausgabe des Tones kann ein einziger Lautsprecher verwendet werden, der im Haus-
telefon eingebaut ist. Die Verwendung der C1 Klemme für den Tastengemeinsam-
draht für ankommende Rufe aus dem Klingeltableau ermöglicht die Aktivierung eines
akustischen Signals als Rufe zu den Haustelefonen durchgeführt werden. Außerdem
ist dieses Netzgerät vorbereitet für Betrieb mit Wechselstromrufhaustelefonen; zum
diesem Zweck ist die “CP” Klemme für Rufe aus dem Klingeltableau wie Tastenge-
meinsamklemme zu benutzen, die wird auch einen akustischen Signal zum Klingelt-
ableau senden.
FUNKTIONWEISE
1) Einfache Kommunikation zwischen den Haustelefonen und der Außenstelle (Art.
930). Schaltplan c3693, c3694.
2) Kommunication zwischen der Außenstelle (Art. 930) und den Haustelefonen mit
Mithörschutz. In diesem Fall ist nur das Haustelefon, das von der Außenstelle an-
gerufen worden ist, für das Gespräch und die eventuelle Türöffnung freigegeben.
Schaltplan c3762, c3763.
CARACTÉRISTICAS TECNICAS DEL ALIMENTADOR ART. 931A
Alimentador con mueble en material termoplástico gris, predispuesto para montaje
con barra a omega con dimensiones de 8 módulos, o también con fijación a pared por
medio de tacos. Con este alimentador se pueden realizar dos tipos de instalaciones:
El alimentador está provisto de doble generador electrónico de nota que remplaza
la tradicional llamada en alterna sobre zumbador o timbre. La señal acústica tiene
dos tonalidades distintas (presentes en los bornes C1 - C2) permitiendo así la indi-
viduación inmediata del punto desde el cual se efectúa la llamada (entrada principal,
reja, garage, etc.), esto permite de utilizar para la difusión del sonido un único altavoz
incorporado en el mismo teléfono.
La utilización del borne C1 para el hilo común pulsadores para las llamadas desde
la placa permite la activación de una señal sonora en la misma placa en el momento
en que se efectúan llamadas hacia los interfonos. Además este alimentador ha sido
predispuesto también para el funcionamiento de interfonos con llamada en alterna;
para este uso hay que utilizar el borne CP como común pulsadores para las llamadas
desde la placa, lo cual también determina una señal sonora en la placa.
PRINCIPIO DI FUNCIONAMENTO
1) Comunicación sencilla entre teléfonos internos y el aparato externo (Art. 930).
Esquema c3693, c3694.
2) Comunicación entre aparato externo (Art. 930) y los teléfonos internos con secreto
de conversación entre usuario y usuario. En este caso solamente el teléfono lla-
mado desde el aparato externo está abilitado a la conversación y eventualmente
a la apertura de la cerradura. Esquema c3762, c3763.
CARACTERÍSTICAS TÉCNICAS DO ALIMENTADOR ART. 931A
Alimentador com caixa em material termoplástico cinzento: preparado para montagem
em quadros com calha DIN com ocupação correspondente a 8 módulos ou para fix-
ação à parede através de parafusos. Com este alimentador podem-se efectuar dois
tipos de instalações:
O alimentador está equipado com um gerador duplo de chamada electrónico que
substitui as tradicionais chamadas por besouro ou campaínha.
O sinal sonoro dispõe de dois toques diferentes (bornes C1-C2) que permitem assim
identificar a proveniência da chamada (entrada principal, portão, garagem, etc.), quer
dizer, permite utilizar, para a emissão do toque, apenas um altifalante incorporado
no telefone.
A utilização do shunt C1 para o fio comum botões para as chamadas da placa permete
a activação dum sinal sonoro na mesma botoneira no momento em que efectuan-se
chamadas para os interfones. Além disto este alimentador foi predisposto para o fun-
cionamento com interfones para chamada em alterna; para este uso è necessario
utilizar o shunt CP como comum botões para chamadas da botoneira, o que também
determina un sinal sonoro na botoneira.
PRINCIPIO DI FUNCIONAMENTO
1) Comunicação entre os telefones internos e o posto externo (Art. 930). Esquema
c3693, c3694.
2) Comunicação entre o posto externo (Art. 930) e os telefones internos com segredo
de conversação entre utente e utente.
Neste caso somente o telefone chamado do posto externo tem possibilidades de
efectuar a conversação de abrir um possível trinco. Esquema c3762, c3763.
PTES
DE
FR
EN
IT
2
931A