
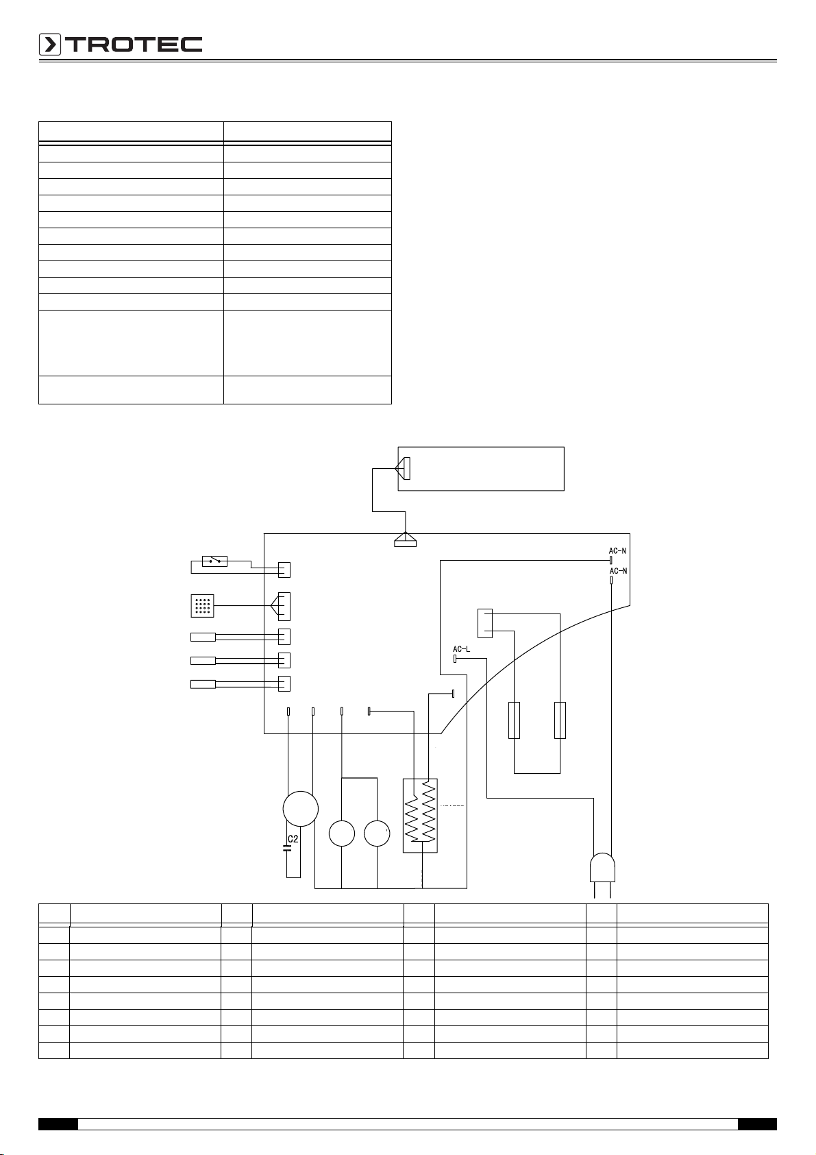
2Operating Manual – Dehumidifier TTR 56 E EN
Carefully read this manual before starting / using the device
and keep it within reach!
• Do not use the device in potentially explosive rooms. Do not
use the device in aggressive atmosphere.
• The device is designed for indoor installation.
• The device must have an upward safety distance of 90 cm to
all combustible materials.
• Keep away from children and animals.
• Set the device in an upright and stable position.
• Do not expose the device to dripping water.
• Ensure that the air inlet and outlet are not obstructed.
• Ensure that the side of the device where the air inlet is found
is kept free of dirt and loose objects.
• Never reach or put objects into the device.
• Do not cover the device during operation.
• Do not transport the device during operation.
• Ensure that all electric cables outside of the device are
protected from damage (e.g. from animals).
• Only use extensions to the connecting cable which are
appropriate to the device power consumption, the length of
its cable and its use. Avoid electrical overload.
• Only transport the device in an upright position with an
emptied condensation tank.
• Dispose of the collected condensation. Do not drink it. Health
hazard!
Intended use
Use the device TTR 56 E only for drying and dehumidifying room
air, while adhering to and following the technical data.
Intended use comprises:
• drying and dehumidifying:
– living rooms, bedrooms or basements
– laundries, holiday homes.
• maintaining the dryness of:
– storage spaces, archives, laboratories, museums, garages
– changing rooms etc.
Improper use
Do not place the device on wet or flooded ground. Do not use the
device outdoors. Do not lay any objects, e.g. wet clothing, on the
device for drying. Any unauthorised changes, modifications or
alterations to the device are forbidden.
Personnel qualifications
People who use this device must:
• be aware of the dangers that occur when working with
electric devices in damp areas.
• have read and understood the operating manual, especially
the Safety chapter.
Residual risks
Hazardous electric current!
Work on the electrical components must only be carried
out by an authorised specialist company!
Hazardous electric current!
Before any work on the device, remove the mains plug
from the mains socket!
Danger!
The device is not a toy and does not belong in the hands
of children!
Danger!
Dangers can occur at the device when it is used by
untrained people in an unprofessional or improper way!
Observe the personnel qualifications!
Danger!
Do not leave the packaging lying around. Children may
use it as a dangerous toy.
Caution!
To avoid damages to the device, never operate the
device without an air filter inserted!
Behaviour in the event of an emergency
1. Disconnect the device from the mains power in an
emergency.
2. Do not reconnect a defective device to the mains power.
Safety