
Installer’s Guide
ALL phases of this installation must comply with NATIONAL, STATE AND LOCAL CODES
IMPORTANT — This Document is customer property and is to remain with this unit. Please return to service information pack
upon completion of work.
WARNING (Medium/high pressure)
Contains Refrigerant!
System contains oil and refrigerant under high pressure.
Recover refrigerant to relieve pressure before opening the
system. See unit nameplate for refrigerant type. Do not
use non-approved refrigerants, refrigerant substitutes, or
refrigerant additives.
Failure to follow proper procedures or the use of non-
approved refrigerants, substitutes, or refrigerant additives
could result in death, serious injury, or equipment damage.
A341869P30
2. INDOOR UNIT AIRFLOW
Indoor unit must provide the required airflow for the heat pump
or cooling combinations approved for these coils.
IMPORTANT: Review your installation requirements. Check
the table on the outline drawings and note all dimensions
for your coil before beginning the installation.
Table of Contents
General .................................................................................1
Application Information ......................................................1
Recommendation ................................................................2
Furnace in Upflow Position ................................................2
Furnace in Downflow Position ...........................................3
Maximum Airflow Setting, CFM ..........................................3
Installing / Brazing Refrigerant Lines ................................3
Leak Check...........................................................................4
Condensate Drain Piping....................................................4
Cleaning the Coil .................................................................4
Outline Drawings .................................................................5
Troubleshooting Indoor TXV / Cooling Mode ....................8
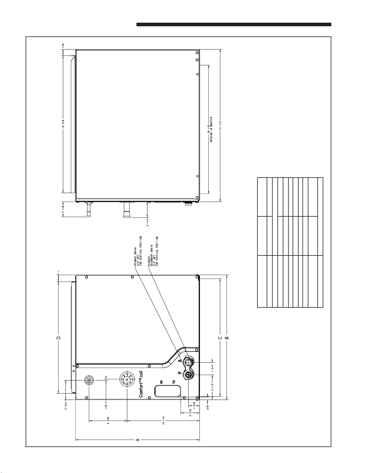
Figure 1
18-AD32D1-4E-EN
Cased Aluminum Coils
"Dedicated Upflow / Downflow"
Convertible to horizontal with separately purchased kit
Upflow models:
4PXCAU24BS3HAA
4PXCAU32BS3HAA
4PXCBU24BS3HAA
4PXCBU30BS3HAA
4PXCCU30BS3HAA
4PXCBU36BS3HAA
4PXCCU36BS3HAA
4PXCBU42BS3HAA
4PXCCU42BS3HAA
4PXCBU48BS3HAA
4PXCCU48BS3HAA
4PXCDU48BS3HAA
4PXCCU60BS3HAA
4PXCDU60BS3HAA
Downflow models:
4PXCAD24BS3HDA
4PXCBD24BS3HDA
4PXCBD30BS3HDA
4PXCCD30BS3HDA
4PXCBD36BS3HDA
4PXCCD36BS3HDA
4PXCBD42BS3HDA
4PXCCD42BS3HDA
4PXCBD48BS3HDA
4PXCCD48BS3HDA
4PXCDD48BS3HDA
4PXCCD60BS3HDA
4PXCDD60BS3HDA
NOTE:
OPTIONAL DOWNFLOW GASKET INSTALLATION: For
unusually humid applications that expect prolonged
operation above 70% RH, it is recommended to use the
BAYGSKT001A0 gasket kit to prevent water from forming
on the bottom of the drain pan and dripping into the sup-
ply ductwork.
NOTE: 4PXC upow coils may be installed in Upow,
Downow, Horizontal Right with kit, and Horizontal Left with
kit.
4PXC downow coils may be installed in Downow and
Horizontal Right with kit.
1. FURNACE AND COIL
The coil MUST BE installed downstream (in the outlet air) of
the furnace.
This product can expose you to chemicals including
lead, which are known to the State of California to case
cancer and birth defects or other reproductive harm.
For more information go to www. P65Warnings.ca.gov
A. GENERAL
These coils are designed for use in combination with a heat pump
or cooling outdoor section using R-410A REFRIGERANT.
The 4PXC equipment has been evaluated in accordance with
the Code of Federal Regulations, Chapter XX, Part 3280 or the
equivalent. “Suitable for Mobile Home use” The height of the
Furnace, Coil and discharge duct work must be 7 ft. or less.
Inspect the coil for shipping damage. Notify the transportation
company immediately if the coil is damaged.
B. APPLICATION INFORMATION