
1. Disconnect power supply before making wiring connections to prevent electrIcal shock
and equipment damage.
2. All wiring must comply with applicable codes and ordinances.
3. When wiring is completed, check all components by running system through its entire
heating cycle.
4. Check vent pipe system for leakage. All vent system leaks must be sealed prior to the
installation of the Power Venter.
5. Flue gas temperature must not exceed 600oF at Power Venter Inlet.
INSTALLATION
1. Check the HS-3 to determine whether it is an “old style” unit or “new style”.
A. FOR “NEW STYLE” (WITH CONDUIT WIRE WHIP ATTACHED TO MOTOR).
1. Open electrical box cover, disconnect black, white and green wires from their terminals. Loosen the nut that connects the flexible conduit to the inside of
electrical box.
2. Remove motor assembly from housing by loosening (4) nuts which fasten motor mount assembly to housing.
3. Pull motor assembly from housing and conduit whip from electrical box.
4. With 5/32” allen wrench, loosen set screw that holds wheel onto shaft of motor. Remove wheel from shaft of motor being careful not to damage the wheel.
5. Place wheel on new motor with not more than 1/4” gap between wheel back plate and motor mount plate.
6. Install new motor/wheel assembly into housing making sure oil holes are facing up.
7. Install (4) nuts removed from step 2 and fasten tightly.
8. Install metal conduit wire whip into the electrical box and secure with conduit nut.
9. Install Black, White and Green wires back to their original connections.
10. Re-establish power and run through a heating cycle making sure HS-3 is operating properly.
B. FOR “OLD STYLE” (WITHOUT CONDUIT WIRE WHIP ATTACHED TO MOTOR).
NOTE: NEW MOTOR WITH CONDUIT MAY REQUIRE ADDITION OF NEW JUNCTION BOX (INSTALLER SUPPLIED) ON OLDER HS-3 MODELS.
1. Disconnect Black, White and Green motor wires from inside the junction box.
2. Remove motor assembly from housing by loosening (4) nuts which fasten motor mount assembly to housing.
3. Loosen Power Venter wheel set screw with a 5/32” allen wrench and remove wheel from motor shaft.
4. Loosen nuts which fasten junction box to motor. Remove junction box.
5. Place wheel on new motor with not more than 1/4” gap between wheel back plate and motor mount plate.
6. Install new motor/wheel assembly into housing making sure oil holes are facing up.
7. Install (4) nuts removed from step 2 and fasten tightly.
8. Mount new electrical box on sidewall (within 2 feet of venter). Run the conduit wire whip to the new electrical box, replace Black, White and Green wires to
their original connections. NOTE: THIS MAY REQUIRE INSTALLATION OF RELAYS FROM OLD ELECTRICAL BOX INTO NEW ELECTRICAL BOX.
9. Install metal conduit wire whip into the electrical box and secure with conduit nut.
10. Install Black, White and Green wires back to their original terminals.
11. Reestablish power and run through a heating cycle making sure HS-3 is operating properly.
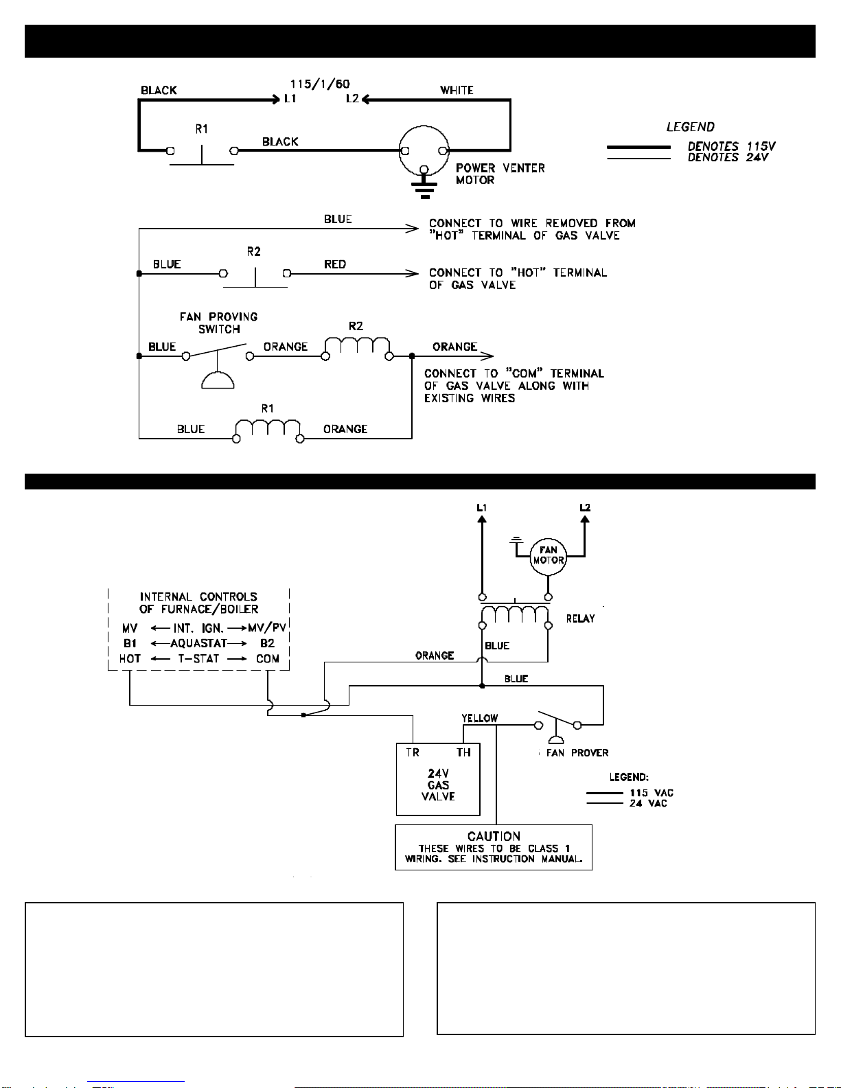
2. Wire Power Venter motor according to appropriate model on the opposite side of this sheet. If appropriate circuit does not appear in instructions, consult
Tjernlund Products, Inc. at 800-255-4208. UNIT MUST BE GROUNDED! All wiring must be done in accordance with the NEC and applicable local codes.
The wiring to the boiler should be protected by overcurrent protection (fuses or circuit breakers) rated 15 amperes or less, as applicable of 14 AWG conduc-
tors. CAUTION MUST BE EXERCISED TO ENSURE THAT WIRING DOES NOT COME INTO CONTACT WITH ANY HEAT SOURCE.
3. Check heater and Power Venter operation. Draft control on Power Venter should be adjusted so that there is no spillage at draft diverter, barometric or hood.
MODEL HS-3 REPLACEMENT MOTOR KIT P/N 950-1022
TJERNLUND PRODUCTS, INC.
1601 Ninth Street • White Bear Lake, MN 55110-6794
PHONE (800) 255-4208 • (651) 426-2993 • FAX (651) 426-9547
Visit our web site • www.tjernlund.com