
9
Manual de instrucciones MS-12TE & MS-12FE
Le agradecemos que haya adquirido un sensor de
infrarrojos pasivo TAKEX. Instalar correctamente
este sensor proporcionará una larga vida útil de alta
fiabilidad. Por favor, lea detenidamente este manual
de instrucciones para un uso correcto y efectivo.
Atención:
Este sensor está diseñado para detectar intrusiones e
iniciar una alarma; no es un dispositivo de prevención
de robo. TAKEX no se hace responsable por daños,
lesiones o pérdidas ocasionados por accidentes,
robos, desastres naturales (incluyendo las cargas
inductivas causadas por relámpagos), abuso, mal
uso, uso anormal, instalación defectuosa o manteni-
miento inadecuado.
DESCRIPCIÓN DEL PRODUCTO
El PIR exterior de zona dual es un interruptor auto-
mático que utiliza un sensor de infrarrojos pasivo
para detectar infrarrojos (temperatura del cuerpo)
emitidos por un cuerpo humano. (Adecuado para
interiores/exteriores)
1) Este sensor está equipado con una detección
"AND" y con un sistema contador de impulsos.
2) El sistema de detección AND emitirá una señal de
alarma únicamente al producirse la detección en
las zonas horizontal y baja simultáneamente.
3) El sensor está equipado con muchas funciones,
como por ejemplo
Combinando el sensor con otros dispositivos,
como por ejemplo un sistema de monitorización
de vídeo, para visualizar y grabar la presencia de
un intruso.
El sensor puede ser combinado con un dispositivo
de advertencia visual o audible para anunciar la
presencia de visitantes.
2PRECAUCIONES
∗El LED operacional parpadea durante aproximada-
mente 1 minuto al encender la alimentación.
Durante este período de precalentamiento, el
sensor no detecta.
∗Este sensor funciona durante el tiempo de detección
+ tiempo de retardo (2seg.)
Continuará emitiendo la alarma mientras detecte
objetos, sin importar el tiempo de retardo ajustado.
∗No derrame agua sobre esta unidad con una man-
guera ya que está diseñada para soportar la lluvia,
no está hecha a prueba de agua.
∗Cuando el modo de detección está ajustado al modo
AND, este sensor emite una señal de alarma cuando
tanto el sensor inferior como el superior detectan
objetos.
En otras palabras, no realizará la detección en el
área no cubierta por el sensor superior e inferior.
[Únicamente aplicable a MS-12FE]
[Zona de detección]
(El área cubierta por el
sensor superior e inferior)
Cobertura del sensor
inferior (sin detección)
Cobertura del sensor inferior
Cobertura del sensor
superior (sin detección)
Cobertura del sensor superior
3ZONA DE DETECCIÓN
La zona de detección de esta unidad consiste de una
zona horizontal y una zona baja.
La distancia de detección puede ser configurada
mediante el ajuste del ángulo de la zona baja.
MS-12TE está equipado con 1 juego de sensores en
el lado superior.
MS-12FE está equipado con 2 juegos de sensores en
el lado superior y en el inferior, posibilitando selec-
cionar el modo AND o el modo OR.
A. La señal de alarma es emitida únicamente
cuando ambas zonas de detección, horizontal y
baja, detectan objetos.
B. No detecta pequeños animales que probablemen-
te no alcanzarán la altura de la zona horizontal.
C. No detecta vehículos moviéndose en el rango del
área exterior de la zona baja.
MODELO DE COBERTURA
[Detección de ángulo ancho]
(1) Apunte el sensor al centro del área a detectar.
Girando el sensor hasta un máximo de ±45°, podrá
detectar todas las zonas delante del mismo.
Al girar la unidad más de ±45°, las zonas de
de
tección serán eliminadas una a una desde el
extremo.
(2) Consiste de siete zonas de detección.
(Ancho de ángulo: 90°)
(3) Utilice la lámina de enmascaramiento de área
adjunta al eliminar zonas de detección.
[Detección de pared]
(1) Coloque la lámina de enmascaramiento de área en
el soporte de la lente (en el interior de la tapa) sin
cortarla.
(Consulte 5 L ÁMINA DE ENM A SCA R AMIENT O
DE ÁREA)
(2) Gire el sensor 90° y colóquelo delante de la direc-
ción a detectar.
(3) Ajuste de precisión horizontal
El ajuste de precisión puede hacerse dentro de un
rango de ±3°, por si acaso existen obstáculos en la
pared. (La zona de detección cambia aproximada-
mente 0,6 m (2') en un rango de 12 m (40').)
Deslice la palanca hacia la izquierda o derecha.
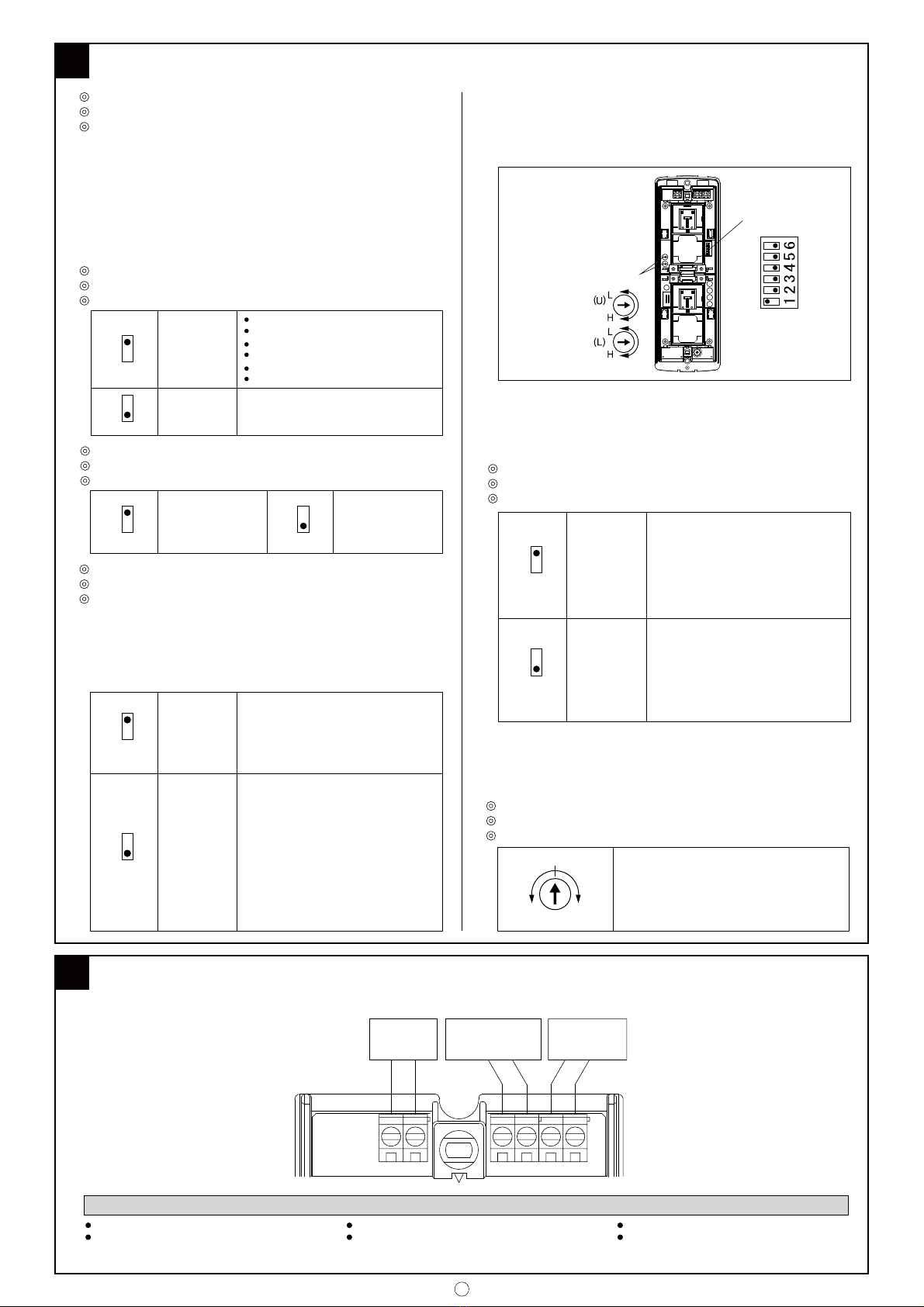
AJUSTE DE ZONA [Ajuste horizontal]
s!SEGÞRESEDEQUELAPALANCAESTÏAJUSTADAAPARA
la detección horizontal.
·Para alejar la zona de detección de la pared, deslice
la palanca hacia la pared.
·Para acercar la zona de detección a la pared, deslice
la palanca en dirección contraria a la pared.
4
AJUSTE DE LA DISTANCIA DE DETECCIÓN
La distancia de detección puede ajustarse en un
rango de 2 m (6.6') a 12 m (40') girando el ángulo de
la zona baja verticalmente.
Consulte el índice y deslice la palanca de ajuste hacia
arriba o hacia abajo.
Si la desliza hacia arriba la distancia de detección
se acorta, si la desliza hacia abajo la distancia de
detección aumenta.
AVISOS IMPORTANTES
Los siguientes factores podrían afectar el rango de
detección o la sensibilidad actuales.
Cuanto mayor sea la distancia cubierta, más obvio
será este efecto.
s4EMPERATURA AMBIENTAL VERSUS TEMPERATURA DEL
objeto.
El rango de detección actual podría disminuir si el
objeto a detectar posee una temperatura similar a la
de la zona objetivo.
s$IRECCIØNDELARUTADELOBJETO
La detección PIR funciona mejor cuando el movi-
miento cruza las zonas sensitivas. La sensibilidad se
deteriora si el movimiento se produce directamente
hacia el detector dentro de zonas individuales.
s!LTURADEMONTAJE
Cuanto más cerca se encuentre la altura de mon-
taje del suelo, menor será el rango de detección
obtenible.
s/RIENTACIØNDEMONTAJE
El detector debe instalarse verticalmente para
asegurar un rango de detección adecuado.
s0ENDIENTEENLAZONADEDETECCIØN
Si el suelo se inclina hacia abajo (hacia arriba) del
sensor, el rango de detección aumenta (disminuye).
Los siguientes ajustes deberán ser debida-
mente configurados mediante la PRUEBA DE
DESPLAZAMIENTO con la finalidad de obtener el
rendimiento esperado del detector en conformidad
con los distintos factores ambientales del lugar de
instalación.
s!JUSTEDELRANGODEDETECCIØN
(Palanca de ajuste con 10 pasos)
El índice de la distancia no es definitivo y se utiliza
únicamente a modo de guía.
s!JUSTEDEÈREA
Tenga en cuenta la dirección probable de desplaza-
miento del objeto para maximizar la posibilidad de
cruce de las zonas sensitivas.
s
Ajuste de la sensibilidad (mediante el potencióme
tro
del SENSOR PIR).
Tenga en cuenta que el rango de detección actual
podría reducirse en hasta un 20% si la temperatura
ambiental es tan alta que hay muy poca diferencia
entre la temperatura del objeto a detectar y el fondo.
(Consulte la siguiente imagen)
En dicho caso, se recomienda aumentar el rango de
detección para compensar.
s3IHAYUNCAMINOOCARRETERADELANTEDELAZONA
de detección, los vehículos con una temperatura
comparablemente superior a la del cuerpo humano
serán detectados a mayor distancia.
Para evitar tales detecciones no deseadas, reajuste
la configuración del área y el ajuste del rango.
5
LÁMINA DE ENMASCARAMIENTO DE ÁREA
(1) Corte el número de área necesario en la lámina de
enmascaramiento de área.
Consulte la imagen del enmascaramiento del área
a modo de referencia y corte los mismos lugares
en las zonas horizontal y baja.
(2) Coloque la lámina de enmascaramiento de área
en el soporte de la lente ubicado en el interior de
la tapa.
(3) Coloque la tapa y compruebe la zona de
detección.
∗La zona ino puede enmascararse mediante la
lámina de enmascaramiento de área.
8INSTALACIÓN
Antes de la instalación
(1) Antes de realizar la instalación lea
PRECAUCIONES 2 .
(2) Afloje el tornillo de bloqueo de la tapa y extraiga
la tapa.
(3) Consulte CABLEADO 7 y conecte los cables al
terminal.
(4) Instale la unidad.
(5) Consulte ZONA DE DETECCIÓN 3 y
COMPROBACIÓN DE FUNCIONAMIENTO y com-
pruebe el área de detección y el funcionamiento.
(6) Vuelva a colocar la tapa.
COMPROBACIÓN DE FUNCIONAMIENTO
(1) Ajuste para la comprobación del
funcionamiento
∗LED operacional: ON
|Determine el área de detección necesaria
y ajuste el ángulo horizontal del sensor y la
distancia de detección.
|Coloque la tapa y fíjela al sensor con el tornillo
de bloqueo.
|Active la alimentación y espere 1 min. hasta que
el LED de alarma deje de parpadear.
|Tras el período de precalentamiento, realice
una prueba de desplazamiento en el área de
detección a comprobar, si el área requerida está
cubierta.
|Reajuste la sensibilidad, enmascaramiento o
contador si fuese necesario.
(2) Comprobación de funcionamiento
|Realice los ajustes finales en conformidad con
el propósito.
|Coloque la tapa y compruebe si el LED
operacional y los dispositivos conectados
funcionan correctamente.