#).-<A
“READ ALL INSTRUCTIONS” — Failure to follow the SAFETY RULES identified by BULLET (•) symbol listed
BELOW and other safety precautions, may result in serious personal injury.
Motor Specifications
In the event of a malfunction or breakdown, grounding
provides a path of least resistance for electric current to
reduce the risk of electric shock. This tool is equipped with an
electric cord having an equipment-grounding conductor and a
grounding plug. The plug must be plugged into a matching
outlet that is properly installed and grounded in accordance
with all local codes and ordinances. This saw is wired for
operation on 110-120 volts, 60 Hz. alternating current. Before
connecting the motor cord to power source, make certain the
switch is in the “OFF” position and be sure the electric current
is of the same characteristics as stamped on the tile saw
nameplate.
Connection To A Power Source
This machine must be grounded while in use to protect the
operator from electric shock.
Plug power cord into a 110-120V properly grounded GFCI
type outlet protected by a 15-amp dual element time delay
fuse or circuit breaker.
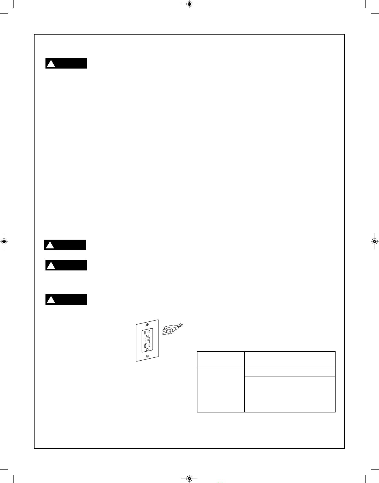
Not all outlets are properly grounded. If you are not sure that
your outlet, as pictured on this page, is properly grounded;
have it checked by a qualified electrician.
To avoid electric shock, do not touch the
metal prongs on the plug when installing or
removing the plug to or from the outlet.
Failure to properly ground this power tool
can cause electrocution or serious shock,
particularly when used near metal plumbing or other metal
objects. If shocked, your reaction could cause your hands to
hit the tool.
If power cord is worn, cut or damaged in
any way, have it replaced immediately to
avoid shock or fire hazard.
Your unit is for use on 120 volts and is
equipped with a 3-conductor cord and
grounding type plug, approved by
Underwriters Laboratories and the
Canadian Standards Association. The
ground conductor has a green jacket
and is attached to the tool housing at
one end and to the ground prong in
the attachment plug at the other end.
If the outlet you are planning to use for this power tool is of the
two-prong type, DO NOT RE OVE OR ALTER THE
GROUNDING PRONG IN ANY ANNER. Have a qualified
electrician replace the TWO-prong outlet with a properly
grounded THREE-prong outlet.
Improper connection of the equipment-grounding conductor
can result in a risk of electric shock. The conductor with
insulation having an outer surface that is green with or without
yellow stripes is the equipment grounding conductor. If repair
or replacement of the electric cord or plug is necessary, do not
connect the equipment grounding conductor to a live terminal.
Check with a qualified electrician or service personnel if the
grounding instructions are not completely understood, or if in
doubt as to whether the tool is properly grounded.
Extension Cords
Always use proper extension cord. The use of any extension
cord will cause some loss of power. To keep this to a
minimum and to prevent overheating and motor burn-out, use
the table below to determine the minimum wire size (A.W.G.)
extension cord. Use only 3-wire extension cords which have
3-prong grounding type plugs and 3-pole receptacles which
accept the tool’s plug. ake sure your extension cord is in
good condition.
Use only extension cords that are intended for outdoor use.
These extension cords are identified by a marking
“Acceptable for use with outdoor appliances, store indoors
while not in use.” Use only extension cords having an
electrical rating equal to or greater than the rating of the
product. Do not use damaged extension cords. Examine the
extension cord before using, and replace it if it is damaged.
Do not abuse extension cords, and do not yank on any cord
to disconnect it. Keep the cord away from heat and sharp
edges. Always disconnect the extension cord from the
receptacle before disconnecting the product from the
extension cord.
• Replace damaged cords immediately. Use of damaged
cords can shock, burn or electrocute.
• If an extension cord is necessary, a cord with adequate
size conductors should be used to prevent excessive
voltage drop, loss of power or overheating. The table
shows the correct size to use, depending on cord length
and nameplate amperage rating of tool. If in doubt, use
the next heavier gauge. Always use U.L. and CSA listed
extension cords.
H#&$##$"%$#I
WARNING
!
DANGER
!
DANGER
!
DANGER
!
RECO ENDED SIZES OF EXTENSION CORDS
Tool’s 120 Volt A.C. Tools Cord Length
Ampere Rating in Feet Cord Size in A.W.G.
0-6 18 16 16 14
6-10 18 16 14 12
10-12 16 16 14 12
12-16 14 12 ––
NOTE: The smaller the gauge number, the heavier the cord.