
Vehicle Function and Operational Interlocks
TypeDPRcircuitbreakersarecomprisedof theinterrupter/
operator module fitted to a vehicle. This interrupter/op-
erator module is an integral arrangement of operating
mechanism, dielectric system, vacuum interrupters, and
means of connecting the primary circuit. The vehicle sup-
ports the interrupter/operator module, providing mobility
and fully coordinated application in Westinghouse type DH-
P switchgear.
This manual should be used jointly with the Circuit Breaker
Operator manual,
E50001-F710-A251-V3-4A00.
Alignment
All aspects of the circuit breaker structure which impact
alignment and interchangeability are checked at the fac-
tory. Field adjustment will not normally be required, but
variations in existing switchgear may require field adjust-
ment.
Recommended Tools
•
Racking Crank: Original circuit breaker racking crank may
be used.
Installing Circuit Breaker Into Cubicle
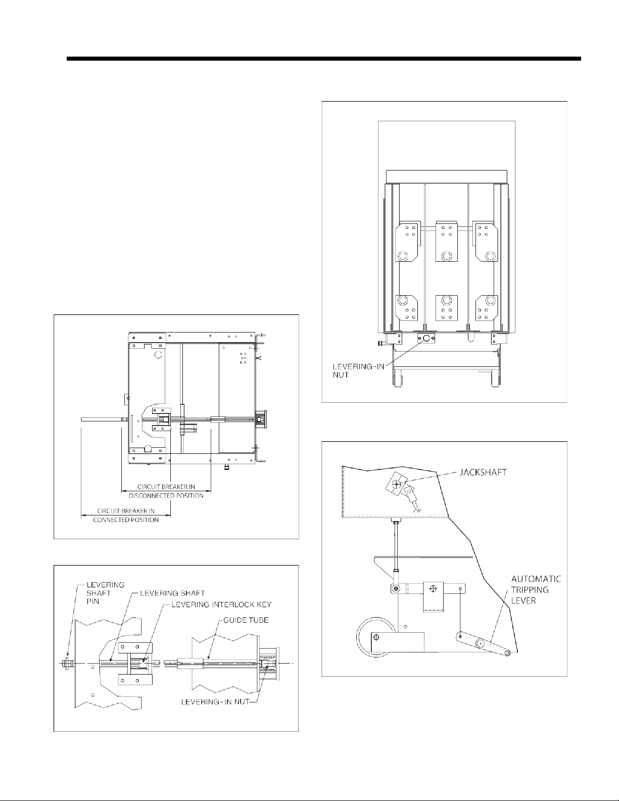
Levering Device and Circuit Breaker Interlock
Figure 1a
shows the two extreme positions of the levering
device. The main parts of the device are
Figure 1b
:
1.
The nut
2.
The guide tube
3.
The levering shaft
4.
The levering interlock
These are part of the chassis assembly. The nut is fas-
tened securely to the guide tube and is housed in a cast-
ing fastened to the extreme rear of the chassis as shown
in
Figure 1c.
The basic operation is for the nut to turn onto the screw
which is mounted on the rear wall of the cubicle. Since
the nut is securely fastened to the chassis, it pulls the cir-
cuit breaker into the CONNECTED position.
The guide tube is slotted lengthwise for a distance about
equal to the travel of the circuit breaker. The levering shaft
has 2 rectangular keys welded to it which slide in the guide
tube slot. Thus, as the levering shaft is rotated the guide
tube and nut are also rotated. As the nut consequently
moves on the screw, by clockwise rotation, the screw ex-
tends farther and farther toward the front of the circuit
breaker, pushing the levering shaft with it. Consequently
the levering shaft stands still relative to the screw and other
cubicle parts, including the door. Thus, the end of the lever-
ing shaft is always the same distance behind the door,
whether the circuit breaker is in the TEST or CONNECTED
position, or in between.
As the circuit breaker is levered in, the keys on the levering
shaft move toward the end of the guide tube slot. As the
rear key comes out of the slot, the levering shaft turns freely
and the circuit breaker moves no further. The end of the
guide tube is shaped like a steep-pitch one-turn screw
thread so that when the levering shaft is rotated counter-
clockwise, the rear key will catch and enter the slot, and
rotate the guide tube and nut, and the circuit breaker will
be withdrawn.
The levering interlock is designed to prevent moving the
circuit breaker into or out of the CONNECTED position if
the circuit breaker contacts are in the closed position. The
levering interlock consists essentially of a movable key
which can enter the elongated keyway in the front part of
the levering shaft. The key is spring-operated by the clos-
ing and opening movement of the circuit breaker contact
linkage. When the circuit breaker is in the closed position,
a force is applied through a spring to the key, to make it
enter the keyway on the levering shaft. The levering shaft
may be left in any position so that the keyway may not line
up with the key. However, since the key is pressing against
the shaft, it will snap into the keyway on the first rotation
of the shaft as the keyway comes in line with the key.
Thus, the levering shaft cannot be rotated any further and
no more movement of the circuit breaker can occur as long
as it is in the closed position.
If you try to turn the levering shaft as hard as possible while
the circuit breakeris closed, the levering shaft pin,where the
levering-in crank is attached, will be broken. This protects
theinternalpartsoftheinterlockagainstmechanicaldamage
and prevents unintentional withdrawing or insertion of the
circuit breaker while it is closed, which is very dangerous.
If the pin is broken it should become clear that the circuit
breaker must be opened before it is withdrawn and the
broken pin must be replaced.
Note:
CLOCKWISE ROTATION of racking crank for in-
serting circuit breaker. COUNTERCLOCKWISE ROTA-
TION of racking crank for removal of circuit breaker.
Hazardous voltages and high-speed
moving parts. Will cause death, serious
injury, and property damage.
De-energize before working on this equip-
ment.
Do not by-pass interlocks or otherwise make
interlocks inoperative.