
BETRIEBSANLEITUNG
UE48-3OS
Sicherheitsrelais
de
SICK AG • Erwin-Sick-Straße 1
D-79183 Waldkirch • www.sick.com
8010593/ZV47/2018-08-02 • REIPA/XX
Printed in Germany (2018-08) • Alle Rechte
vorbehalten • Irrtümer und Änderungen
vorbehalten
1Geltungsbereich
Diese Betriebsanleitung ist gültig für die
Sicherheitsrelais UE48-3OS mit dem folgenden
Typenschild-Eintrag im Feld Operating
Instructions: 8010593
Das Herstellungsdatum des Geräts finden Sie
auf dem Typenschild im Feld Date Code im
Format jjwwxxxx (jj = Jahr, ww = Kalender-
woche, xxxx = Seriennummer).
Diese Betriebsanleitung ist eine Original-
Betriebsanleitung.
2Zur Sicherheit
Dieses Kapitel dient Ihrer Sicherheit und der
Sicherheit der Anlagenbediener.
=Bitte lesen Sie dieses Kapitel sorgfältig, be-
vor Sie mit dem UE48-3OS oder der durch
das UE48-3OS geschützten Maschine
arbeiten.
2.1 Befähigte Personen
Das Sicherheitsrelais UE48-3OS darf nur von
befähigten Personen montiert, installiert, in
Betrieb genommen und geprüft werden.
Befähigt ist, wer …
•über eine geeignete technische Ausbildung
verfügt und
•vom Maschinenbetreiber in der Bedienung
und den gültigen Sicherheitsrichtlinien
unterwiesen wurde und
•Zugriff auf die Betriebsanleitung des
Sicherheitsrelais UE48-3OS hat und diese
gelesen und zur Kenntnis genommen hat.
2.2 Verwendungsbereiche des
Geräts
Das Sicherheitsrelais UE48-3OS ist einsetzbar:
•gemäß EN ISO 13 849 bis PL e und
Kategorie 4
•gemäß EN 62 061 bis SILCL3
•gemäß IEC 61 508 bis SIL3
Der tatsächlich erreichte Performance Level
bzw. die erreichte SIL-Anspruchsgrenze hängt
von der Außenbeschaltung, der Ausführung
der Verdrahtung, der Wahl der Befehlsgeber
und deren Anordnung an der Maschine ab.
Das Sicherheitsrelais UE48-3OS wurde nach
UL 508 getestet.
Über die kontaktbehafteten Schaltausgänge des
Sicherheitsrelais können die zugehörigen Aktoren
der Maschine oder Anlage sicher abgeschaltet
werden.
Das Sicherheitsrelais UE48-3OS dient zum
Gebrauch an:
•berührungslos wirkenden Schutzeinrichtungen
(BWS) mit überwachtem aktivem Schaltausgang
(OSSD): einkanalig, zweikanalig (gemäß
EN 61 496-1), z. B. mit folgenden SICK-Geräten:
C2000, M2000, C4000, M4000, S3000, S300
•Not-Halt-Tastern (EN ISO 13 850): ein- oder
zweikanalig, z. B. SICK ES21
•Sicherheitsverriegelungen (EN 1088): ein- oder
zweikanalig, wie z. B. Schutztüren
•Sicherheitsstromkreise nach EN 60 204-1, wie
z. B. bei beweglichen Abdeckungen
•und ist geeignet zur Nachschaltung an eine
Schaltmatte gemäß EN 13 856, kurzschluss-
bildend, in Vier-Leiter-Technik
2.3 Bestimmungsgemäße Verwendung
Das Sicherheitsrelais UE48-3OS darf nur im Sinne
von Abschnitt 2.2 „Verwendungsbereiche des
Geräts“ verwendet werden.
Es darf nur von befähigten Personen und nur an
der Maschine verwendet werden, an der es gemäß
der Betriebsanleitung von einer befähigten Person
montiert und erstmals in Betrieb genommen
wurde. Bei jeder anderen Verwendung sowie bei
Veränderungen am Gerät – auch im Rahmen von
Montage und Installation – verfällt jeglicher
Gewährleistungsanspruch gegenüber der SICK AG.
2.4 Allgemeine Sicherheitshinweise
und Schutzmaßnahmen
Beachten Sie die Sicherheitshinweise und
Schutzmaßnahmen!
Beachten Sie die nachfolgenden Punkte,
um die bestimmungsgemäße Verwen-
dung des Sicherheitsrelais UE48-3OS zu
gewährleisten.
•Beachten Sie bei Montage, Installation
und Anwendung des Sicherheitsrelais die
in Ihrem Land gültigen Normen und
Richtlinien.
•Für Einbau und Verwendung des Sicher-
heitsrelais sowie für die Inbetriebnahme
und wiederkehrende technische Überprü-
fung gelten die nationalen/internationa-
len Rechtsvorschriften, insbesondere:
–die Maschinenrichtlinie
–die Arbeitsmittelbenutzungsrichtlinie
–die EMV-Richtlinie
–die Unfallverhütungsvorschriften und
Sicherheitsregeln
•Hersteller und Betreiber der Maschine,
an der ein Sicherheitsrelais verwendet
wird, müssen alle geltenden Sicherheits-
vorschriften/-regeln in eigener Verant-
wortung einhalten.
•Die Prüfungen sind von befähigten Per-
sonen bzw. von eigens hierzu befugten
und beauftragten Personen durchzu-
führen und in jederzeit von Dritten nach-
vollziehbarer Weise zu dokumentieren.
•Die Betriebsanleitung ist dem Bedie-
ner der Maschine, an der das Sicherheits-
relais UE48-3OS verwendet wird, zur
Verfügung zu stellen.
•Der Maschinenbediener ist durch befä-
higte Personen einzuweisen und zum
Lesen der Betriebsanleitung anzuhalten.
3Produktbeschreibung
3.1 Aufbau und Arbeitsweise des
Geräts
Die Eingänge des Sicherheitsrelais UE48-3OS sind
für den Anschluss der im Abschnitt 2.2 „Verwen-
dungsbereiche des Geräts“ aufgeführten
Befehlsgeber oder Sicherheitssensoren vorberei-
tet. Die drei Freigabestrompfade sind als sichere
Ausgänge ausgeführt.
3.2 Gerätefunktionen
Das Betätigen des Sensors oder ein Eindringen in
das Schutzfeld der BWS bewirkt ein Öffnen der
Freigabestrompfade. Der manuelle oder automati-
sche Reset sowie die Schützkontrolle sind je nach
Anforderung mittels externer Beschaltung zu reali-
sieren (siehe 5.4 „Rücksetzung“ und 5.5 „Schütz-
kontrolle“).
Schließen Sie zur Erreichung von
SIL3/PL e die Schützkontrolle an!
Um SIL3/PL e zu erreichen, muss eine
externe Diagnose mit DC ≥99 % ange-
wendet werden (d. h. die Schützkontrolle
muss angeschlossen sein).
Beachten Sie hierzu auch Kapitel 12 „Appli-
kationsbeispiele“.
3.3 Anzeigeelemente
Anzeige Bedeutung
SUPPLY ΝGrün Versorgungsspannung aktiv
K1 ΝGrün Kanal 1 geschaltet
K2 ΝGrün Kanal 2 geschaltet
4Montage
Montage nur mit Schutzart IP54 oder
höher!
Das Sicherheitsrelais darf nur im Schalt-
schrank montiert werden. Der Schalt-
schrank muss mindestens die Schutzart
IP54 erfüllen.
=Montage gemäß EN 50 274.
=Die Module sind in einem 22,5 mm breiten Auf-
baugehäuse für 35-mm-Hutschienen gemäß
EN 60 715 untergebracht.
5 Elektroinstallation
Hinweis:
Alle angeschlossenen Leistungs-Schaltelemente
und die Leitungen müssen eine Stromtragfähig-
keit, maximalem Kurzschlussstrom (gemäß
EN 60 947-5-1) von Imax = 1000 A besitzen.
Anlage spannungsfrei schalten!
•Die Spannungsversorgung muss den Vorschrif-
ten für Kleinspannungen mit sicherer Trennung
(SELV, PELV) für Überspannungskategorie II
gemäß EN 60 664 und EN 50 178 genügen.
Hinweis:
Die an das Sicherheitsrelais angeschlossenen
Komponenten müssen mit ihrer Basisisolierung
der höchsten am Sicherheitsrelais angeschlosse-
nen Spannung entsprechen.
Alle Stromkreise (und ggf. weitere EDM) müssen
dann ebenfalls entsprechend der höchsten Span-
nungsebene ausgeführt werden.
•Alle Anschlüsse, Verdrahtung und Verlegung
müssen der geforderten Kategorie gemäß
EN ISO 13 849 und EN 62 061 entsprechen
(z. B. geschützte Verlegung, Einzelmantelleitung
mit Schirm etc.).
•Um die Kontaktausgänge des UE48-3OS zu
schützen und die Lebensdauer zu erhöhen,
müssen die angeschlossenen Lasten mit z. B.
Varistoren und RC-Gliedern ausgerüstet werden.
Hierbei ist zu beachten, dass sich die Ansprech-
zeiten je nach Art der Schutzbeschaltung ver-
längern. Bei Installation in Umgebungen der
Überspannungskategorie III müssen externe
Schutzelemente verwendet werden.
•Die Sicherheitsausgänge und die Schützkontrol-
le (EDM) müssen innerhalb des Schaltschranks
verdrahtet werden.
•Um das Verschweißen der Kontakte der ein-
gebauten Relais zu verhindern, ist eine Über-
stromschutzeinrichtung, Kurzschlussschutz
(Betriebsklasse gG) nach der entsprechenden
Gebrauchskategorie zu wählen und in die Frei-
gabestrompfade einzubinden (siehe Abb. 2,
Sicherung F2/F3/F4).
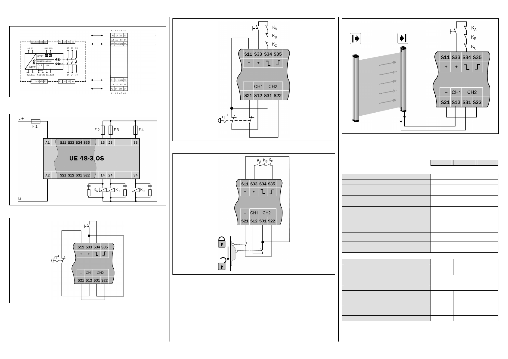
5.1 Klemmen-Belegung
Klemme Beschreibung
A1 Spannungsversorgung (+24 V DC)
A2 Spannungsversorgung (0 V DC)
S11 + Steuerspannung
S21 0 V Steuerspannung
S12 + Eingangskreis 1 (K1)
S31 + Eingangskreis 2 (K2)
S22 – Eingangskreis 2 (K2)
S33 Für Resetkreis (entspricht S12)
S33–S34 Manueller Reset
S33–S35 Automatischer Reset
13–14 Freigabestrompfad 1
23–24 Freigabestrompfad 2
33–34 Freigabestrompfad 3
5.2 Betriebsarten: BWS
Einkanaliger Betrieb
Der Schaltausgang der BWS wird an der Klemme
S12 angeschlossen. Zwischen S21–S22 und
S31–S33 ist jeweils eine Drahtbrücke anzu-
schließen.
Zweikanaliger Betrieb
Ein Schaltausgang der BWS ist an S12, der zweite
Schaltausgang an S31 anzuschließen. S21–S22
sind durch eine Drahtbrücke zu verbinden.
5.3 Betriebsarten: taktile Sensoren
Einkanaliger Betrieb
Das potenzialfreie Schaltelement des Sicherheits-
sensors wird zwischen S11 und S12 angeschlos-
sen. Zwischen S33–S31 und S21–S22 ist jeweils
eine Drahtbrücke anzuschließen (siehe Abb. 3).
Zweikanaliger Betrieb
Die zwei potenzialfreien Schaltelemente des
Sicherheitssensors sind zwischen S11 und S12
bzw. S21 und S22 anzuschließen. Zwischen S11–
S31 ist eine Drahtbrücke anzuschließen (siehe
Abb. 4 und Abb. 5).
5.4 Rücksetzung
Manuelle Rücksetzung
Die Rücksetztaste (Schließerkontakt) muss zwi-
schen den Klemmen S33 und S34 verdrahtet wer-
den. Die Rücksetztaste ist außerhalb des Gefahr-
bereichs so zu installieren, dass sie nicht aus dem
Gefahrbereich heraus betätigt werden kann.
Außerdem muss der Benutzer den Gefahrbereich
beim Betätigen vollständig überblicken können.
Der Reset ist überwacht. Bei Not-Aus-Anwendung
ist manuelle Rücksetzung zu verwenden.
Automatische Rücksetzung
Zwischen S33–S35 ist eine Drahtbrücke
anzuschließen.
5.5 Schützkontrolle
Die Schützkontrolle der eingebundenen Aktoren
wird nur beim Rücksetzen wirksam. Das Verbinden
der Öffnerkontakte der angesteuerten Schaltglie-
der in Reihe mit dem Rücksetzkreis bewirkt diese
Schützkontrolle.
6Inbetriebnahme und
regelmäßige Prüfungen
Keine Inbetriebnahme ohne Prüfung durch
eine befähigte Person!
Bevor Sie eine durch das Sicherheitsrelais
geschützte Anlage erstmals in Betrieb
nehmen, muss die Anlage durch eine
befähigte Person überprüft und dokumen-
tiert freigegeben werden.
=Beachten Sie hierzu die Hinweise in
Kapitel 2 „Zur Sicherheit“.
=Beachten Sie die entsprechenden
Gesetze und nationalen Vorschriften.
Kontrollieren Sie den Gefahrbereich!
=
Stellen Sie vor der Inbetriebnahme sicher,
dass sich niemand im Gefahrbereich
aufhält.
=Sichern Sie den Gefahrbereich gegen das
Betreten durch Personen ab.
Regelmäßige Prüfung der Schutzeinrichtungen
durch befähigte Personen
=Prüfen Sie die Anlage entsprechend den natio-
nal gültigen Vorschriften innerhalb der darin
geforderten Fristen.
–Jede Sicherheitsapplikation muss in einem
von Ihnen festgelegten Zeitintervall überprüft
werden.
–Die Wirksamkeit der Schutzeinrichtungen
muss durch befugte und beauftragte
Personen geprüft werden.
=Wenn Änderungen an der Maschine oder der
Schutzeinrichtung durchgeführt wurden oder
das Sicherheitsrelais umgerüstet oder instand
gesetzt wurde, dann müssen Sie die gesamte
Sicherheitsapplikation erneut prüfen.
7Verhalten im Fehlerfall
Kein Betrieb bei unklarem
Fehlverhalten!
=Setzen Sie die Maschine außer
Betrieb, wenn Sie den Fehler nicht
eindeutig zuordnen können und nicht
sicher beheben können.
Vollständiger Funktionstest nach
Fehlerbeseitigung!
=Führen Sie nach der Beseitigung
eines Fehlers einen vollständigen
Funktionstest durch.
8Entsorgung
Entsorgen Sie unbrauchbare Geräte
immer gemäß den jeweils gültigen
landesspezifischen Abfallbeseitigungs-
vorschriften.
9Bestelldaten
Artikel Artikelnummer
(Typenschlüssel)
UE48-3OS für 24 V AC/DC
mit Schraubklemmen
6025089
(UE48-3OS2D2)
UE48-3OS für 24 V AC/DC
mit Steckblockklemmen
6025097
(UE48-3OS3D2)
10 Konformität mit
EU-Richtlinien
UE48-3OS, Safety relay
SICK AG, Erwin-Sick-Straße 1, D-79183
Waldkirch
Sie finden die EU-Konformitätserklärung und
die aktuelle Betriebsanleitung, indem Sie auf
www.sick.com im Suchfeld die Artikelnummer
eingeben (Artikelnummer: siehe Typenschild-
eintrag im Feld „Ident. no.“).
Direktlink zur EU-Konformitätserklärung:
www.sick.com/9091706
Der Unterzeichner, der den Hersteller vertritt,
erklärt hiermit, dass das Produkt in Überein-
stimmung mit den Bestimmungen der nach-
stehenden EU-Richtlinie(n) (einschließlich aller
zutreffenden Änderungen) ist, und dass die in
der EU-Konformitätserklärung angegebenen
Normen und/oder technischen Spezifikationen
zugrunde gelegt sind.
•MACHINERY DIRECTIVE 2006/42/EC
•EMC DIRECTIVE 2014/30/EU
•ROHS DIRECTIVE 2011/65/EU
Waldkirch: 2018-07-10
ppa. Walter Reithofer
Vice President R&D
(GBC Industrial Safety)
authorized for technical
documentation
ppa. Birgit Knobloch
Vice President
Operations
(GBC Industrial
Safety)
Notified body: No. 0340, DGUV Test, Prüf- und
Zertifizierungsstelle Elektrotechnik, Gustav-
Heinemann-Ufer 130, 50968 Köln
EC type-examination: ET 16022