
SECURITY
DOOR CONTROLS
801 Avenida Acaso, Camarillo, Ca. 93012 • (805) 494-0622 • Fa : (805) 494-8861
www.sdcsecurity.com • E-mail: service@sdcsecurity.com
P:\INSTALLATION INST\ELECTRIC BOLT LOCKS\INST-2000 SERIES\INST-2000.vsd REV B 04/07 Page 1
2000 SERIES
INSTALLATION INSTRUCTIONS
OVERHEAD INSTALLATION HORIZONTAL
1. E amine the top rail of the door for the most suitable location for the strike. Mark the door for the end of the
strike closest to the lock stile, and make a corresponding mark on the header to line up with the first mark.
2. Locate centerline of door thickness on the header and attach adhesive cut-out template to header. Lining it up
with marks, center punch the tab-mounting screw locations and counter-sink for #10 screw. Saw or rout out the
cut-out area.
SIDE JAMB INSTALLATION VERTICAL
3. E amine the lock stile jamb for the point nearest the center of the door height, with space available for the lock and
strike. Mark the door stile horizontal for the top end of the strike and make a corresponding mark on the jamb.
4. Locate centerline of door thickness on the jamb and attach cut-out template to jamb, lining up the top of the
cut-out with the horizontal mark on the jamb. Center punch the tab mounting screw locations and counter-sink for
#10 screw. Saw or rout out the cut-out 1-1/2" X 8".
5. Attach the mounting tabs inside frame.
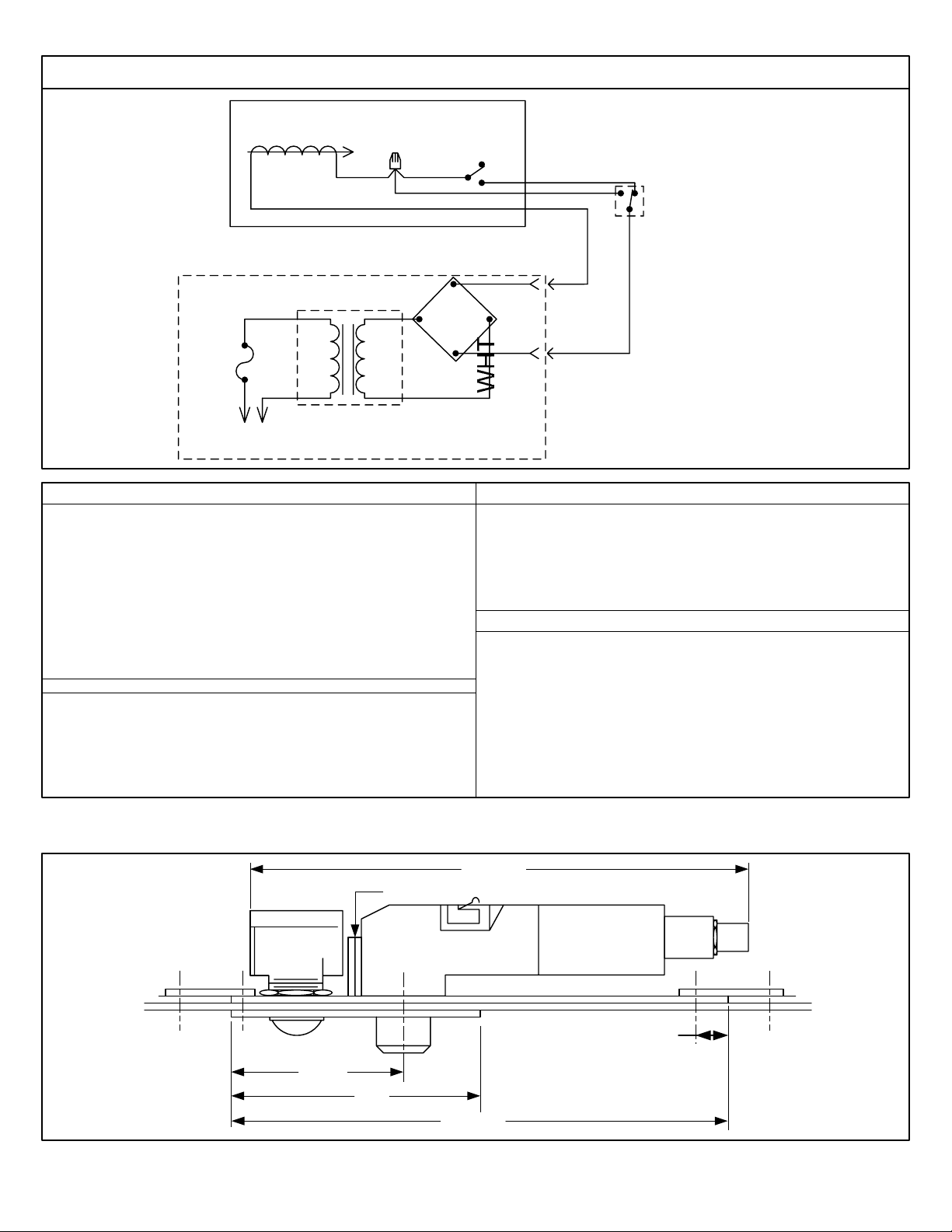
6. Attach power supply leads to lock leads as shown. Handle the lock carefully; do not hang it by the wire leads. Insert
wires into the header cavity carefully so they do not interfere with proper locating of the lock in the cut-out.
7. Insert lock. Horizontally, the bolt end is nearest the lock stile. Vertically, the bolt must be at the top end of the cut-out.
Secure with #10-32 machine screw.
8. Using strike for a template, mark screw hole location and drill holes for screws supplied. Mortise as required.
Attach strike.
9. The automatic relock switch (A) is set for 1/8" clearance between the top of the door and the transom bar or head
jamb. Any additional gap may be compensated for by loosening the lock nut and turning the assembly clockwise
until proper adjustment is reached. Be sure to tighten lock nut when adjustment is satisfactory.
Easy installation or ser icing
All Space Saver locks
are easily installed in
any e isting entrance
merely by mortising out
a cut-out, attaching the
wiring, inserting the
lock, and bolting it into
position with two
attaching tabs. Cutting
studs is no longer a
problem or e pense.
2. Position screws
for attaching tabs,
drill holes, attach tabs.
1. Mortise cut-out in
tube for face plate
(fits flush with
surface of tube).
3. Connect wiring
to lock.
4. Slide lock into
position, attach
to tabs.
Fig. 2
Auto Relock Switch
Adjustable for Wide Door Gap
Loosen nut.
Turn assembly
clockwise for wide
door gap.
Tighten nut.
Fig. 1