
ITALIANO
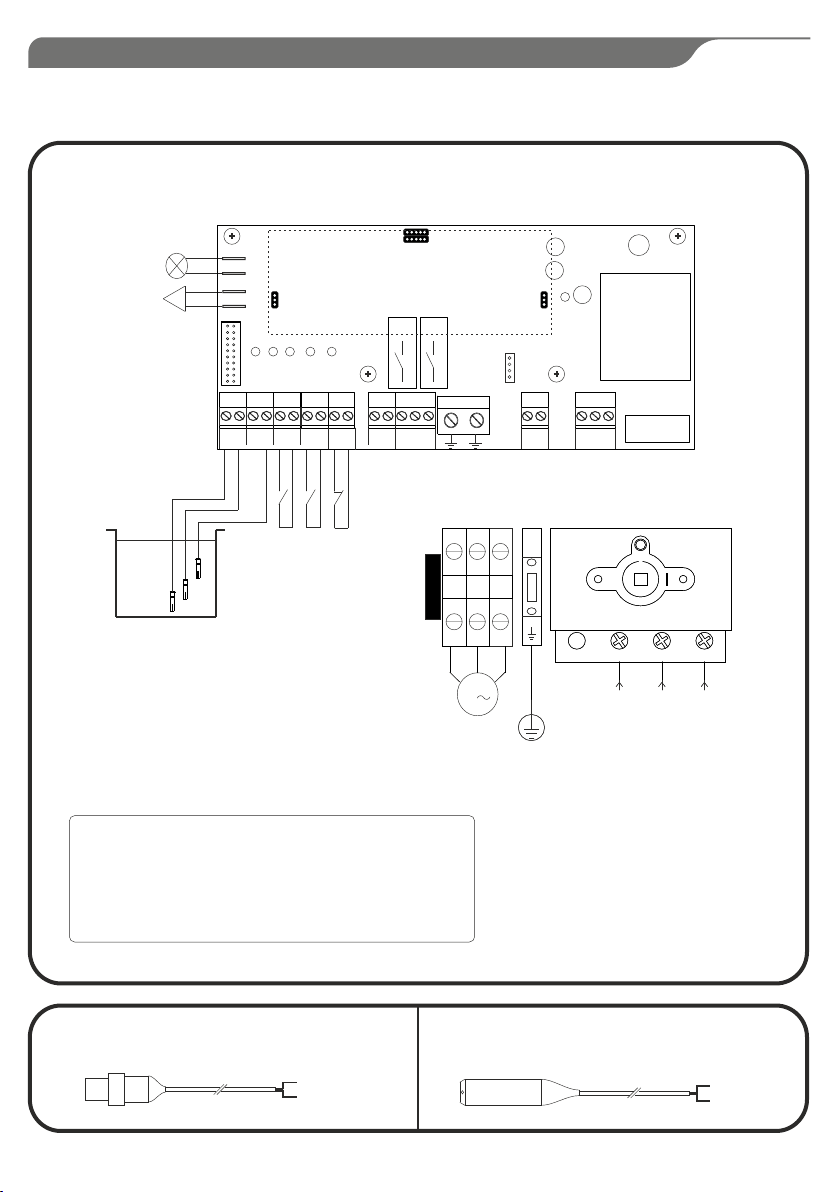
Nel fissare i cavi sulle morsettiere, adoperare attrezzi di giuste misure e dimensioni evitando di
danneggiare i morsetti metallici e le relative sedi. Prima di qualsiasi operazione da effettuare
all'interno, escludere l'alimentazione generale.
Installare il quadro in ambienti adatti al suo grado di protezione IP65. Per il fissaggio dell'involucro,
utilizzare le staffe per i box 03-04 e le apposite predisposizioni per i restanti box. Nell'effettuare il
fissaggio dell'involucro fare molta attenzione a non toccare o danneggiare i vari componenti.
Eliminare qualsiasi tipo di impurità metallica e/o plastica che dovesse casualmente cadere all'interno
dell'involucro (viti, rondelle, polvere…). Effettuare i collegamenti elettrici rispettando gli schemi di
collegamento.
Le operazioni di regolazione all'interno del quadro devono essere svolte da personale qualificato. In
caso di intervento delle protezioni verificarne la causa prima del ripristino.
È compito dell'installatore verificare l'apparecchiatura dopo l'installazione nonostante
questa sia già stata sottoposta regolarmente a prove dal costruttore.
Il costruttore declina ogni responsabilità per sinistri a cose o persone dovuti a manomissioni
delle apparecchiature da parte di personale non autorizzato o da carenze nella manutenzione.
e riparazione.
Assicurarsi che la linea sia protetta, secondo le normative, in funzione dell'applicazione. Accertarsi
che la potenza e la corrente di targa del motore rispecchino i limiti di impiego del quadro.
In caso di necessità sostituire i vari componenti solo con altri aventi le stesse caratteristiche e portate
di quelli originali.
1. ISTRUZIONI GENERALI PER L’INSTALLAZIONE
2. AVVERTENZE
Rischio di scosse elettriche se non si osserva quanto prescritto.
SCOSSE ELETTRICHE
Rischio di lesioni personali e materiali se non si osserva quanto prescritto.
PERICOLO
AVVERTENZA
Prima di installare e utilizzare questo prodotto leggere attentamente questo manuale nella sua totalità.
L’installazione e la manutenzione devono essere realizzate da personale qualificato e secondo le normative in
vigore. Il costruttore non è responsabile di danni causati per un uso improprio o proibito di questo dispositivo e
nemmeno di danni causati da una non corretta installazione e manutenzione dello stesso. L’utilizzo di pezzi
non originali, la manipolazione o l’uso improprio annulleranno la garanzia.
Installare il dispositivo solo in ambienti adeguati al suo grado di protezione IP 65. Nel caso di operazioni dentro
il quadro utilizzare strumenti adeguati per evitare di danneggiare i morsetti.
AVVERTENZA
Assicurarsi che la potenza del motore sia dentro i limiti del quadro.
Per fissare la carcassa utilizzare i fori appropriati presenti nel fondo per non danneggiare i componenti interni
e eliminare qualsiasi scarto di lavoro dentro il quadro.
Nel caso di intervento delle protezioni verificarne la causa prima del ripristino.
Prima di realizzare qualsiasi intervento assicurarsi che il quadro non sia alimentato. Non compiere nessuna
operazione quando il quadro è aperto. Il dispositivo deve essere collegato a una messa a terra efficiente.
PERICOLO
3
3