
1. Any product returned to ROGER must have an RMA number. ROGER will refuse anypackage
that is returned without a valid RMA number.
2. ROGER products cannot be returned for any reason other than defective
3. Defective products will only be accepted in accordance with the ROGER`s
4. All RMA numbers will be valid for a period of not longer than 14 days.
Any package send to ROGER after 14 days of issuance will be refused and shipped back to you
at additional cost.
5. If you purchased Roger product not directly from Roger company, please return it to the place
where you bought it.
6. In order to receive RMA number please fill out the following form.
7. Once the completed form has been received and processed it will be returned to you with a RMA
number appended. This is your authority to return the product.
8. Please ensure that this document accompanies the product when it is returned and that a copy is
retained such that you can refer to it when requesting an update on the progress of a repair.
9. Use one RMA number per one returned product.
10. Put your RMA number on the shipping/address label
11. Please make sure that you always return product in appropriate packaging together with a RMA
formin order to avoid damages during transit, You are advised to get proof of delivery
12. Some repairs may be chargeable and you will receive formal advice if this is the case.
13. If product returned as defective is found not to be defective, it will be returned back to the
customer at his expenses. In that case the customer will be also charged with costs which may
arise after triggering the RMA procedure.
14. If the product is beyond economical repair then the following options will be given:
Scrapped –This will occur automatically if ROGER does not receive a reply to three notices send to
the customer at least in 5 days interval.
(Theremay be some exceptions to this) or if you instruct us during these communications.
Returned – However this will incur shipping charges.
Note: All repairs are dealt with as rapidly as possible although repair time is not guaranteed. Please
contact us and we will try our best to suggest an estimated lead-time.
Please note:
In the unlikely event you experience difficulties with your
ROGER product, please contact ROGER’s Technical
Support Department to resolve the problem.
They may be reached at +48 55 2670126 or
support@roger.pl Monday through Friday 8:00 A.M. to
4:00 P.M. (GMT + 1).
You can also contact the Technical Support Department by
fax at +48 55 2720133.
If it is determined that you need to return the product, the
followingprocedure must be followed to ensure prompt
UT-2 v3.1 EN Rev.C.doc 2007-10-18
-3 -
star or any combination of them. Also, no terminating resistors are required on the ends of
communication bus.
Note: Some PC computers with Windows operating system may detect the UT-2 unit as
Microsoft BallPoint or similar pointing device. Such a faulty detection leads to problem
with computer mouse and finally corrupts computer operation entirely. In order to fix this
problem installer should enter Windows Device Manager and switch off detection of
mentioned pointing device.
EXTENDING COMMUNICATION DISTANCE
The UT-2 may be used for successful communication on distances up to 1200m. When
longer distance is required a UT-3 interface can be used. The use of two UT-3 interfaces
creates communication link and extends communication distance by next 1200m. For
communication between access networks or controllers located in different buildings or
even cites the UT-4 interface can be used. The UT-4 interface enables communication
with access controller(s) or entire access networks through 100/10BaseT Ethernet network
with TCP/IP communication protocol.
Ordering
UT-2 UT-2 interface with plastic case and 1.5m cable to PC
History
UT-2 v3.0 The RTS and CTS control lines to CPR network controller added.
UT-2 v3.1 The polarity of RTS and CTS line to CPR network controller reversed, low
level on RTS and CTS is now an active state.
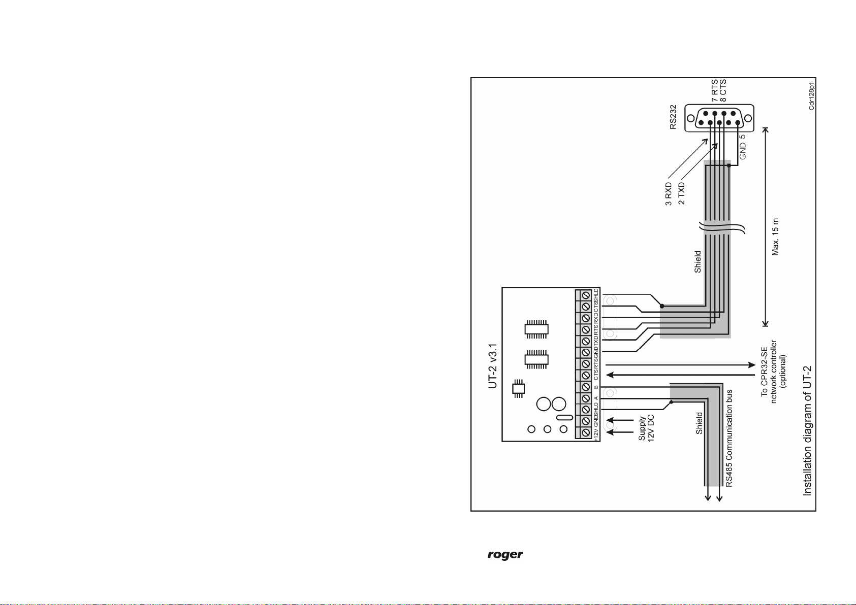
Connection terminals assignments
Name Function
GND Supply minus
+12V Supply plus
SHLD RS485 cable shield
A RS485 interface, line A
B RS485 interface, line B
RTS RTS line to CPR32-SE network controller
CTS
RS485
CTS line to CPR32-SE network controller
GND RS232 interface, ground
TXD RS232 interface, line TXD
RTS RS232 interface, line RTS
RXD RS232 interface, line RXD
CTS RS232 interface, line CTS
SHLD
RS232
RS232 cable shield