
3
3
KEEP THESE INSTRUCTIONS WITH CARE.
1° - If it is not forecast in the electric gearcase, install a switch of
magnetothermic type upstream, (omni polar with minimum port of
the contacts of 3mm) with a check of conformity to the
international standards. Such devise must be protected against
the accidental lockup (for example by installing inside a locked
board).
2° - For the section and the type of the cables, RIB advices to use a
cable of the H05RN-F type with minimum section of 1,5sqmm
and, in any case, to keep to the IEC 364 standard and to the
installation standards in force in your country.
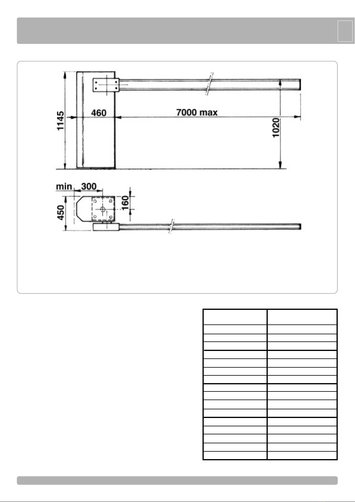
3° - Positioning of a possible couple of photoelectric cells: the radius
of the photoelectric cells must be at a height of 50÷60 cm from
the ground and at a distance not superior to 15 cm from the
motion plane of the rod. Their correct working must be verified at
the end of the installation in accordance with the point 7.2.3 of the
EN 12445.
N.B.: The earthing of the system is obligatory.
The data described in this handbook are purely a guide.
RIB reserves the right to change them in any moment.
Carry out the system in the respect of the standards and laws in force.
FOLLOW ALL INSTALLATION INSTRUCTIONS
1° - This handbook is exclusively addressed to the specialized
personnel who knows the constructive criteria and the protection
devices against the accidents for motorized gates, doors and
main doors (follow the standards and the laws in force).
2° - The installer will have to issue to the final user a handbook in
accordance with the EN 12635.
3° - Before proceeding with the installation, the installer must forecast
the risks analysis of the final automatized closing and the safety
of the identified dangerous points (following the standards EN
12453/EN 12445).
4° - The wiring harness of the different electric components external
to the operator (for example photoelectric cells, flashlights etc.)
must be carried out according to the EN 60204-1 and the
modifications to it done in the point 5.2.2 of the EN 12453.
5° - The possible assembly of a keyboard for the manual control of the
movement must be done by positioning the keyboard so that the
person operating it does not find himself in a dangerous position;
moreover, the risk of accidental activation of the buttons must be
reduced.
6° - Keep the automatism controls (push-button panel, remote control
etc.) out of the children way. The controls must be placed at a
minimum height of 1,5mt from the ground and outside the range
of the mobile parts.
7° - Before carrying out any installation, regulation or maintenance
operation of the system, take off the voltage by operating on the
special magnetothermic switch connected upstream it.
THE RIB COMPANY DOES NOT ACCEPT ANY RESPONSIBILITY
for possible damages caused by the non observance during the
installation of the safety standards and of the laws in force at present.
IMPORTANT SAFETY INSTRUCTIONS FOR THE
INSTALLATION
- ATTENTION -
FOR THE SAFETY OF THE PEOPLE IT IS IMPORTANT
TO FOLLOW ALL THE INSTRUCTIONS.
INSTALLATIONSVORSCHRIFTEN BEACHTET WERDEN
1° - Wenn in der elektrischen Steuerung nicht vorgesehen, muss am
Eingang derselben ein Schalter angebracht werden des Typs
thermomagnetisch (mit minimaler Öffnung der Kontakte bzw. 3
mm), welcher die Übereinstimmungszeichen der internationalen
Normen aufweist. Diese Vorrichtung muss geschützt werden vor
einer ungewollten Schließung (z.B. wenn sie in einer
abgeschlossenen Schalttafel installiert ist).
2° - Für die Sektion und für den Kabel-Typ empfiehlt RIB die
Benutzung eines Kabels des Typs H05RN-F mit Minimalsektion
von 1,5 mm2 und auf jeden Fall, sich an die Norm IEC 364 halten,
unter Beachtung der gültigen Installationsnormen des eigenen
Landes.
3°- Positionierung eines eventuellen Fotozellen Paares: Der
Fotozellenstrahl muss auf einer Höhe von 50 - 60 cm. vom Boden
angebracht werden, die Distanz zu der Bewegungsfläche der
Schranke darf nicht mehr als 15 cm sein. Ihre korrekte
Funktionierung muss bei Installationsschluss überprüft werden, in
Übereinstimmung mit Punkt 7.2.3 der EN 12445.
N.B. Die Erdung der Anlage ist obligatorisch.
Die beschriebenen Daten in der vorliegenden Betriebsanleitung sind
rein indikativ.
RIB behält sich vor, diese in jedem Moment zu modifizieren.
Die Anlage einbauen unter Beachtung der geltenden Normen und
Gesetze.
ALLE INSTALLATIONSANLEITUNGEN BEFOLGEN
1° - Diese Betriebsanleitung dient ausschließlich dem
Fachpersonal, welche die Konstruktionskriterien und die
Sicherheits-Vorschriften gegen Unfälle für Tore, Türen und
automatische Tore kennt (geltende Normen und Gesetze
beachten und befolgen).
2° - Der Monteur muss dem Endkunde eine Betriebsanleitung in
Übereinkunft der EN12635 überreichen.
3° - Vor der Installierung muss für die automatische Schließung und
zur Sicherheitsgewährung der identifizierten kritischen Punkte,
eine Risiko Analyse vorgenommen werden mit der
entsprechenden Behebung der identifizierten, gefährlichen
Punkte. (die Normen EN 12453/EN 12445 befolgend).
4° - Die Verkabelung der verschiedenen externen elektrischen
Komponenten zum Operator (z.B. Fotozellen, Blinker etc.) muss
nach EN 60204-1 ausgeführt werden, Änderungen davon nach
Punkt 5.2.2 der EN 12453.
5° - Die eventuelle Montage einer Schalttafel für den manuellen
Bewegungsbefehl muss so angebracht werden, dass der
Benutzer sich nicht in einer Gefahrenzone befindet, und dass,
das Risiko einer zufälligen nicht gewollten Aktivierung von
Schaltern gering ist.
6° - Alle Steuerungselemente (Schalttafel, Fernbedienung etc.)
gehören nicht in Reichweite von Kindern. Die Kommandos
müssen min. 1,5 m ab Boden und außerhalb des
Aktionsbereiches der mobilen Teile angebracht werden.
7° - Vor jeglichem Eingriff, sei es Installation, Regulation oder
Wartung der Anlage, muss vorher die Stromzufuhr unterbrochen
werden, den dafür bestimmten Magnetthermo-Schalter drücken,
der am Eingang der Anlage installiert ist.
DIE FIRMA RIB ÜBERNIMMT KEINE VERANTWORTUNG für eventuelle
Schäden, die entstehen können, wenn die Installierungsvorschriften die den
gültigen Sicherheitsnormen entsprechen, nicht eingehalten werden.
WICHTIGE SICHERHEITS ANLEITUNGEN FÜR DIE
INSTALLATIONEN
- ACHTUNG -
FÜR DIE SICHERHEIT DER PERSONEN IST ES WICHTIG,
DASS ALLE ANWEISUNGEN GENAU AUSGEFÜHRT WERDEN
GG
BBD
D