
www.pulsar.pl PSUPS20A12E
2. Installation.
2.1 Requirements.
The buffer PSU is to be mounted by a qualified installer, holding relevant permits and licenses (applicable
and required for a given country) for 230V AC interference and low-voltage installations. The unit should be
mounted in confined spaces, in accordance with the 2nd environmental class, with normal relative humidity
(RH=90% maximum, without condensation) and temperature from -10°C to +40°C. The PSU shall work in a vertical
position that guarantees sufficient convectional air-flow through ventilating holes of the enclosure.
The power supply load balance should be done before installation:
1. Output current 16x0,8A + 5A recorder + 2A battery charging*
2. Output current 16x0,7A + 5A recorder + 4A battery charging*
3. Output current 16x0,4A + 5A recorder + 8A battery charging*
Total current of the receivers + battery 20A*max.
As the PSU is designed for a continuous operation and is not equipped with a power-switch, therefore an
appropriate overload protection shall be guaranteed in the power supply circuit. Moreover, the user shall be
informed about the method of unplugging (most frequently through separating and assigning an appropriate fuse in
the fuse-box). The electrical system shall follow valid standards and regulations.
2.2 Installation procedure.
1. Before installation, make sure that the voltage in the 230V power-supply circuit is cut off.
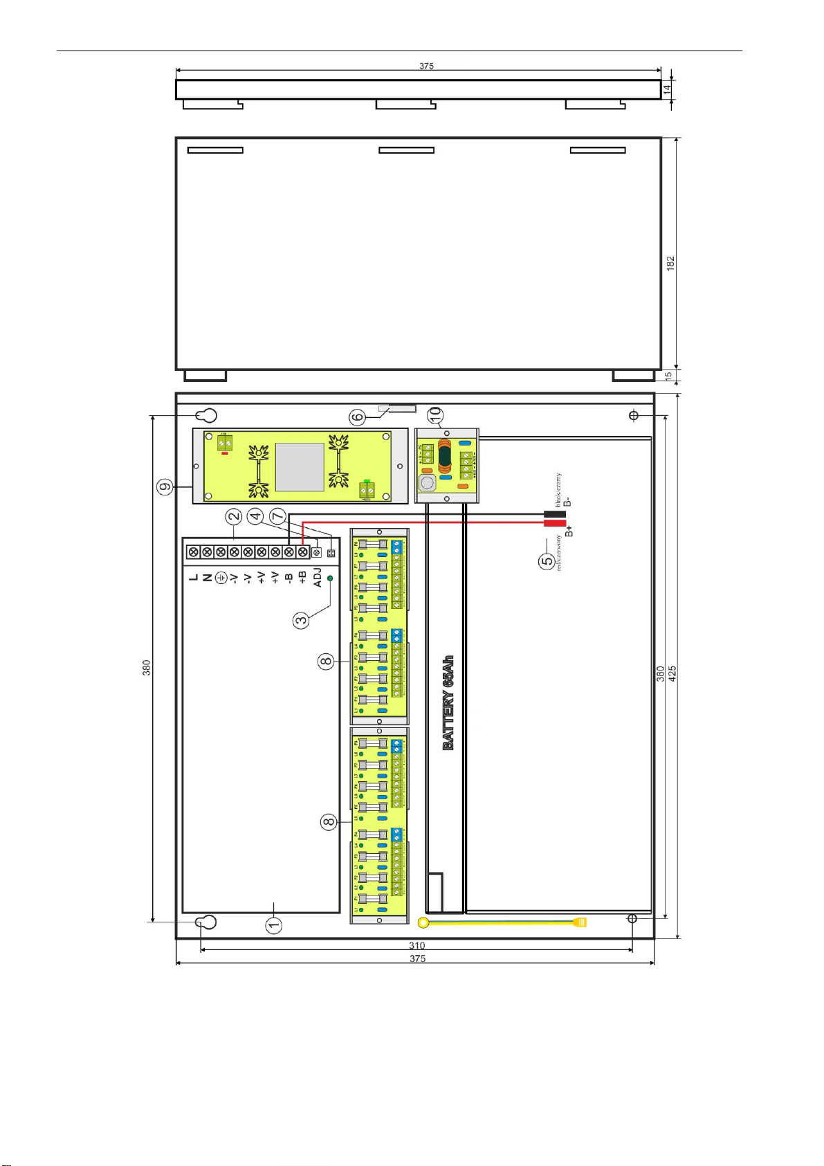
2. Mount the PSU in a selected location and connect the wires.
3. Connect the power cables (~230V AC) to L-N terminals of the PSU. Connect the ground wire to the terminal
marked by the earth symbol –“ ” on the plate. Use a three-core cable (with a yellow and green PE protection
wire) to make the connection. Lead the cables to the appropriate terminals of the connection board through the
bushing.
The shock protection circuit shall be performed with a particular care, i.e. the yellow and green
wire coat of the power cable shall stick to one side of the terminal marked with the ‘ ’ earth
symbol in the PSU enclosure. Operation of the power supply without a properly made and fully
operational shock protection circuit is UNACCEPTABLE! It can result in device damage or an
electric shock.
4. Connect the power supply of the DVR (by default, the device is equipped with a cable terminated with the DC 2.1
/ 5.5 plug).
5. Connect the camera cables to the AUX1…AUX16 connectors of the LB8 modules.
6. Connect the power (~230V).
7. Check the PSU output voltage:
- the PSU voltage without load should amount to U=13,8V DC.
8. Connect the battery (mind the colours):
- battery output (+): BAT+ cable / red,
- battery output (-): BAT –cable / GND / black.
9. Check the PSU operation indicator: green LED on the power supply module.
10. After installing and checking proper working, the enclosure can be closed.
*See chart 1