
Supplied By www.heating spares.co Tel. 0161 620 6677
3
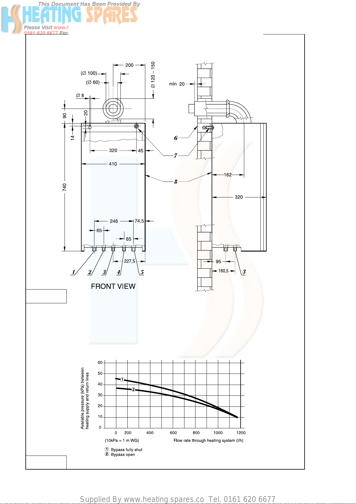
80EC
The following information is displayed:
•Actual heating temperature (°C) - LED (3) lights on
displayed during standby
•Actual domestic hot water temperature (°C) - LED (4) lights
displayed during hot water demand
•System pressure (bar) – LED (2) lights
for 25 sec after Bar button is pressed
•Diagnostic messages – displayed letter F and numbers from 0 to 4
Make sure that:
• The boiler is connected to the electrical supply.
• The boiler gas service cock is open.
• The CH system is filled up and pressurized between 1 and 2 bar.
The boiler is now ready to start.
To start the boiler
Switch on the mains switch (display will light up). The version of the software used is displayed for 2 sec.
To stop the boiler
Switch off the mains switch (display will go out).
If the boiler is to be out of operation for a long period, turn off the gas service cock.
Boiler setting
All parameters are adjustable by means of 3 buttons, pushing the RESET button restarts the boiler.
Note: Buttons must be pressed in the middle.
Domestic hot water setting
• Press Mode button until LEDs (4) flash.
• Using buttons (6) and (9) set the desired hot water temperature.
Setting steps: 40, 42, 45, 48, 50, 52, 55, 58, 60 C
• Set ´– –´ if hot water is not required.
• Press Mode button to save new setting.
Heating setting / summer mode setting
• Press Mode button until LED (3) flashes.
• Using buttons (6) and (9) set the desired heating temperature.
Setting steps: 45, 50, 55, 60, 65, 70, 75, 80, 85 C
• Set ´– –´ if only hot water is required (summer mode).
• Press Mode button to save new setting.
The heating will operate according to the requirements of the timeclock and/
or room thermostat if fitted or, will operate according to the system require-
ments. Domestic hot water (DHW) always has priority over central heating
(CH).
Note: All new settings are stored by pressing MODE button. If MODE but-
ton is not pressed for 20 sec the display reverts to standby mode and
old settings are retained.
Helpfull hint
If you get confused and wish to start again, switch boiler off, press and
hold button (9) and switch boiler on by main switch. The boiler will revert to
the internal factory set programme (heating temperature 80 °C, hot water
temperature 50 °C, ma imum heat output).
Timeclock
The boiler can be switched on and off automatically by the built-in timeclock. To set the timeclock, pro-
ceed as follows: (refering to diagram 1).
Press in the tappets corresponding to the time you want the boiler to be on.
For e ample if you want the boiler to be on between 7 AM and 9 AM, push in all the tappets between 7
and 9.
Set the times you want the boiler to be on for the rest of the day in the same way.
Note: The timeclock setting is in 24 hour format. Therefore, if you want the boiler to come on at 2 PM you
must push in the tappets at 14.