
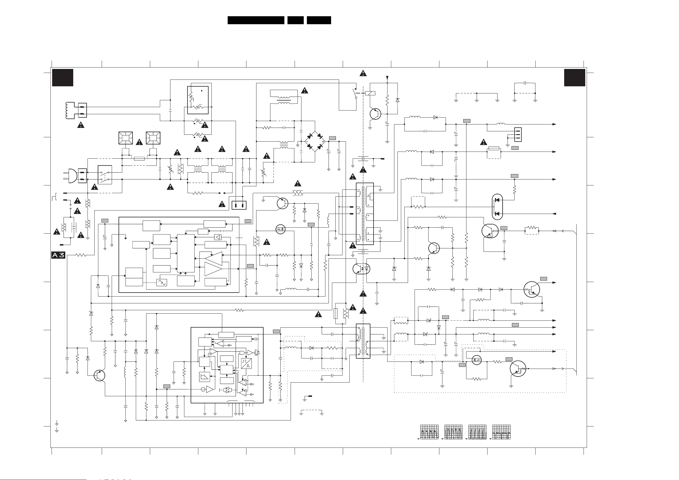
Circuit Diagrams and PWB Layouts 7L04E AD 7.
Mono Carrier: Diversity Table for A2
2411
Size
Tube
2412
2413
2416
2418
2419
2425
3295
3224
2487
2451
12345678910
12345678910
A
B
C
D
E
F
G
A
B
C
D
E
F
G
BY359X-1500
DVM1500M
-
-
-
BY229X-800
BY359X-1500
-
BY229X-800
BY359X-1500
9407
9417
JMP
-
-
JMP
-
-
-
-
JMP
-
-
JMP
-
JMP JMP
-
-
BY229X-800
BY359X-1500
-
BY229X-800
JMP
-
JMP
-
--
-
JMP
-
JMP
-
2490 47n - - - - - - -
6404
6411
6412
DVM1500M
-
-
-
BY229X-800
BY359X-1500
-
BY229X-800
BY359X-1500
-
-
JMP
JMP
- - - JMP JMP JMP -
JMP - - - - JMP - JMPJMP JMP - JMP
- - - JMP - -
--
-
-
-
DVM1500M
-
-
-
DVM1500M
-
-
-
DVM1500M
-
-
-
DVM1500M
-
-
-
DVM1500M
-
-
9407
9417
-
-
-
JMP
JMP
-
JMP
-
JMP
BY359X-1500 BY359X-1500 -
- - BY229X-80 BY229X-80 BY229X-800 -
DVM1500M
- -
DVM1500M DVM1500M DVM1500M - DVM1500M DVM1500M
- - BY229X-800 - -
- - - BY359X-1500 - -
-
DVM1500M
-
6404
6411
6412
DVM1500M
-
-
-
BY229X-800
BY359X-1500
DVM1500M
-
-
DVM1500M
-
-
DVM1500M
-
-
-
BY229X-800
BY359X-1500
DVM1500M
-
-
DVM1500M - - - DMV1500M
- - BY359X-1500
1362-0015AB
33uH 10%
BU2725DX
680K 5%
1M 5%
4u7
2490 47n - - - - - 47n - - - - -
47n --- - - -- -- - --
4u7
LPD
32 WR
680pF
11nF
15nF
4n7
-
430nF
33nF
220nF
1nF
8K2 5%
3R3 1W
68K 1%
18K 5%
220R 5%
220R 5%
1R5 1%
6R8 1%
470K 5%
15K 5%
-
-
-
56K 5%
56K 5%
-
680K 5%
25uH
SC21329-00B
8K2 5%
4R7 1W
82K 1%
68K 1%
18K 5%
22K 5%
220R 5%
220R 5%
3R3 1%
3R3 1%
470K 5%
15K 5%
-
-
-
56K 5%
-680K 5%
25uH
SC21329-00B
1342.0042CY
22uH 10%
BU4508DX
56K 5%
1M 5%
2457 4u7 4u7 4u7 4u7 4u7 4u7
68K 1%
18K 5%
22K 5%
220R 5%
220R 5%
1R5 1%
6R8 1%
470K 5%
15K 5%
-
-
-
56K 5%
-680K 5%
50uH
SC21329-00B
1362-0015AB
0.588 COL
BU2725DX
56K 5%
1M 5%
680pF
11nF
15nF
2n2
-
470nF
33nF
220nF
1nF
33K 5%
220R 5%
220R 5%
2R2 1%
2R2 1%
680K 5%
15K 5%
-
-
-
56K 5%
-680K 5%
25uH
CU15
1362.0016AB
39uH 10%
BU4508DX
56K 5%
680pF
11nF
15nF
4n7
-
430nF
33nF
220nF
1nF
8K2 5%
3R3 1W
82K 1%
220R 5%
1R5 1%
2R2 1%
680K 5%
15K 5%
-
-
-
56K 5%
-680K 5%
50uH
SC21329-00B
1342.0048B
27uH 10%
BU2725DX
56K 5%
1nF
13nF
33nF
-
360nF
2u2
33nF
220nF
1nF
1M 5%
8K2 5%
2R2 1W
82K 1%
68K 1%
18K 5%
2R2 1%
680K 5%
15K 5%
-
-
-
56K 5%
-680K 5%
50uH
SC21329-00B
1342.0048B
27uH 10%
BU2725DX
56K 5%
470pF
9n1
18nF
-
390nF
470nF
33nF
220nF
1nF
1M 5%
8K2 5%
10R 1W 5%
82K 1%
120K 5%
18K 5%
33K 5%
220R 5%
15K 5%
-
-
-
56K 5%
-680K 5%
37uH
SC21329-00B
1342.0048B
22uH 10%
BU2725DX
56K 5%
470pF
9n1
18nF
-
390nF
470nF
33nF
220nF
1nF
1M 5%
8K2 5%
10R 1W 5%
82K 1%
120K 5%
18K 5%
33K 5%
220R 5%
220R 5%
1R5 1%
LPD LPD
24 WR 25 I 28 I 29 RF 28 WR 28 WS
Region EUROPE
56K 5%
1n2
13nF
15nF
2n2
-
470nF
33nF
220nF
1nF
1M 5%
8K2 5%
4R7 1W
82K 1%
56K 1%
18K 5%
22K 5%
220R 5%
220R 5%
3R3 5%
3R3 1%
470K 5%
220nF
1nF
1M 5%
8K2 5%
4R7 1W
82K 1%
68K 1%
18K 5%
22K 5%
220R 5%
220R 5%
3R3 1%
3R3 1%
470K 5%
15K 5%
-
-
-
56K 5%
-680K 5%
82uH
CU15
1342.0033CY
22uH 10%
BU4508DX
LPD
21RF
LPD LPD LPD LPD
2487
3224
3295
3414
3431
3451
3452
3453
3467
3468
3471
3472
3473
3474
3481
3482
3483
3491
3494
3499
5401
5408
5450
5451
7405
470pF
8n2
33nF
-
470nF
2u2
33nF
22uH 27uH 10% 68uH 5% 27uH 10% 22uH 68uH 5% 27uH 10% 22uH 10%
BU4508DX BU4508DX BU4508DX BU2725DX BU4508DX BU4508DX BU4508DX BU4508DX BU4508DX BU4508DX BU4508DX BU4508DX
DIVERSITY TABLE FOR DEFLECTION
Tube
Size
2411
2412
2413
2416
2418
2419
2425
2451
33uH 42uH 82uH 33uH 33uH
- CU15 CU15 SC2132 9-00B CU15 CU15 -CU15 CU15 - CU15 CU15
JF0501-2135B JF0501-2136B JF0101-85021B JF0501-2601B JF0501-2135B JF0501-2135B JF0501-2136B JF0501-2601B JF0501-2135B JF0501-2136B JF0501-2133B
68uH 5% 27uH 10% 27uH 10% 0.58mm COL
56K 5%
--
680K 1% -
-
-- --- --
680K 5% 680K 5% 680K 5% 680K 5% 680K 5% 680K 5% 680K 5% 56K 5% 56K 5% 56K 5% 56K 5% 56K 5%
82uH 37uH 33uH 42uH 42uH
37uH
82uH
-
-- --- -
--
---
56K 1% -
-
-- --- -
82K 5% 100K 5% 82K 5% 82K 5% 82K 5% 100K 5% 56K 5% 82K 5% 82K 5% 82K 5% 82K 5%
390K 5% 680K 5% 680K 5%
15K 5% 15K 5% 15K 5% 15K 5% 15K 5% 15K 5% 15K 5% 15K 5% 15K 5% 15K 5% 15K 5% 15K 5%
---
4R7 5% -
-
-- --- -
---
22K 1% -
2R4 1% 2R4 1% 1R8 1% 2R2 1% 2R4 1% 3R9 1% 2R4 1% 2R2 1% 2R2 1% 2R4 1% 2R2 1%
3R9 1% 2R4 1% 2R4 1% 3R3 1% 2R2 1% 2R4 1% 4R7 1% 2R4 1% 2R2 1% 3R9 1% 2R4 1% 2R2 1%
390K 5% 820K 5% 680K 5% 820K 5% 430K 5% 820K 5% 680K 5% 680K 5% 430K 5%
33K 5% 33K 5% 33K 5% 33K 5% 33K 5% 33K 5% 33K 5%
220R 5% 120R 5% 120R 5% 220R 5% 150R 5% 120R 5% 220R 5% 120R 5% 150R 5% 220R 5% 120R 5% 220R 5%
220R 5% 150R 5% 150R 5% 220R 5% 150R 5% 150R 5% 220R 5% 150R 5% 150R 5% 220R 5% 150R 5% 220R 5%
2R2 1%
82K 1% 82K 1% 82K 1%
82K 1% 68K 1% 68K 1% 82K 1% 68K 1% 68K 1% 68K 1% 68K 1% 68K 1% 82K 1% 68K 1% 56K 1%
18K 5% 18K 5% 15K 5% 6K8 5% 18K 5% 18K 5% 18K 5% 15K 5% 18K 5% 18K 5% 15K 5% 18K 5%
33K 5% 33K 5% 33K 5% 22K 5% 33K 5%
2K7 5% 8K2 5% 10K 5% 8K2 5% 7K5 1% 8K2 5% 8K2 5% 10K 5% 7K5 1% 2K7 5% 10K 5% 8K2 5%
1R 1W 5% 1R 1W 5% 6R8 1W 5% 6R8 1W 5% 1R 1W 5% 4R7 1W 5% 1R 1W 5% 6R8 1W 5% 10R 1W 5% 1R 1W 5% 4R7 1W 5%
82K 1% 82K 1% 82K 1% 82K 1% 10K 1% 82K 1% 82K 1% 82K 1% 10K 1%
4u7 4u7 4u7 4u7 4u7 4u7 4u7 4u7
1nF 1n5 1nF 1n5 3n3 1n5 1nF 1nF 3n3 1nF 1nF 1nF
1M 5% 680K 5% 680K 5% 680K 5% 1M 5% 680K 5% 1M 5% 680K 5% 1M 5% 1M 5% 680K 5% 1M 5%
2u2 - 2u2 2u2
- 33nF 33nF 33nF 33nF10nF - 33nF 10nF - 33nF 33nF
120nF 120nF 220nF 180nF 270nF 120nF 220nF 220nF 270nF 120nF 220nF 220nF
4u7 4u7 4u7 4u7
-- 3n3 - - - - 3n3 3n3-- -
220nF 360nF 330nF - 300nF 360nF 270nF 330nF 300nF 220nF 330nF 390nF
- 2u2 2u2 430nF 2u2 2u2 - 2u2
1nF 680nF 220pF 1.2nF 1nF 220pF 1.2nF 680pF
8n2 15nF 15nF 13nF 12nF 15nF 8n2 15nF 12nF 8n2 15nF 13nF
68nF 33nF 33nF 18nF 33nF 33nF 68nF 33nF 33nF 68nF 33nF 39nF
CPT LPD LPD LPD LPD LPD
21RF
10R 1W 5%
JF0501-2135B
LPD LPD LPD CPD LPD SMGK
CHINA INDIA
25RF 29RF 32WR 34RF 25RF 21RF 29RF 34RF 21RF 29RF 29FSQ
220pF 680nF 1.2nF 330pF
4u7 4u7 4u7 4u7 4u7
-- --
---
-
-
-
-
-
-
-
-
--
-
-
-
-
-
--
-
LATAM AP
CU15 SC2132 9-00B SC2132 9-00B SC2132 9-00B CU15
27uH 10% 27uH 10% 39uH 10% JMP JMP 27uH 10%
BU4508DX BU4508DX BU4508DX BU2725DX BU2725DX BU4508DX
JF0501-2153B JF0501-21835B JF0501-21133B JF0501-85021B JF0101-85021B JF0501-2136B
2457 4u7 4u7 4u7 4u7 4u7 4u7 4u7 4u7
22K 1% 22K 1%22K 1%
56K 1% 56K 1%56K 1%
100K 5% 100K 5% 82K 5% 100K 5% 82K 5% 82K 5%
180K 5% 680K 5%
-680K 5% -680K 5% -680K 5% -680K 5% -680K 5%-680K 5%
37uH 50uH 16uH 42uH 42uH 25uH
150R 5% 220R 5% 220R 5% 150R 5% 220R 5% 150R 5%
2R4 1% 2R2 1% 2R7 1% 1R8 1% 1R8 1%
2R4 1% 3R3 1% 3R3 1% 2R4 1% 3R3 1% 2R2 1%
820K 5% 390K 5% 1M 5% 680K 5% 820K 5% 1M 5%
15K 5% 15K 5% 15K 5% 12K 5% 15K 5% 15K 5%
5R6 5% 4R7 5%5R6 5%
6R8 1W 5% 0R33 1W 5%
82K 1% 82K 1% 82K 1% 82K 1% 82K 1% 82K 1%
68K 1% 68K 1% 120K 1% 82K 1% 82K 1% 68K 1%
18K 5% 18K 5% 27K 5% 15K 5% 6K8 5% 15K 5%
33K 5% 33K 5% 33K 5% 22K 5% 22K 5% 33K 5%
120R 5% 120R 5% 220R 5% 120R 5% 220R 5% 120R 5%
33nF 33nF 33nF 33nF 33nF
100nF 150nF 120nF 150nF 180nF 100nF
1n5 1n5 1n5 1n5 3n3
680K 5% 680K 5% 680K 5% 560K 5% 680K 5% 680K 5%
8K2 5% 8K2 5% 8K2 5% 10K 5% 8K2 5% 8K2 5%
1R 1W 5% 1R 1W 5% 4R7 1W 5% 2R2 1W 5%
LPD
32WR
SMGK
29RF
680nF 470pF 1.2nF 1.2nF 330pF 1.5nF
15nF 12nF 15nF 13nF 13nF 15nF
33nF 120nF 18nF 15nF 18nF 39nF
2n2 3n3
360nF 390nF 330nF
2u2 470nF 390nF 430nF 2u2
8K2 5%
3R3 1W 5%
82K 1%
68K 1%
18K 5%
33K 5%
120R 5%
150R 5%
2R2 1%
2R 1%
680K 5%
15K 5%
-
-
-
100K 5%
-680K 5%
33uH
CU15
JF0501-21835B
33uH 10%
BU4508DX
-
680K 5%
25 RF
LPD
27V
LPD
28WS
LPD
28WR
6K8 5%
22K 5%
220R 5%
220R 5%
1R8 1%
3R3 1%
820K 5%
15K 5%
4R7 5%
22K 1%
56K 1%
82K 5%
-680K 5%
42uH
SC2132 9-00B
JF0101-85021B
JMP
BU2725DX
680K 5%
680K 5%
1.2nF
15nF
33nF
-
390nF
2u2
33nF
100nF
1n5
150R 5%
150R 5%
2R2 1%
2R2 1%
820K 5%
15K 5%
5R6 5%
22K 1%
56K 1%
68K 5%
-680K 5%
25uH
CU15
JF0101-85020B
JMP
BU4508DX
680K 5%
330pF
13nF
18nF
-
-
430nF
33nF
180nF
1n5
8K2 5%
6R8 1W 5%
82K 1%
82K 1%
2R4 1%
2R7 1%
820K 5%
15K 5%
2R7 5%
22K 1%
56K 1%
82K 5%
-330K 5%
33uH
CU15
JF0501-21140B
27uH 10%
BU2725DX
150K 5%
680pF
12nF
33nF
4n7
270nF
2u2
10nF
150nF
2n2
560K 5%
8K2 5%
1R 1W 5%
10K 1%
68K 1%
6K8 5%
33K 5%
820K 5%
15K 5%
10R 5%
2K4 1%
5K6 1%
100K 5%
-680K 5%
33uH
CU15
JF0501-21836B
33uH 10%
BU4508DX
100K 5%
2.2nF
15nF
33nF
-
470nF
2u2
33nF
180nF
1n5
680K 5%
8K2 5%
0R33 1W 5%
82K 1%
75K 1%
15K 5%
22K 5%
220R 5%
150R 5%
5R6 5%
22K 1%
56K 1%
100K 5%
-680K 5%
42uH
SC2132 9-00B
JF0501-85021B
JMP
BU2725DX
-
1.5nF
15nF
39nF
-
330nF
2u2
33nF
180nF
1n5
680K 5%
8K2 5%
1R 1W 5%
82K 1%
68K 1%
15K 5%
33K 5%
120R 5%
150R 5%
2R4 1%
2R4 1%
28 WR 29 RF 32 V 32 V RF 32 WR 25 RF
Region NAFTA
180K 5%
1.2nF
13nF
15nF
3n3
-
390nF
33nF
150nF
1n5
680K 5%
10K 5%
2R2 1W 5%
82K 1%
82K 1%
15K 5%
22K 5%
120R 5%
150R 5%
2R7 1%
2R4 1%
680K 5%
12K 5%
8K2 5%
1R 1W 5%
82K 1%
68K 1%
18K 5%
33K 5%
120R 5%
220R 5%
-
3R3 1%
390K 5%
15K 5%
5R6 5%
22K 1%
56K 1%
100K 5%
-680K 5%
50uH
-
JF0501-21835B
27uH 10%
BU4508DX
LPD
27 V
LPD LPD LPD LPD LPD SMGK LPD
3414
3431
3451
3452
3453
3467
3468
3471
3472
3473
3474
3481
3482
3483
3491
3494
3499
5401
5408
5450
5451
7405
470pF
12nF
120nF
-
390nF
-
-
150nF
-
680K 5%
E_14480_127.eps
100504
3139 123 5676.1