10
Installation and User’s Guide
11
Installation and User’s Guide
2.3.8. MARKER
Switch the maker of screen.
Whenever Marker button is pressed. Marker will be toggled ON/OFF.
2.3.9. CHAR
Select the user-defined character display.
Whenever CHAR button is pressed. User-defined characters will be displayed ON/OFF
Default: OFF.
2.3.10. WFM
Select the WFM of monitor.
Whenever WFM button is pressed. WFM will be toggled ON/OFF.
Default: OFF.
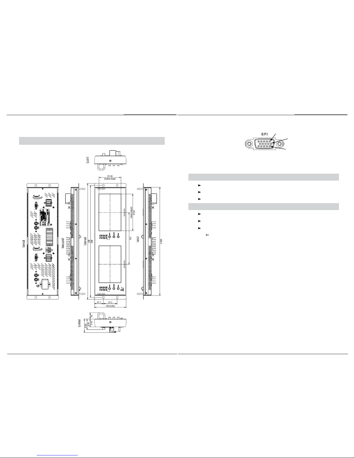
2.3.11. Tally
Bi-Color (Red/Green).
Controlled via remote GPI.
Default: Off
3. OSD MENU
Level 1 Level 2 Level 3 Level 4
INFORMATION
VIDEO FORMAT Current video format(Display only)
COLOR TEMP Current color temperature(Display only)
VERSION Current firmware version(Display only)
VIDEO
EXIT Return to Level 1
APERTURE ON / OFF, default: OFF
APT LEVEL 0 ~ 100, default: 80
GAMMA 1.0 ~ 3.0, default: 2.2
SHIFT H -128 ~ 127, default: 0
SHIFT V -128 ~ 127, default: 0
COLOR TEMP 6500K / 9300K / USER
COLOR TEMP USER
COPY FROM 6500K/9300K
RED GAIN 0.500 ~ 1.992, default: 1.00
GREEN GAIN 0.500 ~ 1.992, default: 1.00
BLUE GAIN 0.500 ~ 1.992, default: 1.00
RED BIAS -128 ~ 127, default: 0
GREEN BIAS -128 ~ 127, default: 0
BLUE BIAS -128 ~ 127, default: 0
MODE
EXIT Return to Level 1
SCAN NORMAL / OVERSCAN / ZOOM, default: NORMAL
ASPECT AUTO / 4:3 / 16:9 /, default: AUTO
MONO/COLOR RGB / MONO / RED / GREEN / BLUE, default: RGB
HV DELAY ON / OFF, default: OFF
MARKER
EXIT Return to Level 1
MARKER ON / OFF, default: OFF
CENTER ON / OFF, default: ON
ASPECT OFF / 4:3 / 16:9 / 1.85:1 / 2.35:1 / 13:9 / 14:9 / 15:9,
default: OFF
SAFETY OFF, 80 ~ 99%, USER, default: 80%
CROSS HATCH OFF / SMALL / MEDIUM / LARGE, default OFF
AUDIO
EXIT Return to Level 1
LEFT CHANNEL 1 ~ 16, default: 1
RIGHT CHANNEL 1 ~ 16, default: 2
CHANNEL PRESET LOCK / UNLOCKED, default: UNLOCKED
LEVER METER ON / OFF, default: OFF
BACKGROUND ON / OFF, default: OFF
DECAY FAST / MEDIUM / SLOW, default: MEDIUM
DISPLAY CHANNELS 1 ~ 16, default: 8
DISP FILTER ALL / ACTIVE, default: ALL
COLUMNS DUAL / QUAD, default: DUAL
DISP TPYE OVERLAY / OVERLAP, default: OVERLAP
WAVEFORM
EXIT Return to Level 1
WAVEFORM ON / OFF, default: OFF
SIZE SMALL / MEDIUM / LARGE, default MEDIUM
POSITION LEFT TOP / LEFT BOT / RIGHT TOP / RIGHT BOT,
default RIGHT BOT
DISP TYPE OVERLAY / OVERLAP, default: OVERLAY
VECTORSCOPE
EXIT Return to Level 1
VECTORSCOPE ON / OFF, default: OFF
SIZE SMALL / MEDIUM / LARGE, default: MEDIUM
POSITION LEFT TOP / LEFT BOT / RIGHT TOP / RIGHT BOT,
default: LEFT BOT
DISP TYPE OVERLAY / OVERLAP, default: OVERLAY
REMOTE
EXIT Return to Level 1
PIN 1 R TALLY(fixed)
PIN 2 G TALLY(fixed)
PIN 3 default: R ONLY