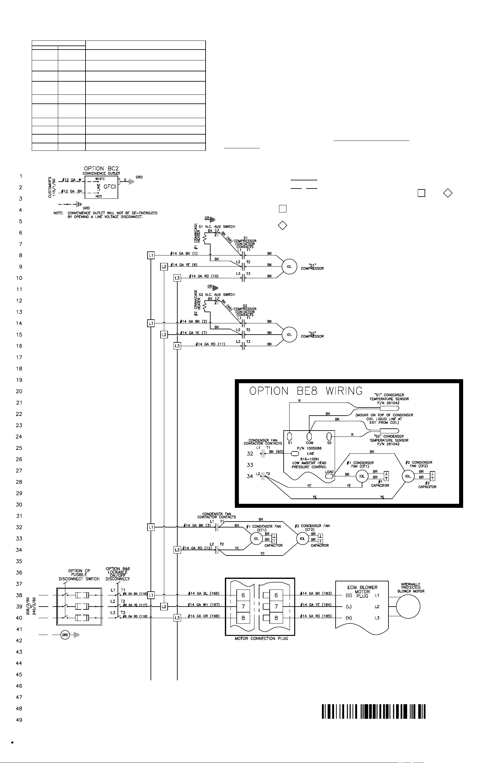
TERMINAL BLOCK -- UNIT PANEL
R7TQ 090/120: AK20 - AMS6 DWG #1011728 SHT. #1
L1
L3
3
5
7
7
8
8
10
16
20
21
22
36
37
38
39
40
41
46
48
50
51
52
53
54
72
WIRING CODE
BLACK - BK
BROWN - BR
RED - RD
ORANGE - OR
YELLOW - YE
GREEN - GN
BLUE - BL
VIOLET - VI
WHITE - WH
TERMINAL BLOCK -- UNIT PANEL L1
L2
L3
A TEMPERATURE RATING OF AT LEAST 105 DEGREES C.,
MUST BE REPLACED, IT MUST BE REPLACED WITH WIRING MATERIAL HAVING
2. CAUTION: IF ANY OF THE ORIGINAL WIRE AS SUPPLIED WITH THE APPLIANCE
3. LINE AND BLOWER MOTOR BRANCH CIRCUIT WIRE SHOULD BE OF A SIZE
TO PREVENT VOLTAGE DROP BEYOND FIVE PERCENT OF SUPPLY LINE VOLTAGE.
NOTES
TIMES THE MAXIMUM TOTAL INPUT AMPS.
LINE FEEDS CONNECT TO THE LOCKABLE DISCONNECT OR DISTRIBUTION BLOCKS.
USE DUAL ELEMENTS TIME DELAY FUSES AND SIZE ACCORDING TO 1.25
7. ALL MOTORS MARKED IOL HAVE INTERNAL LINE BREAK.
6. WHEN PROVIDING OR REPLACING FUSES IN THE FUSIBLE DISCONNECT SWITCH
5. USE #18 GA. WIRE FOR 24 VOLT CONTROL WIRING ON UNIT.
4. SEE RATING PLATE LABEL FOR MCA, TO DETERMINE LINE FEED COPPER WIRE SIZE.
8. FUSIBLE DISCONNECT IS FIELD FURNISHED OR AVAILABLE FROM FACTORY AS AN OPTION.
9. THE LINE SIDE OF THE DISCONNECT SWITCH MUST BE CONNECTED TO THE INCOMING
POWER SUPPLY SUCH THAT THE VOLTAGE BETWEEN L1 AND GROUND IS THE GREATER VALUE.
GRAY - GY
(LOW VOLTAGE SECTION)
(HIGH VOLTAGE SECTION)
FIELD CONTROL WIRING
350 FEET #14 GA.
250 FEET #16 GA.
150 FEET #18 GA.
LENGTH WIRE SIZE
TOTAL WIRE MINIMUM RECOMMENDED
FIELD WIRING
FACTORY WIRING
1. DISCONNECT ALL POWER BEFORE SERVICING.
DSI BOARD LED's
LED STATE
COLOR CODE
GREEN STEADY ON
GREEN FAST FLASH
GREEN 1 FLASH
GREEN 2 FLASHES
GREEN 3 FLASHES
GREEN 4 FLASHES
GREEN STEADY OFF
YELLOW STEADY ON
YELLOW SLOW FLASH
YELLOW FAST FLASH
NORMAL OPERATION NO CALL FOR HEAT
NORMAL OPERATION CALL FOR HEAT
IN LOCKOUT FROM FIELD IGNITIONS OR FLAME LOSSES
PRESSURE SWITCH DOES NOT CLOSE WITHIN 30 SECONDS
OF VENTER ENERGIZED
LIMIT SWITCH OPEN
PRESSURE SWITCH IS CLOSED BEFORE VENTER IS
INTERNAL CONTROL FAULT OR NO POWER
FLAME SENSED
WEAK FLAME
UNDESIRED FLAME (VALVE OPEN & NO CALL FOR HEAT)
ENERGIZED
REFER TO DRAWING # 1011991 FOR STANDARD PLUG & ECONOMIZER PLUG CONNECTION