
Anslutning av cirkulationspump (GP9)
Anslut cirkulationspumpen (GP9) till AA5-X9:8 (230V),
AA5-X9:7 (N) och X1:3 (PE).
Apparatlåda Externt
GP9
AA5-X9
X1
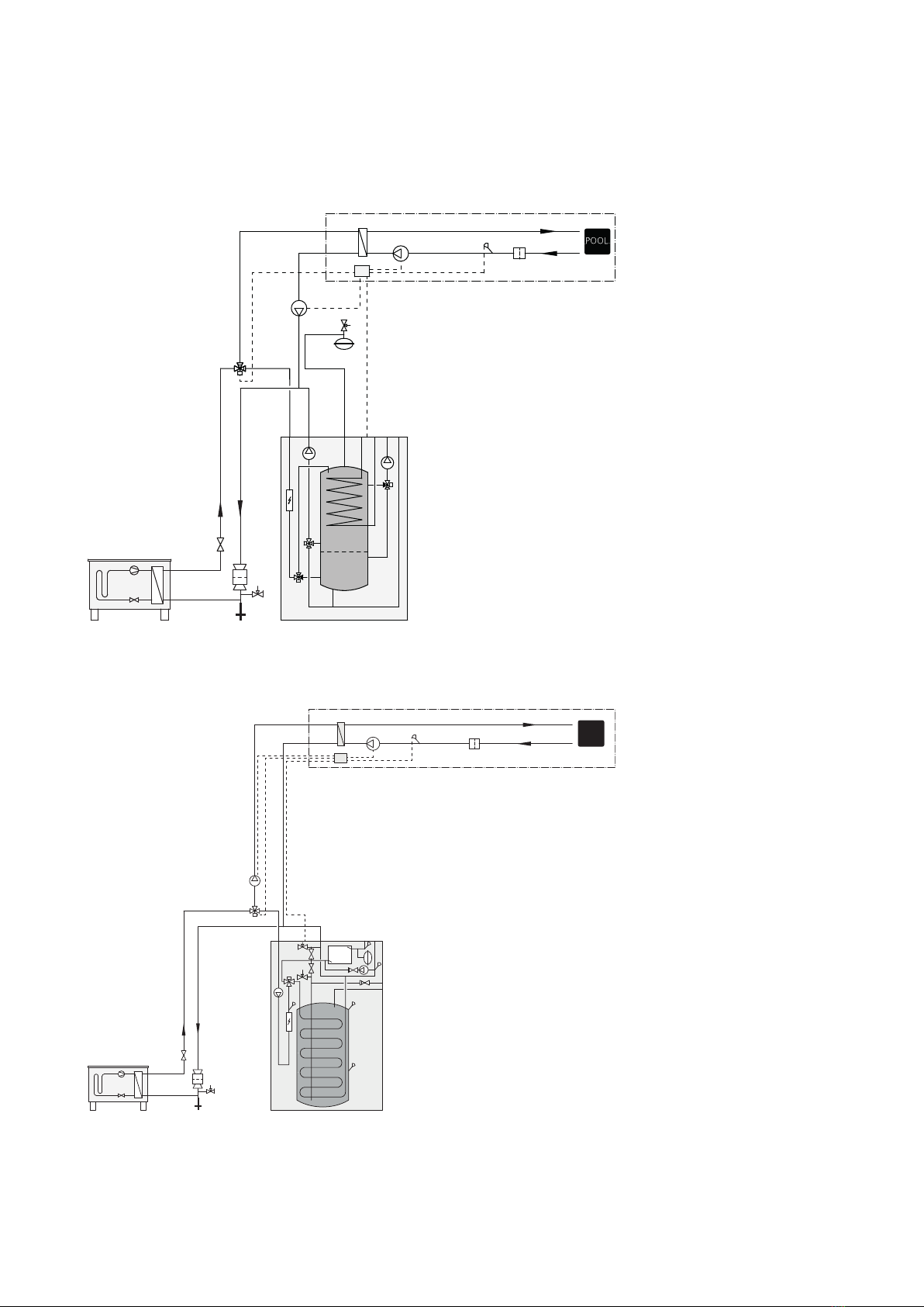
Anslutning av växelventilsmotor (QN19) och
laddpump, pool (GP12)
Anslut växelventilens motor (QN19) och laddpumpen
(GP12) till en extern kopplingsbox.
Anslut svart ledare från växelventilen samt brun ledare
från laddpumpen tillsammans i kopplingsboxen.
Anslut blå ledare från växelventilen samt blå ledare från
laddpumpen tillsammans i kopplingsboxen.
Anslut styrande kabel från kopplingsboxen till AA5-X9:6
(signal), AA5-X9:5 (N), AA5-X10:2 (230V) och X1:3(PE).
Anslut laddpumpens styrsignal till AA5-X2:5-6.
Svart
Blå
Brun
AA25 Externt
AA5-X9 QN19
AA5-X10 GP12
X1
AA5-X2
Blå
Brun
Blå
Brun
Gul/grön
Kopplingsbox
DIP-switch
DIP-switchen (S2) på tillbehörskortet (AA5) ska ställas in
enligt nedan.
Programinställningar
Programinställningen av POOL 310 kan göras via start-
guiden eller direkt i menysystemet.
Startguiden
Startguiden visas vid första uppstart efter värmepumps-
installationen, men finns även i meny 5.7.
Menysystemet
Om du inte gör alla inställningar via startguiden eller
behöver ändra någon inställning kan du göra detta i
menysystemet.
Meny 5.2 - systeminställningar
Aktivering/avaktivering av tillbehör.
Meny 4.1.1 - pool
Aktivering av pooluppvärmning samt inställning av start-
och stopptemperatur.
Meny 5.1.11 - värmebärarpumpshastighet
Inställning av värmebärarpumpens hastighet.
TÄNK PÅ!
Se även installatörshandboken för inomhusmo-
dulen.
Tekniska uppgifter
Tekniska data
POOL 310
230V ~ 50 HzSpänning cirkulationspump
230V ~ 50 HzSpänning växelventil
G1Anslutning pump
G1 x Ø 22
mm klämring
Anslutning kulventil
7,5kvs-värde växelventil
067 247Art nr
624 69 14RSK nr
Pumpkapacitetsdiagram
00 200 400 600 800 1000 1200 1400 1600 2000
20
30
40
50
60
70
80
Tryck
(kPa)
Flöde
(l/h)
10
1800
9POOL 310 | SE