
31-2000667 Rev. 2
Safety Information
READ AND SAVE THESE INSTRUCTIONS
BEFORE YOU BEGIN
Read these instructions completely and carefully.
ŶIMPORTANT—6DYHWKHVHLQVWUXFWLRQV
for local inspector’s use.
ŶIMPORTANT—2EVHUYHDOOJRYHUQLQJ
codes and ordinances.
ŶIMPORTANT—5HPRYHDOOSDFNLQJ
PDWHULDODQGOLWHUDWXUHIURPRYHQEHIRUHFRQQHFWLQJ
gas and electrical supply to range.
ŶIMPORTANT—7RDYRLGGDPDJHWR
\RXUFDELQHWVFKHFNZLWK\RXUEXLOGHURUFDELQHW
VXSSOLHUWRPDNHVXUHWKDWWKHPDWHULDOVXVHGZLOO
QRWGLVFRORUGHODPLQDWHRUVXVWDLQRWKHUGDPDJH
7KLVRYHQKDVEHHQGHVLJQHGLQDFFRUGDQFHZLWK
WKHUHTXLUHPHQWVRI8/DQG&6$,QWHUQDWLRQDODQG
FRPSOLHVZLWKWKHPD[LPXPDOORZDEOHZRRGFDELQHW
WHPSHUDWXUHVRI)&
ŶNote to Installer — %HVXUHWROHDYHWKHVH
LQVWUXFWLRQVZLWKWKHFRQVXPHU
ŶNote to Consumer —.HHSWKHVHLQVWUXFWLRQVZLWK
\RXU2ZQHU¶V0DQXDOIRUIXWXUHUHIHUHQFH
ŶServicer —7KHHOHFWULFDOGLDJUDPLVLQDQHQYHORSH
DWWDFKHGWRWKHEDFNRIWKHUDQJH
Ŷ3URSHULQVWDOODWLRQLVWKHUHVSRQVLELOLW\RIWKH
installer.
Ŷ3URGXFWIDLOXUHGXHWRLPSURSHULQVWDOODWLRQLVQRW
FRYHUHGXQGHUZDUUDQW\
Ŷ%HIRUHLQVWDOOLQJ\RXUUDQJHRQOLQROHXPRUDQ\RWKHU
V\QWKHWLFIORRUFRYHULQJPDNHVXUHWKHIORRUFRYHULQJ
FDQZLWKVWDQG)ZLWKRXWVKULQNLQJZDUSLQJRU
GLVFRORULQJ'RQRWLQVWDOOWKHUDQJHRYHUFDUSHWLQJ
XQOHVVDVKHHWRI´WKLFNSO\ZRRGRUVLPLODU
LQVXODWRULVSODFHGEHWZHHQWKHUDQJHDQGFDUSHWLQJ
Ŷ)RU0RQRJUDP3DUWVDQG$FFHVVRULHVYLVLWRXU
ZHEVLWHDWmonogram.com/ownership/parts/
Ŷ,I\RXUHFHLYHGDGDPDJHGUDQJH\RXVKRXOG
contact your dealer.
IF SOLD OUTSIDE THE U.S. AND
CANADA
WARNING ,I\RXZLVKWRXVHWKLVSURGXFWZLWK
/LTXHILHG3HWUROHXP/3JDVFRQWDLQLQJJUHDWHU
WKDQEXWDQH\RXPXVWSXUFKDVHWKHEXWDQH
FRQYHUVLRQNLW=;%8357RRUGHUSOHDVHFDOO
RU)DLOXUHWRGRVR
PD\UHVXOWLQFDUERQPRQR[LGHRUILUHKD]DUG
VENT HOOD COMBINATIONS
$VXLWDEOHRYHUKHDGYHQWKRRGLVUHTXLUHGIRUPRGHOV
ZLWKDJULOODQGLVUHFRPPHQGHGIRUDOORWKHUPRGHOV
'XHWRWKHKLJKKHDWFDSDFLW\RIWKLVXQLWSDUWLFXODU
DWWHQWLRQVKRXOGEHSDLGWRWKHKRRGDQGGXFWZRUN
installation to assure it meets local building codes.
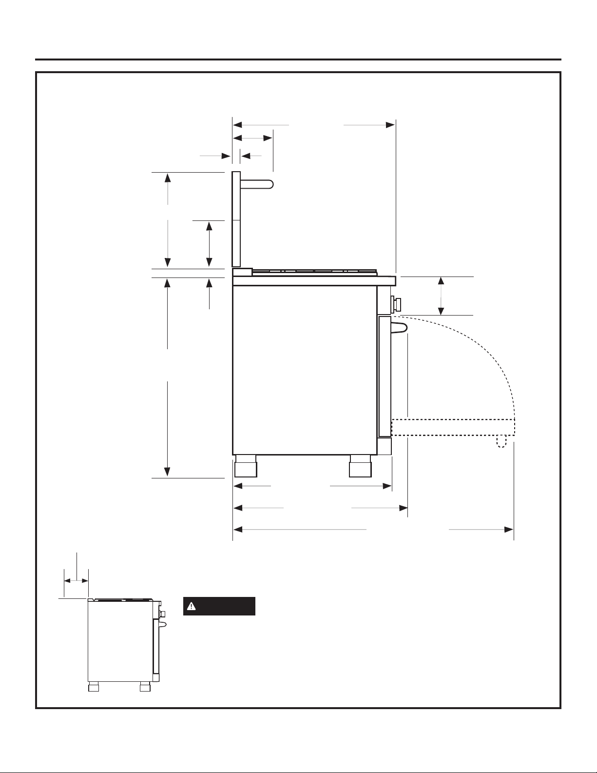
&OHDUDQFHVWRKRUL]RQWDOVXUIDFHVDERYHWKHUDQJH
PHDVXUHGWRWKHFRRNLQJVXUIDFHDUHEHORZ)DLOXUHWR
FRPSO\PD\UHVXOWLQILUHKD]DUG
Ŷ,QVWDOODWLRQVZLWKRXWDKRRGUHTXLUH´PLQLPXP
WRFRPEXVWLEOHVH[FHSWPRGHO='3ZKHUHD
VXLWDEOHYHQWKRRGLVUHTXLUHG
Ŷ$FXVWRPKRRGLQVWDOODWLRQZLWKH[SRVHGKRUL]RQWDO
FRPEXVWLEOHVVXUIDFHVPXVWKDYHDQ$XWR2QIHDWXUH
Ŷ)RURWKHULQVWDOODWLRQVZLWKDKRRGUHIHUWRKRRG
installation instructions for specific hood clearances.
CAUTION 7KHVHUDQJHVZHLJKXSWR
SRXQGV6RPHGLVDVVHPEO\ZLOOUHGXFHWKHZHLJKW
FRQVLGHUDEO\'XHWRWKHZHLJKWDQGVL]HRIWKHUDQJH
DQGWRUHGXFHWKHULVNRISHUVRQDOLQMXU\RUGDPDJHWR
WKHSURGXFW
7:23(23/($5(5(48,5(')253523(5
,167$//$7,212)´$1'´5$1*(6
7+5((3(23/($5(5(48,5(')253523(5
,167$//$7,212)´5$1*(6
5DWLQJ/DEHO/RFDWLRQ 5DWLQJ/DEHO/RFDWLRQ