
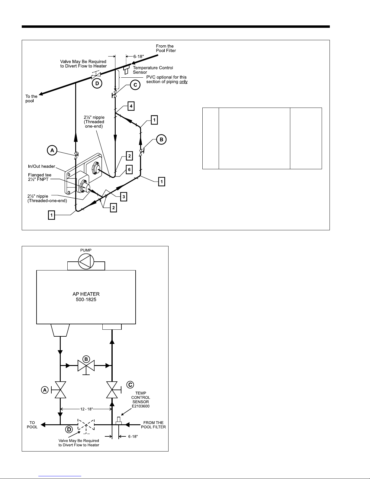
LAARS HEATING SYSTEMS
Page 6
Always use double-wall or insulated vent pipe
(Type B or equivalent). In cold weather, uninsulated
outside vents can chill the rising flue products
blocking the natural draft action of the venting
systems. This can create a health hazard by spilling
flue products in the boiler room.
Avoid oversized vent piping or extremely long
runs of pipe which may cause excessive cooling and
condensation. Rule of Thumb: the total length of the
vent, including the connector and any offset, should
not exceed 15 feet (4.6m) for every inch (25mm) of
vent diameter. Longer total lengths shown in venting
tables are based on maximum capacity, not
condensation factors.
When the installation of a draft fan is necessary
in connecting a venting system to a Laars boiler, the
installation should be engineered by competent
personnel following good engineering practices. The
draft fan supplier should be consulted for correct size.
The installation should be in accordance with the
latest edition of ANSI Z223.1 and/or, in Canada,
CAN/CGA B-149 and any local codes having
jurisdiction. When a draft fan is installed, a suitable
draft switch must be wired into the boiler control
circuit at terminal designated "Field Interlock" to
prevent firing of the boiler unless a positive draft has
been established.
2.2.3 Common Venting System
Test Procedure
At the time of the removal of an existing heater,
the following steps shall be followed with each
appliance remaining connected to the common venting
system. During the testing of each unit, the other
appliances remaining connected to the common
venting system should not be operated.
1. Seal any unused openings in the common
venting system.
2. Visually inspect the venting system for proper
size and horizontal pitch. Determine that there is
no blockage or restriction, leakage, corrosion, or
other deficiencies which could cause an unsafe
condition.
3. Insofar as it is practical, close all building doors
and windows. Also close all doors between the
space in which the appliances remaining
connected to the common venting system are
located and the other spaces of the building.
Turn on any clothes dryer and any appliance not
connected to the common venting system. Turn
on any exhaust fans, including range hoods and
bathroom exhausts, so they will operate at
maximum speed. Do not operate a summer
exhaust fan. Close all fireplace dampers.
4. Place in operation the appliance being inspected.
Follow the lighting instructions for the unit.
Adjust the thermostat so the appliance will
operate continuously.
5. Test for spillage at the draft hood relief opening
after 5 minutes of main burner operation. Use
the flame of a match or candle, or smoke from a
cigarette, cigar, or pipe.
6. After it has been determined that each appliance
remaining connected to the common venting
system properly vents when tested as outlined
above, return doors, windows, exhaust fans,
fireplace dampers and any other gas-burning
appliance to their previous condition of use.
7. Any improper operation of the common venting
system should be corrected so the installation
conforms with the National Fuel Gas Code,
ANSI Z223.1 and/or CAN/CGA B149,
Installation Codes. When resizing any portion of
the common venting system, the common
venting system should be resized to approach the
minimum size as determined using the
appropriate tables in Appendix G in the National
Fuel Gas Code, ANSI Z223.1 and/or CAN/CGA
B149 Installation Codes.
2.2.3 Instructions Relatives au Test des Systèmes à
Évent Commun
Au moment du restrait d’une chaudière
existante, les mesures suivantes doivent être prises
pour chaque appareil toujours reccordé au système
d’évacuation ne fonctionnet pas:
1. Sceller toutes les ouvertures non utilisées du
systèmes d’évacuation.
2. Inspecter de façon visuelle le système
d’évacuation pour déterminer la grosseur et
l’inclinaison horizontale qui conviennent et
s’assurer que le système est exempt
d’obstruction, d’étranglement, de fuite, de
corrosion et autres défaillances qui pourraient
présenter des risques.
3. Dans la mesure du possible, fermer toutes les
portes et les fenêtres du bâtiment et toutes les
portes entre l’espace où les appareils toujours
raccordés au système d’évacuation sont installés
et les autres espaces du bâtiment. Mettre en
marche les sécheuses, tous les appareils non
raccordés au système d’évacuation common et
tous les ventilateurs d’extraction comme les
hottes de cuisinière et les ventilateurs des salles
de bain. S’assurer que ces ventilateurs
fonctionnent à la vitesse maximale. Ne pas faire
fonctionner les ventilateurs d’été. Fermer les
registres des cheminées.
4. Mettre l’appareil inspecté en marche. Suivre les
instructions d’allumage. Régler le thermostat de
façon que l’appareil fonctionne de façon
continue.
5. Faire fonctionner le brûleur principal pendant 5
min ensuite, déterminer si le coupe-tirage
déborde à louverture de décharge. Utiliser la