LOCATION OF THE EQUIPMENT
ZONE 1, IPX4
ZONE 2, IPX2
OUTSIDE THE ZONES
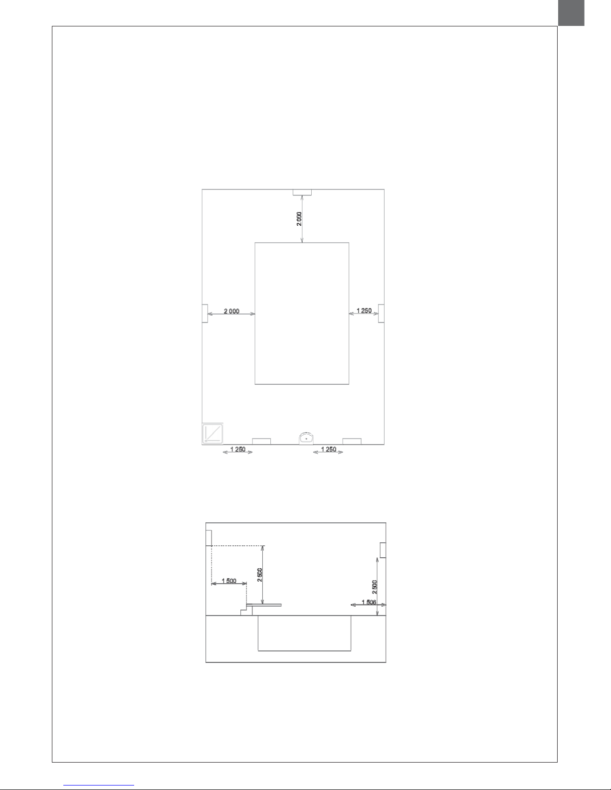
In the distance of 1250 mm or less
from the swimming pool edge, the
bottom edge of the unit must be in
the height of 2500 mm from the
swimming pool surface; if it is
embedded under the floor, then
2500 mm from the floor.
At least 1250 mm (i.e. out of the reach of the hand) from the lateral edge
of the wash basin, in the minimum height of 1200 mm above ground. It
cannot be placed above the wash basin.
In the distance of at least 1500 mm
from the vertical plane around the
jumping platforms, diving boards
and 2500 mm above the highest
surface, where persons are likely to
stay.
If the unit is in the distance of less
or equal to 1250 mm horizontally
from the edge of the swimming
pool, then it must be raised up to
the height of 2500 mm from the
swimming pool surface; if the
pool is embedded under the floor,
then the unit must be raised up to
the height of 2500 mm from the
floor.
It is inevirable to locate the unit outside the zones, where cleaning by jet water is supposed. Connection of the unit to the mains and
its protection must correspond with the applicable standards. Electrical supply of the unit must be carried out by a protective
isolating transformer or it must be protected by a current protective switch with a nominal differential cut-off current not exceeding
30 mA.
SWIMMING POOL
The location must be in compliance with the HD 384.7.702 S1, IEC 60364-7-702 standard.
It is recommended to situate the unit outside zones 0, 1 and 2.
In case the unit is situated into zones 2 or 1, it must be adhered to the HD, IEC standard.
SWIMMING POOL
Swimming pools which are not
cleaned by jet water
in the distance of 1250 to 2000 mm from the swimming pool edge,
the unit must adhere to the standard and in the height
of at least 300 mm from the floor
HD, IEC
Swimming pools which
are not cleaned by jet water
In the distance of 2000 to 3500 mm
from the swimming pool edge, the
unit must adhere to the HD, IEC
standard and a minimum 150 mm
elevation above the ground is
required for sufficient air flow.
Installing the unit on the floor is
prohibited.
At least 1250 mm (i.e. out of the reach of the hand)
from the lateral edge of the shower cabinet. It cannot
be placed above the shower cabinet.
OUTSIDE THE ZONES OUTSIDE THE ZONES
8
WALL-MOUNTED SWIMMING POOL DEHUMIDIFIER - USER´S MANUAL