
© MHG Heating Ltd
2
MHG Heating Ltd Unit 4 Epsom Downs Metro Centre, Waterfield, Tadworth, Surrey KT20 5LR
Telephone 08456 448802 Fax 08456 448803 Email info@mhgheating.co.uk Web www.mhgheating.co.uk
010109
Section Page #
1.0 Appliance Type 3
1.1 ProCon H 3
1.2 ProCon S 3
1.3 ProCon HS 3
1.4 ProCon HS+ 3
1.5 ProCon HM 3
2.0 Installation Regulations and Requirements 4
2.1 Appliance Warranties 5
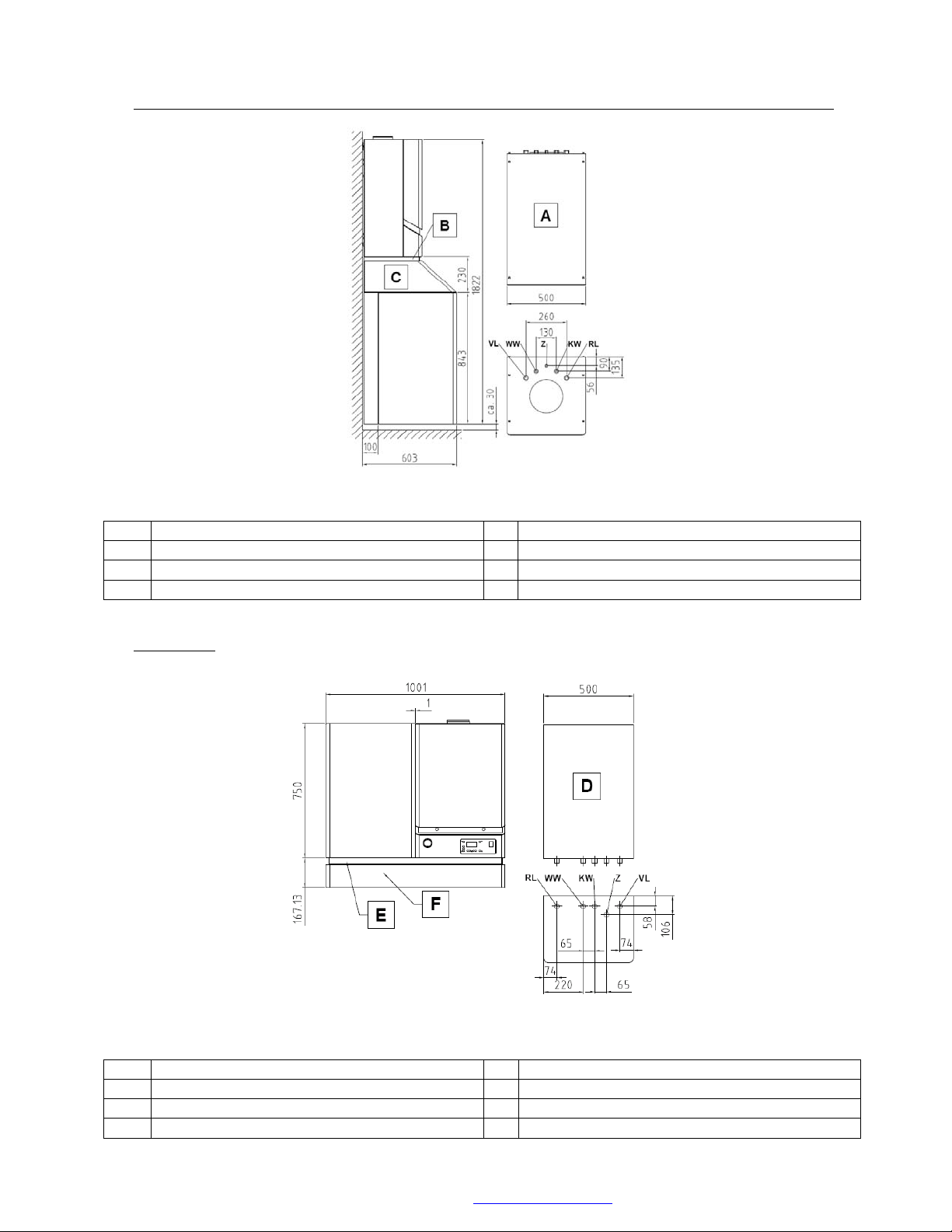
3.0 Dimensions 16, 27 & 47 6
3.1 Dimensions 75 7
3.2 Dimensions 77 8
3.3 Dimensions Kompact (For Information only) 9
3.4 Installation Clearances and Mounting Information 16, 27 & 47 10
3.5 Installation Clearances and Mounting Information 75 12
3.6 Installation Clearances and Mounting Information 77 14
4.0 Delivery and Mobility 16
4.1 Case Removal 16
5.0 Technical Data 17
6.0 Pressure Relief Valve 18
7.0 Electrical Connections 18
8.0 Hydraulic and Wiring Guide Single Unit Option 1 (Heating Only) (Low Resistance Circuit) 20
8.1 Hydraulic and Wiring Guide Single Unit Option 2 (Heating & HWS) (External 3 Way Valve) 21
8.2 Hydraulic and Wiring Guide Single Unit Option 3 (Heating & HWS) (HS) 22
8.3 Hydraulic and Wiring Guide Single Unit Option 4 (Heating Only) (High Resistance Circuit) 23
8.4 Hydraulic and Wiring Guide Single Unit Option 5 (Heating & HWS) (High Resistance Circuit) 24
8.5 Hydraulic and Wiring Guide Single Unit Option 6 (Heating & HWS) (Two Heating Circuits)(HS) 25
8.6 Hydraulic and Wiring Guide Single Unit Option 7(Heating & HWS) (Two Heating Circuits) 26
8.7 Hydraulic and Wiring Guide Single Unit Option 8 (Heating & HWS) (Two Heating Circuits)(Mixing)(HS) 27
8.8 Hydraulic and Wiring Guide Single Unit Option 9 (Heating & HWS) (Two Heating Circuits)(Mixing) 28
8.9 Hydraulic and Wiring Guide Single Unit Option 10 (Heating & HWS) (Two Heating Circuits)(RVA63) 29
8.10 RVA63 Zone Controller Wiring Information 30
8.11 Hydraulic and Wiring Guide Multiple Units Option 11 (Heating & HWS) (RVA47 Cascade Manager ) 31
8.12 RVA47 Cascade Manager Wiring Information (Controller Only) 32
8.13 RVA47 Cascade Manager Housing Wiring Information (Including Space For RVA46 Zone Controller) 33
8.14 Hydraulic and Wiring Guide Multiple Units Option 12 (Heating & HWS) (RVA47 Cascade Manager+RVA63) 34
9.0 BMS Interface Installation and Parameter Alteration 35
10.0 Fluing Options 36
10.1 Single Unit Balanced Flue Wall Termination 36
10.2 Single Unit Balanced Flue Vertical Termination 37
10.3 Single Unit open Flue Wall Termination 37
10.4 Single Unit Open Flue Vertical Termination 38
10.5 Cascaded Open Flue Vertical Termination 38
10.6 Dimensions of Available Flue Components 39
10.7 Balanced Flue Terminal Positions For Boilers below and Above 70kW Net Input 40
11.0 Filling The System 41
11.1 Pressure Vessel 41
12.0 System Water Quality 42
12.1 Care With The Use Of Solder Flux 42
13.0 Appliance Controls 43
13.1 Module Operating Codes 45
14.0 Appliance Fault Codes 46
14.1 Enhanced Appliance Fault Codes 48
15.0 Accessing Boiler Parameters (Control Parameter Default Settings) 49
16.0 RVA47 Cascade Manager General Information 54
16.1 RVA47 Cascade Manager Parameter Setting 54
17.0 Commissioning 61
17.1 Pre-Commissioning Checks. 61
17.2 Combustion System Commissioning 61
17.3 NG/LPG – LPG/NG Conversion Procedure 63
18.0 Routine Inspection and Servicing 64
18.1 Routine Service Inspection 64
18.2 Routine Cleaning and Maintenance 64
19.0 Weather Compensation Slope Graph 65
20.0 Optional System Controls (QAA73, RVA47, RVA 63, RVA46, QAA70, QAA50, QAA10) 66
21.0 Internal Wiring Diagrams 67
21.1 Internal Wiring Diagrams 16, 27 & 47 H , HS & S 67
21.2 Internal Wiring Diagrams 47 H & S 68
21.3 Internal Wiring Diagrams 75 & 77 H 69
21.4 Internal Wiring Diagrams 75 & 77 HM 70
22.0 HM and Cascade Slave Units Equipped with OCI420 Communication Clips (LED Indication) 71
23.0 Exploded Spares Diagrams 16, 27 & 47 72
24.0 Exploded Spares Diagrams 75 78
25.0 Exploded Spares Diagrams 77 80
26.0 Installer / End Users Note 81