
GENERAL DESCRIPTION
E-58H, E-78 & E-88 unit is an electrically powered and
electrically controlled hydraulic mechanism specifically
designed for use with Meyer Snow Plows. The E-88
and E-78 raises and lowers the plow with an integral
8” stroke hydraulic cylinder. The E-88 will also mount
and dismount the Xpress plow system from the vehicle
using a hydraulic Mount/Dismount Cylinder.
In addition to raising and lowering the plow hydraulically,
the E-58H, E-78 & E-88 angles the plow hydraulically,
left and right, via remote hydraulic cylinders.
The Electro Lift® unit consists of a specially designed
high torque 12-volt DC motor which is directly coupled
to a gear-type hydraulic pump. The pump obtains its
supply of hydraulic fluid from an integral reservoir
which totally surrounds the integral hydraulic cylinder
which raises and lowers the plow.
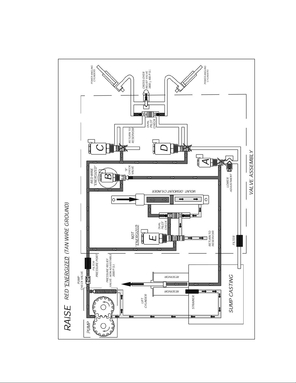
The E-88 includes an integral valve body which
contains five electrically controlled solenoid valve
cartridges. Solenoid valve cartridge “A” which is
energized to allow the plow to lower by gravity.
Solenoid valve cartridge “B” is energized to route the
pressurized hydraulic fluid to the integral hydraulic
cylinder to raise the plow. Solenoid valve cartridge
“C” is energized to route the pressurized hydraulic
fluid to the left remote hydraulic cylinder to angle
the plow to the right. Solenoid valve cartridge “D” is
energized to route the pressurized hydraulic fluid to
the right remote hydraulic cylinder to angle the plow
to the left. Solenoid valve cartridge “E” is energized
to route the pressurized hydraulic fluid to extend the
mount/dismount hydraulic cylinder to remove the plow
from the vehicle. Mounting the plow to the vehicle only
requires energizing the electric motor since the normal
route for the pressurized hydraulic fluid is to retract the
mount hydraulic cylinder.
The E-58H & E-78 includes an integral valve body
which contains three electrically controlled solenoid
valve cartridges. Solenoid valve cartridge “A” which
is energized to allow the plow to lower by gravity.
Solenoid valve cartridge “B” is energized to route the
pressurized hydraulic fluid to the integral hydraulic
cylinder to raise the plow. Solenoid valve cartridge “C”
is energized to route the pressurized hydraulic fluid
to the left remote hydraulic cylinder to angle the plow
to the right. When all cartridge are not energized and
the motor is running the pressurized hydraulic fluid
will flow to the right remote hydraulic cylinder to angle
the plow to the left.
Additional components which control and supply
electrical current to the E-58H, E-78 & E-88 units are
an operator controlled Touchpad (E-58H only), RCM
(Remote Control Module); a solenoid switch to supply
high amperage current to the unit’s motor (motor
solenoid); a PCM (Plow Control Module) (E-78 & E-88
only)and a HCM (Headlight Control Module)(E-78 &
E-88 only). valve cartridge(s); and short heavy gauge
cables to distribute high amperage current directly
from the positive terminal of the vehicle’s battery and
ground the unit directly to the negative terminal of the
vehicle’s battery.
THEORY OF OPERATION
FUNCTIONS
The E-88’s six basic functions performed are:
• Raise snow plow
• Lower snow plow
• Angle snow plow to right
• Angle snow plow to left
• Mount Xpress Snow Plow System
• Dis-mount Xpress Snow Plow System
Refer to Figures 1-1 through 1-6 (pages 6 thru 11) for
electrical and hydraulic flow chart for each function.
Each figure explains which component is actuated
and related in each function.
The E-58H & E-78’s four basic functions performed
are:
• Raise snow plow
• Lower snow plow
• Angle snow plow to right
• Angle snow plow to left
Refer to Figures 1-7 through 1-10 (pages 12 thru 15)
for electrical and hydraulic flow chart for each function.
Each figure explains which component is actuated and
related in each function.
-5-