FIGURE 3 ELEMENT ASSEMBLY
Prior to assembling elements slide a boom-to-element mount
(BE3P)
onto each of the (16) element center
sections
(TIIP).
Assemble each element as shown using the clamps and hardware specified. Refer to the element table
to determine dimensions for each element. Install a black plastic cap (PL2) onto both ends of each element. Assemble
the reflector elements in the same manner. sliding the fiberglass arms approximately 6 inches into the ends
ofthe
center
sections
(TllP). Snug
the
clamps but don’t tighten at this time because the arms will have to be adjusted after installing
the reflector wire.
FIGURE 3B ELEMENT MOUNTING
Mark each element at the center and be sure that the boom-to-element mounts
(BE3P)
are centered on the
elements before tightening hardware. Starting
1”
from the director end of the boom, mount each element using 3”
U-
bolts, saddles, boom-to-element mounts and hardware as shown. Refer to Figures
1
&
3B for element spacing
dimensions.
(At this point go back and complete the guy cable assembly.)
FIGURE 3C REFLECTOR ASSEMBLY
The length of the reflector wire is very critical.
It must be the correct length to operate correctly. Take the wire
(WO4P)
and uncoil it making sure that there are no kinks; secure it to a nail. Pull the wire until it stretches an inch or
so. The easy way to get the correct length for the reflector loop is as follows:
I. Drive 2 nails in a board or fence l/2 the length of the loop apart --which is 228”
(5.790m)
between
them.
2. Stretch the wire around the nails by hand as tightly as possible and splice ends together. Solder the splice. Remove
one nail and remove the loop. Cut any excess wire off.
3.
Loosely assemble the machine screws (S2
l),
flatwashers
(N26),
lockwashers
(N12),
and hex nuts
(NO6)
onto the lugs of the fiberglass arms, adjusting the length as shown.
4. Tighten 3 of the 4 clamps that hold the fiberglass rods.
5.
Install the wire as shown.
6. Tighten the wire by pulling the fourth fiberglass rod until the wire is the same tightness as it was
around the nails. The wire loop is now the correct length. Note the total length of the loop is critical, and also is the
length of each side. REMEMBER: Reflector dimensions are only preliminary. Change to get equal sides of 9’6”
Fiberglass length is not critical, however the equal wire length of 9’ 6” is very critical.
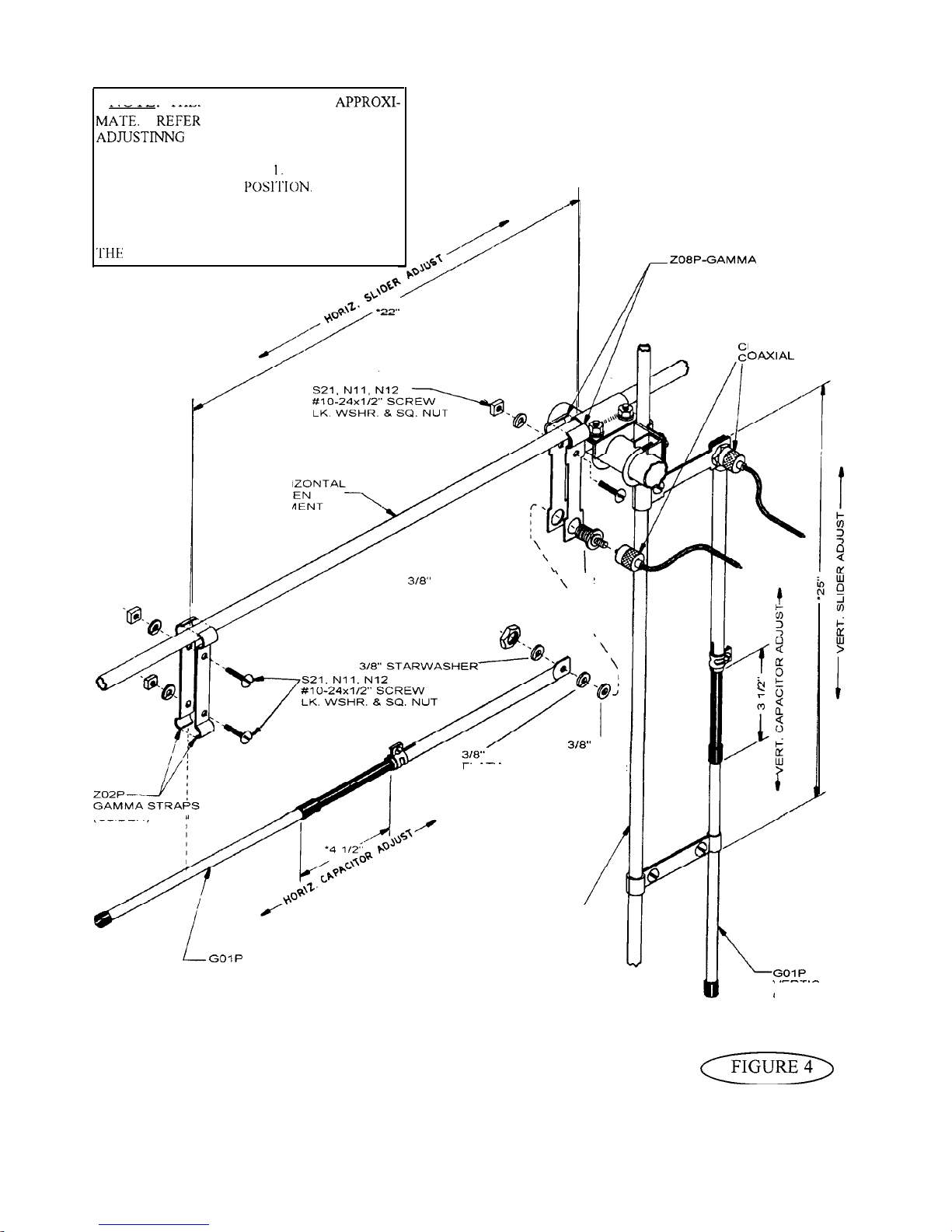
FIGURE 4 GAMMA MATCH MOUNTING
Mount the (2) gamma matches (GO
1P)
to the horizontal and vertical driven elements, using the gamma straps
(ZO2P,
ZOSP)
and attaching hardware as shown. Attach your 52 ohm coaxial cables to the connectors (S42) and dress
along boom and down the mast.
ADJUSTING STANDING WAVE RATIO
Refer to Figure 4. The dimensions given are approximate and should be used as a starting point. The following
instructions cover the adjustment of one gamma match. To adjust the second gamma match, simply repeat this
procedure.
The gamma match has 2 adjustments. First is the capacitor adjust and the second is the slider adjust. Connect
a
S.
W.
R bridge to the coax between your transmitter and the antenna and check the S.W.R. If adjustment is required
loosen the clamp on the gamma match and the screws holding the slider (Gamma Straps
ZO2P).
Next move the capacitor
adjustment first in one direction then the other until a minimum S.W.R. reading is obtained. If S.W.R. is not yet
satisfactory, move the slider out 2” away from the boom.
Ifthe
reading has gone up, move the slider back to the original
position and then 2” toward the boom. Now readjust the capacitor for minimum S.W.R. you should now be able to
determine which direction to move the slider. Repeat the above procedure moving the slider in smaller increments until
a satisfactory S.W.R. reading is obtained. Tighten all hardware. Disconnect the S.W.R. bridge and reconnect your
coaxial cable.
3
LASER500