
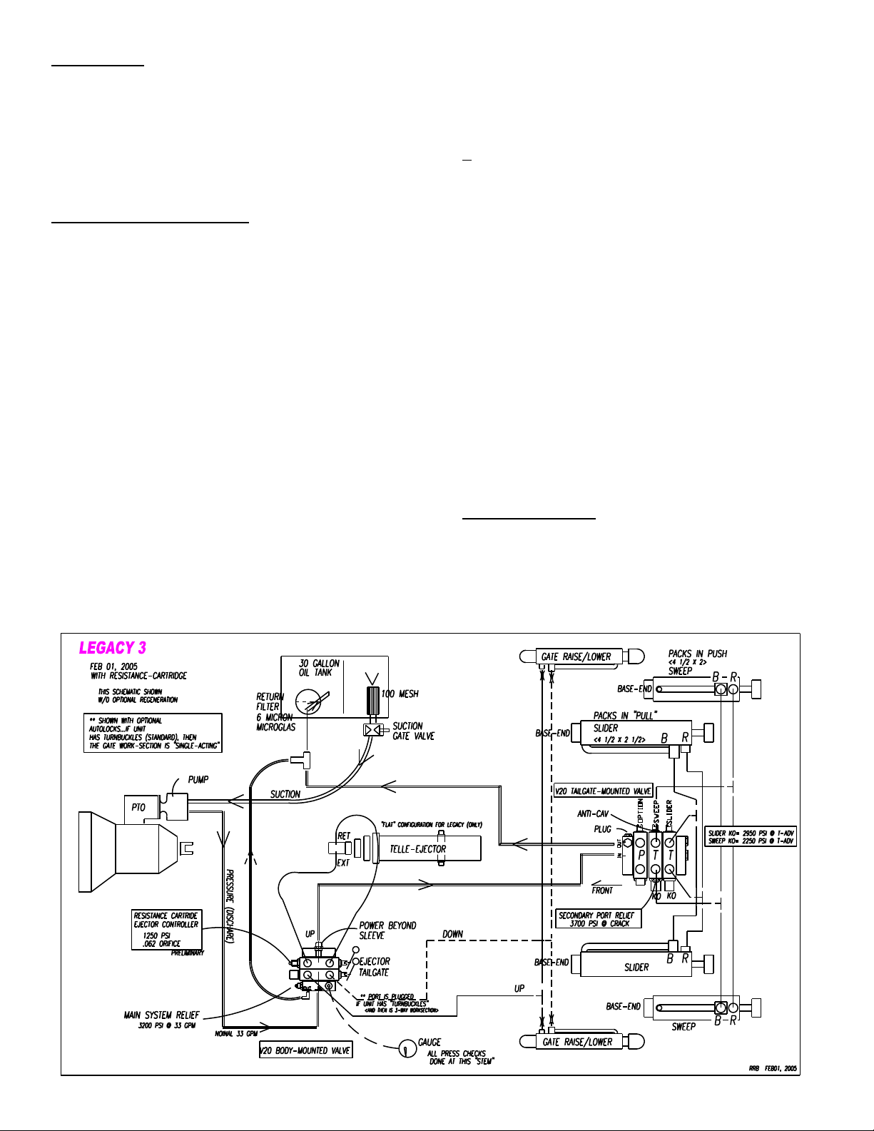
When “on the route” and collecting garbage…the ejector’s
spool will always be in the centered-neutral position and
therefore the workports are “blocked”.
The resistance-cartridge
senses
both (a) workport pressure
(ejector-telly “extend” pressure) and (b) hopper blades packing
pressure. The worksection’s casting is internally passaged to
allow this to occur. Typically,
early in the day
, the hopper
blade’s pressures are relatively low because you are working
against the
smallest stage
of the telescopic cylinder. Therefore
hopper blade pressures are “too low” to trip open the
Resistance-Cartridge. Now the “workport” pressure “mode”
dominates…the Resistance-Cartridge will open and release to
tank a small amount of oil to tank…the ejector/telly will “move”
towards the cab
automatically
.
The telly/ejector
automatically
“moves/drifts” towards cab until
the 2nd (or 3rd) “bigger” stages of tellescopic “come into-play”.
Now
the hopper blade’s pressures are
routinely higher
and the
resistance-cartridge will trip open (releasing the telly/ejector)
when the blade pressures reach 1500 psi. The Parker
resistance cartridge has a “ratio” built-into the scheme…The
ratio Loadmaster employs is .85. <1250 setting divided by .85
equals 1500 psi> When the hopper blade pressure sensing
“mode” is dominating….the trip point is still 1250 PSI, but it
takes 1500psi “blades” pressure, or above, to trip open the
Resistance-Cartridge and allow the telly extend oil to meter
across the orifce to tank.
The final section of the body-mounted valve is the
outlet
cover.
The
power beyond sleeve
is mounted into the
outlet cover
of the body-mounted valve. The
PB sleeve
allows for feeding of pressurized fluid
downstream…through the
roof tubing
and to the
tailgate-mounted valve.
The
tailgate-mounted valve
controls the blade actions and
most of the optional equipment, such as a roof mounted
“reever” or the “kick bar”. It is a GRESEN V20 valve that
usually has 3 or more working sections and hangs from the
tailgate’s roof. (The sections with the “spools” are called “
work
sections”.)
The first section of the tailgate-mounted valve is the
inlet
cover.
This inlet receives the flow from the roof mounted
pressure tube. It also is the origin of the
return line
since the
cover on the other side is a plugged
turnaround outlet cover.
The next “upstream” sections are the option
work
sections
such as the “2-10 reever” and the “kickbar”. Option work
sections have “spools” which are spring centered and are
manually shifted in or out to direct flow to a desired function.
Typically there maybe “pressure-limiting port mounted reliefs”
or speed- controlling workport orifices used for options on the
LEGACY3 (see chart near end of this “how it works” writeup.
These GRESEN V20 option sections must have an internally
casted flow path that is known as “parallel” construction. (see
parts manual for correctly ordering any valve “sections”).
The hopper-blade section closest to the pump is the
sweep
blade work section
, and it always comes next, (which is
“upstream” of the slider blade work section). This spooled
section has a
knockout positioner.
This knockout postioner is a
device that is controlled by one pressure “’trip” setting for
both directions of spool shift. When the spool is
manually shifted, the KO mechanically holds the spool
shifted until the next time the pressure
rises
to its
setting, whereupon it releases the spool and the spool
knocks-out to centered-neutral position. This pressure
rise typically occurs when the cylinders “bottom-out”.
This sweep section has a port relief mounted to the
sweep cylinders
base-side, known as the
secondary port
relief.
This secondary port relief can allow the sweep
blade to “unwrap” a little if the pressure induced should
exceed “critical” structural loads. This protects the
structure from excessively high loads that could
otherwise cause structural damage or componentry
damage (never shim or deviate from Legacy3
specification of 3700 psi
crack
).
Opposite the
secondary port relief
(at the opposite work
port) is an
anticavitation check
that allows some
“makeup oil” to go into sweep’s rod-side during this
slight blade unwrap. Whenever the secondary port relief
is actually relieving, this anticavitation check precludes
powerful suction effects that could extrude the sweep
cylinder’s piston seals.
The last working section (the one with the
throttle
advance switch
trigger) is the
slider blade section.
This
slider blade section has no port mounted devices. The
slider section also has a
knockout positioner
directly
coupled to one end of its spool.
The two hopper blade work sections have an internal flow path
known as “tandem center”. When a V20
tandem center
spool
section is shifted to do a function, it blocks the valve’s power
core on the
upstream side.
This characteristic is important in
terms of proper blade
sequence.
Since the start of the first half
and second half of the semi-automatic blade cycle is the
“simultaneous” shifting of
both
blade spools, the
sweep blade
will always move first since its spool is
tandem center
and it is
upstream
(closest to pump)
of the slide blade spool.
The last section of the tailgate-mounted valve is the
outlet
cover.
In the case of the LEGACY, this cover’s outlet port is
actually plugged but this section is casted to be a
turnaround
cover. The actual return hose is then connected to an outlet
port of the
inlet cover
.
Leaving the tailgate-mounted valve, the oil flows through the
roof return tube
to the
return filter.
The “tank-top style”return filter is a 5-micron (nominal) with a
integral bypass valve. It is has a high-preformance Microglas
element and a
condition
indicator
affixed to the head casting.
The
hydraulic reservoir
if fully dressed with a
level gauge with
thermometer, magnet type drain plug, filler/media breather,
and
cleanout cover.
The suction side of the tank has a
submerged 100 mesh replaceable
suction filter.
It has a 3-PSI
bypass valve built into it. The tank has a baffle that separates
the suction side from the return side to promote settling of dirt
and entrained air.
[sec01-pg02]