
1
製品を安全にご使用いただくために
GENERAL SAFETY SUMMARY
下記に示す使用上の警告・注意事項は、使用者の身体・生命に対する危険および製品の損傷・劣化などを避ける
ためのものです。必ず下記の警告・注意事項を守ってご使用ください。
Review the following safety precautions to avoid operator’s injury and loss of life and prevent damage
and deterioration to this instrument. To avoid potential hazards, use this product as specified.
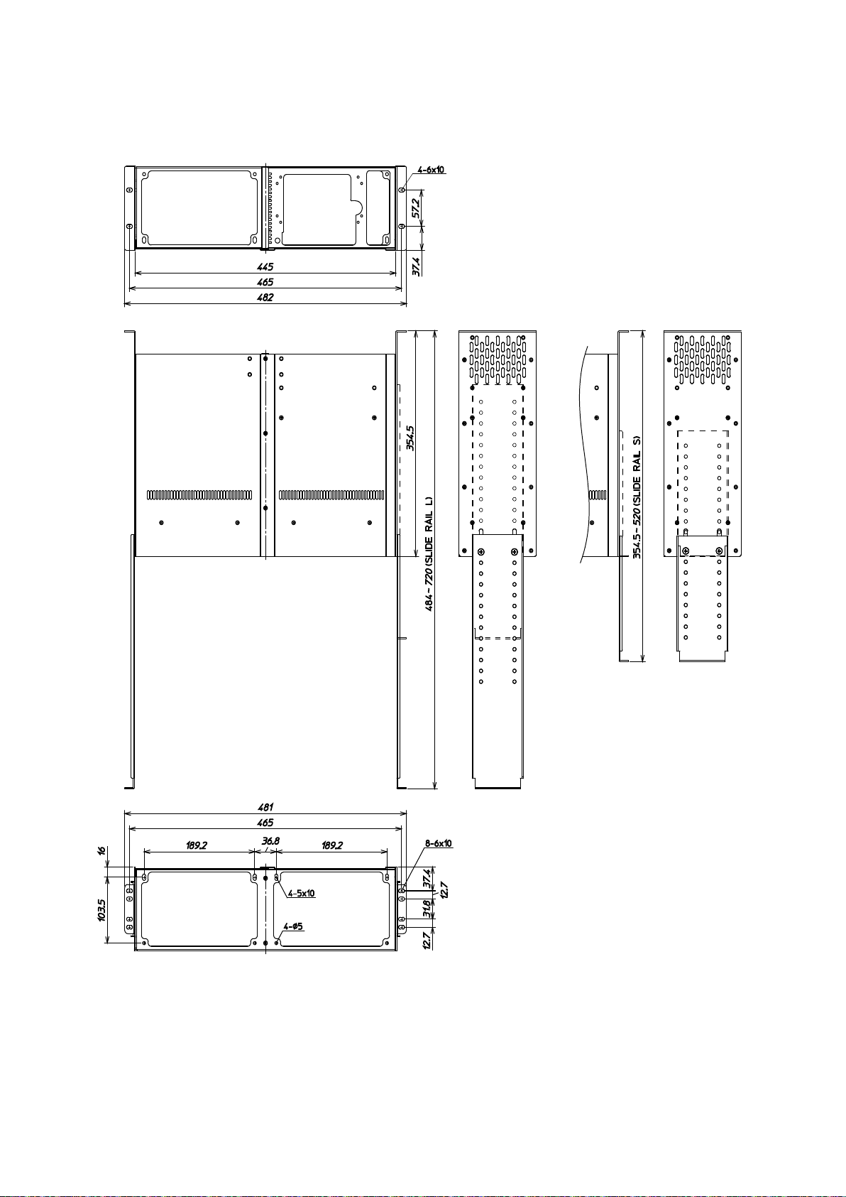
■使用ねじに関する警告事項 Warning Concerning the Screws
使用ねじは、組み立て図に従って指定の種類および長さのものを使用してください。指定以外のねじを
使用すると製品本体に影響を及ぼし、火災、感電、故障、事故などの原因となります。
Use screws of the specified type and length according to the assembly diagrams. Using other
screws may adversely affect the unit and can cause fire, electric shock, malfunction,
accidents, and so on.
■組み立てに関する注意事項 Caution Concerning Assembly
組み立ての際、板金のエッジ等でけがをするおそれがありますので、十分注意して組み立ててくださ
い。
Exercise caution during assembly to prevent injury, such as from the edges of the metal
plate.
■ねじ締め付けトルクに関する注意事項
Caution Concerning the Screw Tightening Torque
ねじは頭の形に関わらず、下表の締め付けトルクに従って締めてください。締めが弱いと緩みを生じま
す。また、締め過ぎると破断やのびを生じ、いずれも故障の原因となります。
Fasten the screws according to the tightening torque of Table regardless of the shape of the
screw head. If the tightening torque is too low, the screws may come loose. If it is too tight,
it may lead to breaks or elongation and can cause a malfunction.
締め付けトルク Tightening Torque (cN・m)