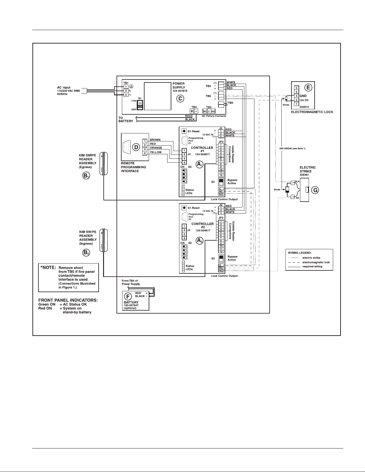
RAC Model 3.5 with KIM Swipe Reader
2
1. Shut off the electrical power to the AC line to be connected to the control panel.
2. Set AC input switch S1 on the Power Supply (C) for the electrical voltage used in your country. North
American applications require 115VAC, 60Hz; European applications require 230VAC, 50Hz. Insert
appropriate fuse in F1 fuse clips:for North America, use 600mA, 5mm fuse, fast blow. For Europe,
use 315mA, 5mm fuse, fast blow.
3. Install the control panel in the desired location, using the Installation Kit.
4. Install the KIM Swipe Reader Assembly (B) in the desired location. Refer to appropriate fitting
instructions for chrome reader or black reader, in Section 3.3 on page 3. A Dual Reader installa-
tion has one Egress (exit) reader (B1) and one Ingress (entry) reader (B2).
5. Connect the AC line to terminal TB1 on the Power Supply (C) (see Table 5 on page 6).
6. Connect the shielded cable from the KIM Swipe Reader Assembly (B) to terminal block JP3 on the
Controller (A). For connections, see Table 1. For Dual Reader installations, connect the Egress
reader (B1) to Controller #1 (A1) and the Ingress reader (B2) to Controller #2 (A2).
7. If the Control Panel is not being interfaced to a fire alarm panel, go to step 8. Remove the jumper
from terminal TB5 on the Power Supply (C) and complete the fire panel installation.
8. If an additional Remote Programming Interface (D) is not being installed, go to step 9. Run a twisted
2 pair stranded conductor, 22 AWG shielded cable from the Remote Programming Interface (D) to
terminal block J4 on the Controller (A). For connections, see Table 2. For Dual Reader installations,
connect the Remote Programming Interface (RPI) (D) to Controller #1 (A1).
9. Install the 2 conductor 18 AWG shielded cable from the control panel to the location of the electric
strike (G) or electromagnetic lock (E).
10.
Connect the cable shield to the chassis ground connection at terminal TB6 on the Power Supply (C).
11. Install the diode across the terminals of the electromagnetic lock (E) or, using the butt connectors
provided in the Installation Kit, install the diode across the two wires of the electric strike (G). Do not
reverse diode polarity.
Note: This step is not necessary if installing an HES 7000 Series electric strike
or Rutherford Controls 83xx series electromagnetic lock
12. Mount the electric strike (G) or electromagnetic lock (E) in the desired location and connect as per
manufacturers’ instructions.
13. Run a 2 conductor, 22 AWG, stranded cable from the tamper switch to premises alarm system. Using
quick disconnects on tamper switch terminals, connect tamper in series with instant (24hr) zone to
create an audible alarm or trouble signal upon opening the access control panel.
14. Double-check all connections, including the cable shields.
Note: The AC failure contacts, TB3 on the Power Supply (C), are dry relay out-
puts that will change state when the AC power is shut off. If required, this
can be connected to a separate alarm panel. Terminals available are
Common, Normally Open, and Normally Closed (30VDC @ 1Amp max).
15. Configure DIP switches S2 on the Controller (A) to the desired relay activation time. See Table 6 and
Figure 3. Do not use CFG #16 because this setting is used only for reinstalling the controller.
For Dual Reader Installations, set the DIP switches on Controller #1 (A1) and Controller #2
(A2).
16. Turn on the AC power. The green LED on the front of the control panel will light. LEDs D26 and D27
will start flashing alternately. See Table 3 for LED descriptions.
17. Position bypass switch S3 on the Controller (A) down for normal mode. When power is supplied to
the unit, the indicator light beside the switch should be OFF for normal mode and ON for bypass
mode.
Note: On the 8-relay configuration, there is one bypass switch per relay on the
expansion board. Set each switch according to whether you wish to
bypass the associated relay.