
4
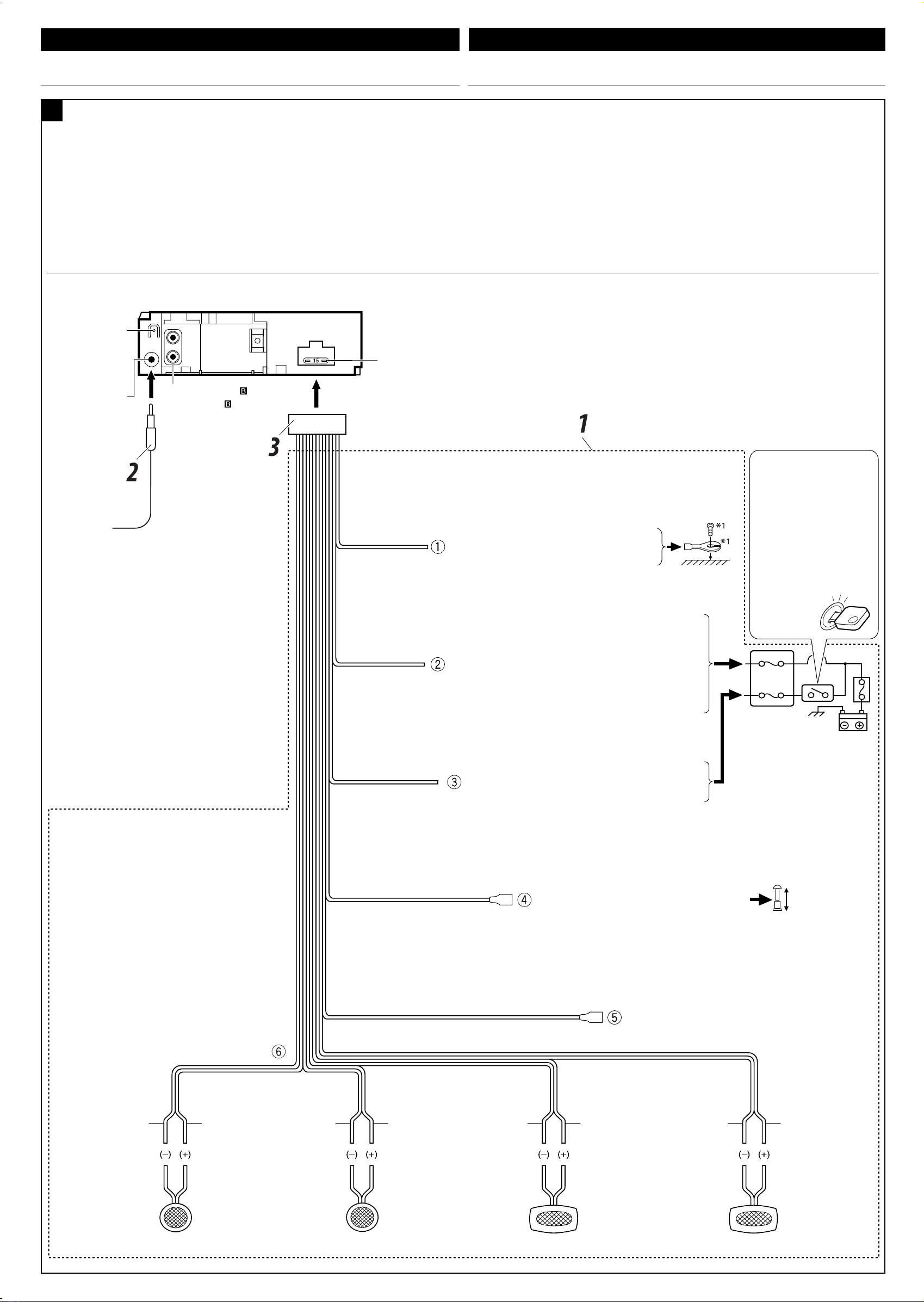
Connecting the external amplifier or subwoofer / µËÕ·Õ¡ª≈‘ø“¬‡ÕÕ√ÏÀ√◊Õ´—∫«Ÿø‡øÕ√ϥȓππÕ
You can connect an amplifier to upgrade your car stereo system.
• Connect the remote lead (blue with white stripe) to the remote lead of the other equipment so that it
can be controlled through this unit.
•Disconnect the speakers from this unit, connect them to the amplifier. Leave the speaker
leads of this unit unused.
*3Firmly attach the ground wire to the metallic body or to the chassis of the car—to the place uncoated with
paint (if coated with paint, remove the paint before attaching the wire). Failure to do so may cause damage
to the unit.
*4Signal cord (not supplied for this unit)
§ÿ≥“¡“√∂µËÕ°—∫·Õ¡æ≈‘ø“¬‡ÕÕ√Ï ‡æ◊ËÕ‡æ‘Ë¡§ÿ≥ ¿“懒¬ß„ÀȰ—∫√–∫∫‡µÕ√‘‚Õ¢Õß√∂¬πµÏ
•µËÕ“¬µ–°—Ë«√–¬–‰°≈ (’πÈ”‡ß‘π≈“¬¢“«) ‡¢È“°—∫“¬µ–°—Ë«√–¬–‰°≈¢ÕßÕÿª°√≥ÏÕ◊Ëπ Ê ‡æ◊ËÕ®–“¡“√∂§«∫§ÿ¡‚¥¬™ÿ¥ª√–
°Õ∫π’ȉ¥È
•∂Õ¥≈”‚æßÕÕ°®“°™ÿ¥ª√–°Õ∫π’È ·≈È«µËÕ‡¢È“°—∫‡§√◊ËÕߢ¬“¬ ∑‘Èß“¬µ–°—Ë«≈”‚æß¢Õß™ÿ¥ª√–°Õ∫π’ȉ«È
*3
µËÕ≈«¥
“¬¥‘π„ÀÈ·πËπ‡¢È“°—∫µ—«∂—߇À≈Á° À√◊Õµ—«∂—ß√∂
—
µ√ß
Ë«π ∑’ˉ¡Ë¡’
’‡§≈◊Õ∫ (À“°¡’
’‡§≈◊Õ∫Õ¬ŸË „ÀÈ¢Ÿ¥
’ÕÕ°°ËÕπ
°ËÕπµËÕ≈«¥
“¬¥‘π) À“°‰¡ËªØ‘∫—µ‘µ“¡§”·π–π”π’È ‡§√◊ËÕßÕ“®™”√ÿ¥À√◊Õ‡
’¬À“¬‰¥
*4
“¬‡§‡∫‘≈—≠≠“≥ (‰¡Ë‰¥È„ÀÈ¡“°—∫™ÿ¥ª√–°Õ∫π’È)
B
Rear speakers
≈”‚æßÀ≈—ß
Remote lead
“¬µ–°—Ë«•–¬–‰°•
Remote lead (Blue with white stripe)
“¬µ–°—Ë«•–¬–‰°• (’πÈ”‡ß‘π≈“¬¢“«)
To the remote lead of other equipment or automatic antenna if any
µËÕ“¬°—∫Õÿª°√≥ÏÕ◊ËπÀ√◊Õ‡“Õ“°“»Õ—µ‚π¡—µ‘∂È“¡’
Y-connector (not supplied for this unit)
¢ÈÕµËÕ√Ÿªµ—« Y(‰¡Ë‰¥È„ÀÈ¡“°—∫™ÿ¥ª√–°Õ∫π’È)
Front speakers
≈”‚æßÀπÈ“
Subwoofer
´—∫«Ÿø‡øÕ√Ï
Set “L/O MODE” to “REAR” (See page 11 of the INSTRUCTIONS.)
µ—Èß§Ë“ “L/O MODE” ‡ªÁπ “REAR” (¥ŸÀπÈ“ 11 §”·π–π”)
You can also connect a subwoofer to the REAR LINE OUT terminals.
∑Ë“π¬—ß“¡“√∂µËÕ´—∫«Ÿø‡øÕ√χ¢È“°—∫™ËÕßµËÕ—≠≠“≥ REAR LINE OUT ‰¥È
JVC Amplifier
‡§√◊ËÕߢ¬“¬‡’¬ß JVC
You can connect a power amplifier for rear speakers.
∑Ë“π“¡“√∂µËÕ‡§√◊ËÕߢ¬“¬‡’¬ß‡ªÁπ≈”‚æßÀ≈—߉¥È
TROUBLESHOOTING
•The fuse blows.
*Are the red and black leads connected correctly?
•Power cannot be turned on.
*Is the yellow lead connected?
•No sound from the speakers.
*Is the speaker output lead short-circuited?
•Sound is distorted.
*Is the speaker output lead grounded?
*Are the “–” terminals of L and R speakers grounded in common?
•Noise interfere with sounds.
*Is the rear ground terminal connected to the car’s chassis using shorter and thicker cords?
•This unit becomes hot.
*Is the speaker output lead grounded?
*Are the “–” terminals of L and R speakers grounded in common?
•This unit does not work at all.
*Have you reset your unit?
Set “L/O MODE” to “WOOFER” (See page 11 of the INSTRUCTIONS.)
µ—Èß§Ë“ “L/O MODE” ‡ªÁπ “WOOFER” (¥ŸÀπÈ“ 11 §”·π–π”)
JVC Amplifier
‡§√◊ËÕߢ¬“¬‡’¬ß JVC
°“√µ√«®Õ∫ª—≠À“¢—¥¢ÈÕß
•ø‘«Ï¢“¥
*¡’°“√‡™◊ËÕ¡ “¬µ–°—Ë«’¥”·≈–’·¥ßլ˓ß∂Ÿ°µÈÕßÀ√◊Õ‰¡Ë
•‰¡Ë“¡“√∂‡ª‘¥‡§√◊ËÕ߉¥È
*¡’°“√‡™◊ËÕ¡“¬µ–°—Ë«’‡À≈◊ÕßÀ√◊Õ‰¡Ë
•‰¡Ë¡’‡’¬ßÕÕ°®“°≈”‚æß
*“¬µ–°—˫˫π∑’ËÕÕ°∑“ß≈”‚æß‡°‘¥‰øøÈ“≈—¥«ß®√À√◊Õ‰¡Ë
•‡’¬ß‡æ’Ȭπ
*“¬µ–°—˫˫π∑’ËÕÕ°∑“ß≈”‚æßµËÕ≈ߥ‘πÀ√◊Õ‰¡Ë
*“¬¢—È«≈∫ “–” ¢Õß≈”‚æß¥È“π´È“¬·≈–¢«“µËÕ≈ߥ‘πµ“¡ª°µ‘À√◊Õ‰¡Ë
•‡’¬ß√∫°«π
*¡’°“√„™È“¬—ÈπÊ À√◊ÕÀπ“Ê µËÕ®“°‡§√◊ËÕß«π∑’˵‘¥µ—Èß ‰«È∫πæ◊Èπ¥È“πÀ≈—ß°—∫µ—«∂—ß√∂¬πµÏÀ√◊Õ‰¡Ë
•™ÿ¥ª√–°Õ∫√ÈÕπ¢÷Èπ
*“¬µ–°—˫˫π∑’ËÕÕ°∑“ß≈”‚æßµËÕ≈ߥ‘πÀ√◊Õ‰¡Ë
*“¬¢—È«≈∫ “–” ¢Õß≈”‚æß¥È“π´È“¬·≈–¢«“µËÕ≈ߥ‘πµ“¡ª°µ‘À√◊Õ‰¡Ë
•‡§√◊ËÕß√—∫π’È∑”ß“π‰¡
*∑Ë“π‰¥Èµ—È߇§√◊ËÕß„À¡Ë·≈È«À√◊Õ¬—ß
KD-G326&325-006A.indd 4KD-G326&325-006A.indd 4 20/10/05 3:03:26 PM20/10/05 3:03:26 PM