JDV8035
4
INSTALLATION INSTRUCTIONS
Before You Begin
1. Disconnect battery negative terminal.
2. Remove transport screws.
Important Notes
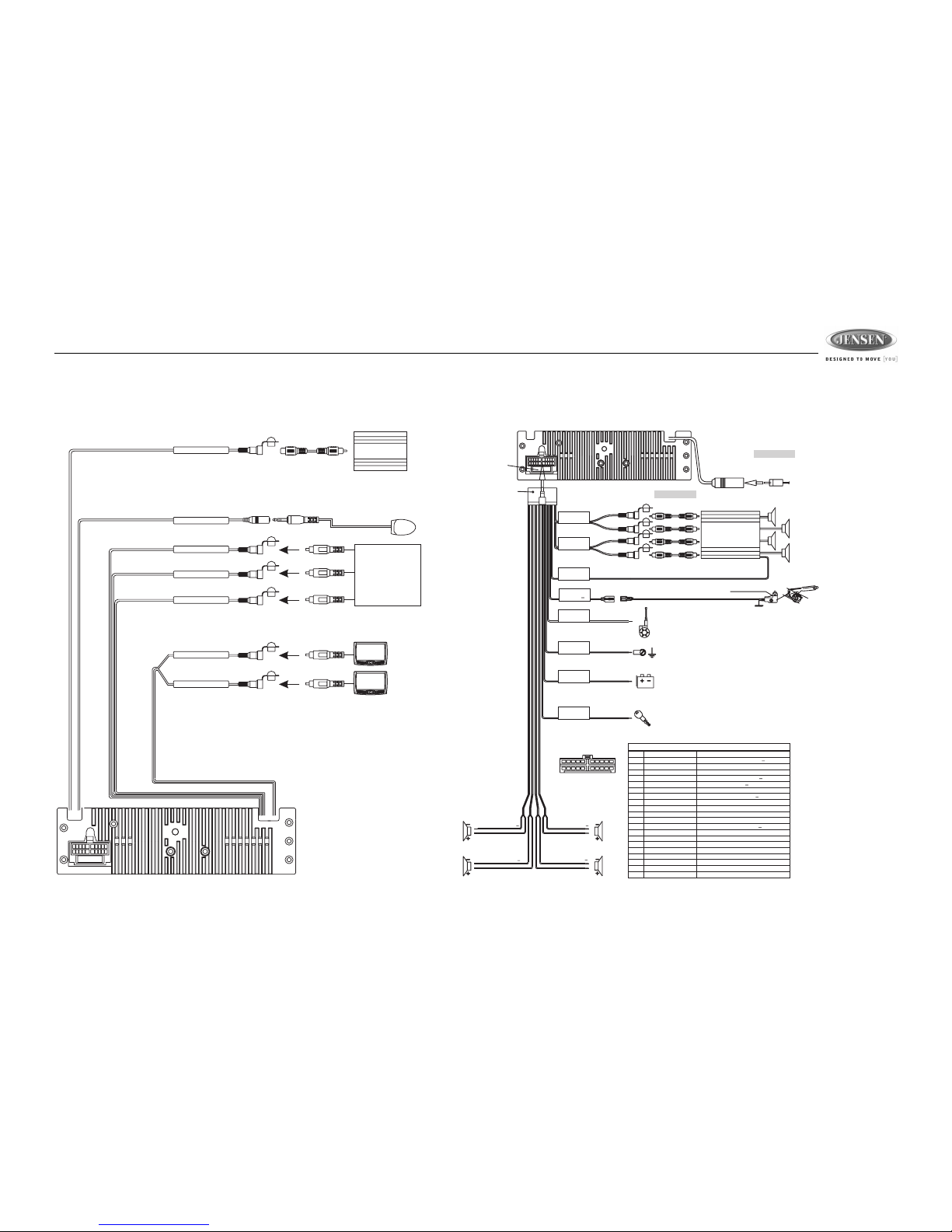
• Before final installation, test the wiring
connections to make sure the unit is
connected properly and the system works.
• Use only the parts included with the unit to
ensure proper installation. The use of
unauthorized parts can cause malfunctions.
• Consult with your nearest dealer if
installation requires the drilling of holes or
other modifications to your vehicle.
• Install the unit where it does not interfere
with driving and cannot injure passengers if
there is a sudden or emergency stop.
• If the installation angle exceeds 30º from
horizontal, the unit might not give optimum
performance.
• Avoid installing the unit where it will be
subject to high temperatures from direct
sunlight, hot air, or from a heater, or where
it would be subject to excessive dust, dirt or
vibration.
DIN Front Mount (Method A)
1. Slide the mounting sleeve off of the chassis
if it has not already been removed. If it is
locked into position, use the removal keys
(supplied) to disengage it. The removal
keys are depicted in “Removing the Unit”.
2. Check the dashboard opening size by slid-
ing the mounting sleeve into it. If the open-
ing is not large enough, carefully cut or file
as necessary until the sleeve easily slides
into the opening. Do not force the sleeve
into the opening or cause it to bend or bow.
Check that there will be sufficient space
behind the dashboard for the radio chassis.
3. Locate the series of bend tabs along the
top, bottom and sides of the mounting
sleeve. With the sleeve fully inserted into
the dashboard opening, bend as many of
the tabs outward as necessary to firmly
secure the sleeve to the dashboard.
4. Place the radio in front of the dashboard
opening so the wiring can be brought
through the mounting sleeve.
5. Follow the wiring diagram carefully and
make certain all connections are secure
and insulated with crimp connectors or
electrical tape to ensure proper operation.
6. After completing the wiring connections,
turn the unit on to confirm operation (vessel
accessory switch must be on). If the unit
does not operate, recheck all wiring until
the problem is corrected. Once proper
operation is achieved, turn the accessory
switch off and proceed with final mounting
of the chassis.
7. Carefully slide the radio into the mounting
sleeve making sure it is right-side-up until it
is fully seated and the spring clips lock it
into place.
8. Attach one end of the perforated support
strap (supplied) to the screw stud on the
rear of the chassis using the hex nut and
spring washer provided. Fasten the other
end of the perforated strap to a secure part
of the dashboard either above or below the
radio using the screw and plain washer pro-
182
53
Dashboard
Bend Tabs
Screw Stud