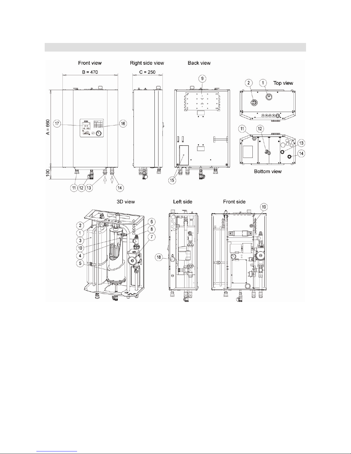
5. Piping Installation
Complete installation form (section 11) after
installation. Install piping in accordance with
current regulations and ensure that pipes
cannot break.
- The unit should be installed vertically in a
designated dry warm room.
- Check whether the expansion tank has
sufficient volume for your site.
- Ensure that the pre-pressure of the
expansion tank is at least 0.5 bar.
- To fill and empty the system easily, fit the
connections of the electric boiler and heating
system with shutoff valves.
- Make sure to provide boiler drainage e.g.
through the safety relief valves. The drain
lines should be laid from the safety relief
valves to the floor drain (drain pit).
- Leave at least 0.8 m free space in front of
the unit according to safety regulations.
- When filling the heating system leave the
safety valve open until some water comes out
of the discharge pipe. Close the safety valve
and continue filling the system until no air
comes out and the pressure gauge is at 1 bar.
- Heating system must be deaerated a couple
of times so that there is no extra air in the
system.
- Heating system circulation between pump
and boiler cannot be closed. When required,
heating circle must be equipped with a valve
(BY-PASS valve), which ensures the
circulation between pump and boiler.
6. Electric Wiring
Only an authorized and qualified wiring
company can install electric wiring.
Unit’s internal connections have been factory
installed and tested. These connections cannot
be modified. The unit should be connected to
the power mains on site in accordance with
current regulations and the connection
diagram (see section 7). A power cable and
fuses are determined according to the power
rating of the unit.
The maximum power of PW boiler (see
picture 1, maximum power control) can be
selected from a number of options, and the
boiler is suitable only for 1~ wiring. To
achieve maximum efficiency of the main
fuses, the electronic system is fitted with
automatic current limitation. Current
transformers must be installed at the central
board of the house for measuring total current
on site.
Power lines should be laid through leads in
the base plate to the connection point behind
the front plate.
6.1. To Be Considered During Installation
The current transformers connected to the
mains must be closed when not connected to
the unit.
Check load balance applied to the main fuses
of the house while giving consideration to:
- ventilation (incoming air heating)
- garage / warehouse electric heaters
- car socket groups
- refrigerating system groups
- dish / clothes washing machine groups etc.