
7
INSTALLER
USERMAINTENANCE TECHNICIAN
TECHNICAL DATA
1.4 HYDRAULIC CONNECTION.
Attention: before making the appliance connections, clean the
heating system thoroughly (pipes, radiators, etc.) with special
pickling or de-scaling products to remove any deposits that could
compromise the correct operation of the device.
A chemical treatment of the thermal system water is required,
in compliance with the technical standards in force, in order to
protect the system and the appliance from deposits (e.g., lime
scale), slurry or other hazardous deposits.
e hydraulic connections must be made in a rational manner
using the values as per Fig. 2.
IMPORTANT: remove all the protection caps from the system
ow and return pipes before making the hydraulic connections.
e connections can be made directly using the female couplings
on the distribution manifold or by inserting system cut-o cocks
(optional). ese cocks are particularly useful for maintenance
as they allow you to drain the distribution manifold separately
without having to empty the entire system.
N.B.: e manufacturer does not supply the G1” cocks to be
installed in the low temperature zone.
Check that the expansion vessel in the boiler allows for the increase
in volume of the water resulting from its central heating without
opening the safety valve. If this is not the case, an expansion vessel
with appropriately dimensioned capacity must be installed on
the system.
e DIM ERP is set up for the insertion of the automatic “jolly”
vent valve to be mounted on the manifold. is is recommended
for better air venting inside the system.
If two DIM ERP devices are installed in parallel, two manual
valves must be tted in order to ensure the correct balance of the
hydraulic circuit.
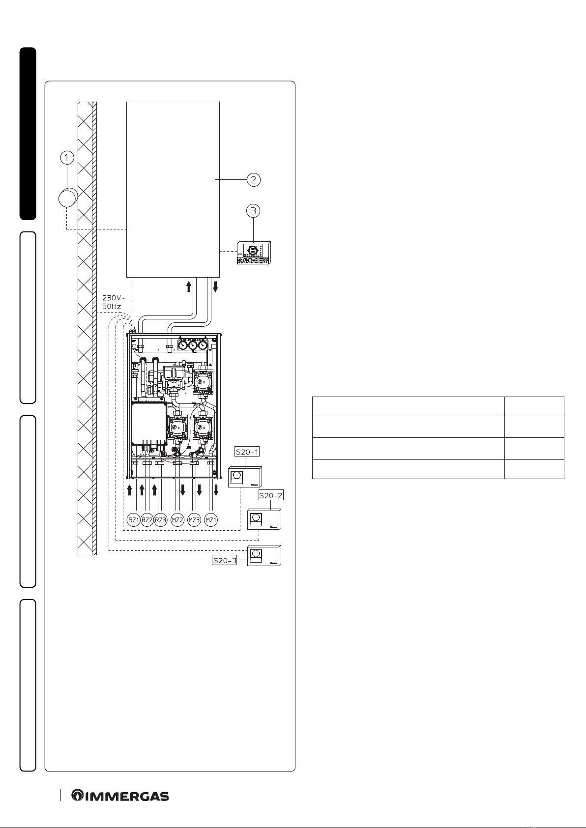
1.5 ELECTRICAL CONNECTION.
e appliance has an IPX5D protection degree; electrical safety of
the appliance is achieved only when it is connected properly to an
ecient earthing system, as specied by current safety standards.
Attention: Immergas S.p.A. declines any responsibility for dam-
age or physical injury caused by failure to connect the boiler to
an ecient earth system or failure to comply with the reference
standards.
Moreover, ensure that the electrical installation corresponds to
the maximum absorbed power specications as shown on the
recessed unit data plate. e distribution manifold is supplied
complete with an “X” type power cable without plug. e power
supply cable must be connected to a 230V ±10% / 50Hz mains
supply respecting L-N polarity and earth connection; this
network must also have a multi-pole circuit breaker with class
III over-voltage category.
To protect from possible dispersions of DC voltage, it is necessary
to provide a type A dierential safety device.
If the power supply cable is damaged, it must be replaced by a
special cable or assembly, which are only available from the ma-
nufacturer or its Aer-sales Service. It is recommended to contact
a qualied company (e.g. the Immergas Authorised Aer-Sales
Technical Assistance Service) for replacement to avoid a hazard.
For the main power supply to the appliance, never use adapters,
multiple sockets or extension leads.
Important: it is mandatory to prepare two electrical connection
lines in order to separate the power supply of each distribution
manifold from all other low-voltage connections, according to the
standards in force regarding electrical systems. ese lines must
arrive inside the recessed frame via relevant sheaths or ducts,
passing through the fairlead and the sheath-holder supplied and
located on the upper side of the device.
• Connecting the boiler P.C.B. is connection (low-voltage)
ensures the dialogue between the boiler and the DIM ERP. Make
the connections as indicated in chapter 3, according to your
appliance model.
N.B.: the electrical connection between the electronic boards
must be made using cables with a minimum section of 0.50
mm2and a maximum section of 2.5 mm2; the length of these
connections must not exceed 15 metres.
• Room thermostat connection On - O. e room thermostats
to be connected to the DIM ERP must have a potential free con-
tact. e On-O room thermostats relative to the zones must be
connected as indicated in Fig. 25, 26, 28 or 29.
• Immergas remote control connection. Connect the remote
controls as indicated in gures 28, 29 and as specied in the
boiler instruction manual.
• External probe connection (optional). e external probe con-
trols the ow temperature of the system and varies the operation
mode and controlled zones depending on its connection (see
par. 3.19).
- e external probe must be connected to the boiler by connec-
ting the manifold and the boiler via DIM BUS (see the boiler
handbook). e temperature read by the external probe is sent
to the manifold that will adjust the ow temperature of the
various zones, according to the settings of the trimmer and
area management probe.
- e external probe must be connected to the manifold by
connecting the manifold and boiler via signal state. is way,
it will be possible to adjust the ow temperature of the mixed
zones. In these conditions, another probe must be connected
to the boiler if it is necessary to correlate the direct zone ow
with the external temperature (see Fig. 23).