6Response SE Combi - Installation
5. Where the lowest part of the terminal is fitted less than 2m
(6'6") above a balcony, above ground or above a flat roof to
which people have access then the terminal MUST be
protected by a purpose designed guard. The minimum
spacing in Table 4, Nos. 2, 3, 4, 5 and 6 would be 75mm, in
order to allow a terminal guard to be fitted.
Terminals guards are available from boiler suppliers - ask for
Tower Flue Guard, Model K1. In case of difficulty seek advice
from:
Tower Flue Components Ltd.,
Vale Rise, Tonbridge, Kent TN9 1TB
Telephone No. 01732 351 555
Ensure that the guard is fitted centrally.
6. Where the terminal is fitted within 850mm (34") of a plastic or
painted gutter or 450mm (18") of painted eaves then an
aluminium shield at least 750mm (30") long should be fitted
to the underside of the gutter or painted surface fitted
centrally above the flue.
7. The air inlet/products outlet duct and the terminal of the boiler
MUST NOT be closer than 25mm (1") to combustible
material. Detailed recommendations on the protection of
combustible material are given in BS. 5440: 1990.
8. Where it is essential that the terminal wall plate is fitted, i.e.
wall thicknesses over 610mm (24") or with an inaccurately
cut hole, the minimum spacing in Table 4, Nos. 2, 3, 4, 5 and
6 would be 60mm (2.4") in order to allow the terminal wall
plate to be fitted.
IMPORTANT. It is the responsibility of the installer to ensure, in
practice, that products of combustion discharging from the
terminal cannot re-enter the building or any other adjacent
building through ventilators, windows, doors, other sources of
natural air infiltration, or forced ventilation / air conditioning.
If this should occur the appliance MUST be turned OFF, labelled
as 'unsafe' until corrective action can be taken.
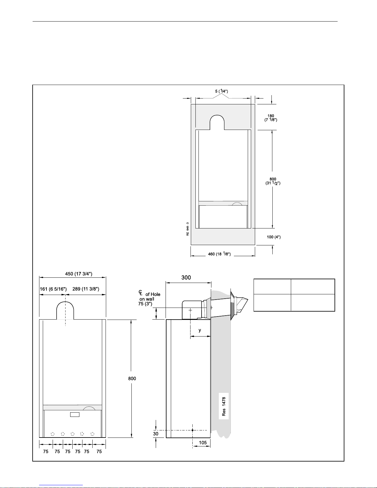
FLUE LENGTHS
The flue assembly can be adapted to accommodate flue lengths
up to 3 metres. Refer to Frame 11.
WATER CIRCULATION SYSTEM
The boiler is designed for connection to pressurised, fully
pumped, sealed water central heating systems ONLY. The
domestic hot water (DHW) calorifier is incorporated within the
heat exchanger and only requires connection to the mains water
supply.
IMPORTANT. Ensure that the mains water supply pressure is
adequate to provide the required DHW flow rate. Refer to Table 1
on page 3.
The central heating system should be installed and
commissioned in accordance with BS. 6798 and, in addition, for
smallbore and microbore systems BS. 5449.
The domestic hot water system should be in accordance with
BS. 5546 and BS. 6700.
Copper tubing to BS 2871:1 is recommended for water carrying
pipework and MUST be used for pipework carrying potable water.
Any soldered joints on potable water pipework MUST NOT be
made with solder containing lead.
GENERAL
GAS SUPPLY
The local gas supplier should be consulted, at the installation
planning stage, in order to establish the availability of an adequate
supply of gas. An existing service pipe must NOT be used without
prior consultation with the local gas supplier.
A gas meter can only be connected by the local gas supplier or by
a registered CORGI installer.
Check that the appliance is suitable for the proposed gas supply. A
working gas pressure of 20 mbar MUST be available at the boiler
inlet.
IMPORTANT.
Installation pipes MUST be fitted in accordance with BS. 6891.
Pipework from the meter to the boiler MUST be 22mm O.D.
The complete installation MUST be tested for gas soundness and
purged as described in the above code.
FLUE INSTALLATION
The flue must be installed in accordance with the
recommendations of BS. 5440: Part 1.
The following notes are intended for general guidance:
1. The boiler MUST be installed so that the terminal is exposed
to external air.
2. It is important that the position of the terminal allows the free
passage of air across it at all times.
3. Minimum acceptable spacing from the terminal to
obstructions and ventilation openings are specified in
Table 4.
4. Pluming will occur at the terminal, so where possible,
terminal positions where this could cause a nuisance should
be avoided.
Table 4 - Balanced flue terminal position
Terminal Position
Minimum Spacing
1. Directly below or alongside an
opening window, air vent or other
ventilation opening 300 mm (12")
2. Below guttering, drain pipes or soil
pipes 25 mm ( 1")
3. Below eaves 25 mm ( 1")
4. Below balconies or a car port roof 25 mm ( 1")
5. From vertical drain pipes or soil pipes 25 mm ( 1")
6. From internal or external corners 25 mm ( 1")
7. Above adjacent ground, roof or
balcony level 300 mm (12")
8. From a surface facing the terminal 600 mm (24")
9. From a terminal facing a terminal 1200 mm (48")
10. From an opening in a car port
(e.g. door or window) into dwelling 1200 mm (48")
11. Vertically from a terminal on the
same wall 1500 mm (60")
12. Horizontally from a terminal on the wall 300 mm (12")
Notes.
• These clearances are for horizontal flue only.
Refer to supplementary manual for roof flue kits.
• (Positions 2-6, Table 4).Due to the terminal design,
installation is possible with clearances less than those
specified in BS 5440, Part 1.