
P/N 42-9450 8/08 Copyright 2008 Hydrotherm
Page 5KN INSTALLATION AND OPERATION INSTRUCTIONS
Read before beginning the installation
Codes and standards
Boiler compliances
e KNhas been design certied by CSA for use with natural
and propane gas under the latest revision of ANSI-Z21.13/CSA
4.9, Gas-Fired Low Pressure Steam and Hot Water Boilers and
CAN1-3.1, Industrial and Commercial Gas Fired Packaged
Boilers. Each unit has been constructed and hydrostatically
tested for a maximum working pressure of 100 psi (700 kPa), in
accordance with Section IV of the A.S.M.E. Boiler and Pressure
Vessel Code.
Code compliances
All aspects of the boiler installation must conform to the
requirements of the authority having jurisdiction, or, in the
absence of such requirements, to the National Fuel Gas Code,
ANSI Z223.1/NFPA 54-latest revision. Where required by the
authority having jurisdiction, the installation must conform to
the Standard for Controls and Safety Devices for Automatically
Fired Boilers, ANSI/ASME CSD-1.
In Canada, the installation must be in accordance with the
requirements of CSA B149.1 or .2, Installation Code for Gas
Burning Appliances and Equipment.
Commonwealth of Massachusetts
If installing a KN boiler in the
Commonwealth of Massachuses,
you MUST FOLLOW the additional instructions contained in
Hydrotherm’s instruction sheet, MA CODE. If you don’t have a
copy, call your Hydrotherm dealer or Hydrotherm.
When installed in the Commonwealth of Massachuses,
ensure the following:
e boiler must be installed by a licensed plumber or gas
er.
When antifreeze is used in the system, install an approved
pressure back-ow preventer.
Before placing the boiler . . .
Verify boiler rating and gas supply
Before installing the KNboiler, check the rating plate to
ensure that the unit has been sized properly for the job.
Ensure that the boiler is set up for the type of gas available at
the installation site.
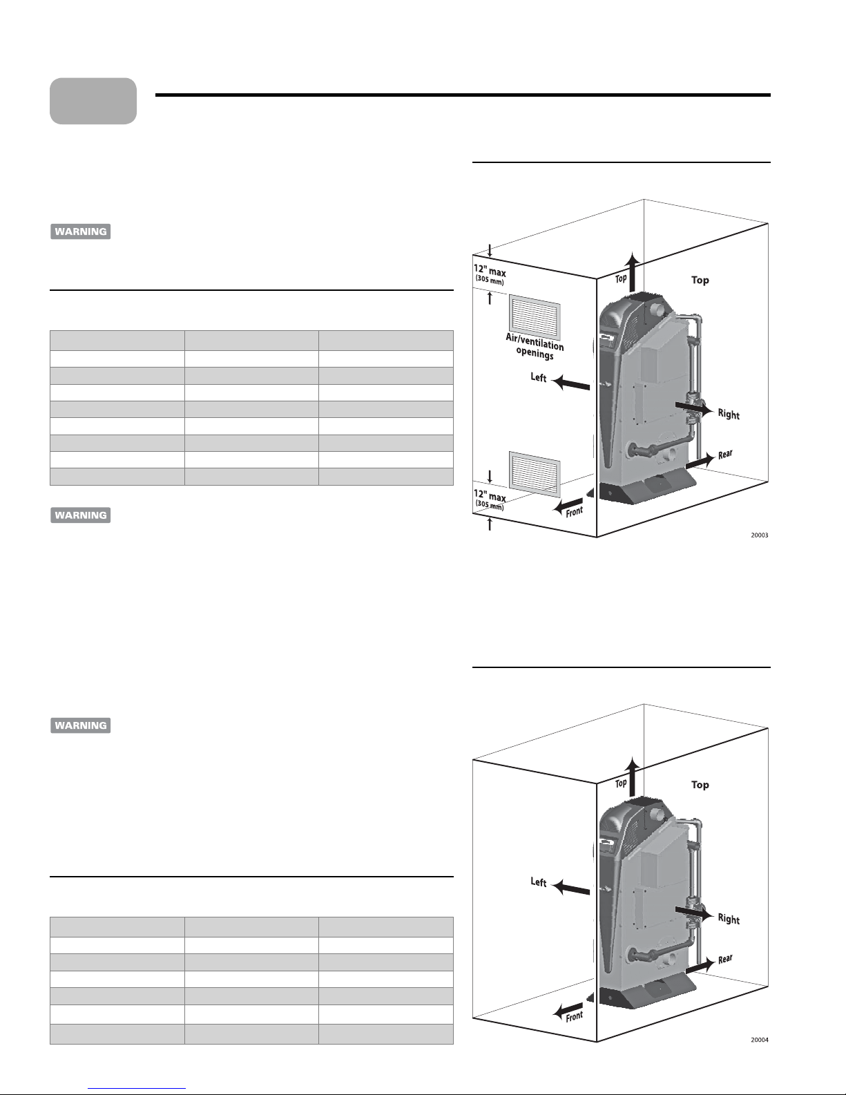
Verify location is suitable
Ensure the availability of an adequate electrical supply,
uncontaminated air for combustion, and that vent (and air)
piping can be correctly installed.
Ensure the boiler can be connected to system water piping
and gas supply.
e boiler must not be exposed to dripping or spraying
water or to rain.
If replacing an existing boiler, nd out what caused the
boiler to fail before installing a new boiler. Correct the
problems that led to failure, or the failure may happen to the
new boiler.
•
•
•
•
•
•
•
•
Donot install or operatetheboiler,orleavean installation,without
complying with all of the following, and with all information
supplied in the boiler manuals.
Should overheating occur
Do not shut o power to the circulators if the boiler should overheat or
the gas supply fail to shut o. Instead, shut o gas supply to the boiler with
a manual valve in the gas supply line.
When servicing or operating the boiler
Disconnect electrical power when servicing the boiler to avoid potential
for electrical shock.
Allow the boiler, components and water to cool before aempting to
remove or handle boiler parts.
Do not add cold water to the boiler if it is hot. Allow the boiler to cool
completely before introducing cold water.
Do not operate the boiler if any part has been under water.
Follow the guidelines in the Maintenance section for dealing with berglass
and ceramic ber materials.
You must have the following equipment
Electric multimeter • Ammeter
Surface temperature gauge • Metric Allen wrenches
Pressure dierential gauge or included DP manometer
(3) Gas pressure meters: Two @ 0 – 14 inches w.c.; One @ 0 – 5 psi
Combustion analyzer You must use a combustion analyzer and follow
allinstructionsinthismanualtocorrectlystart-uptheboiler.Asprescribed
in this manual, the O2levels must be between 5% and 7%. roughout
all ring rate conditions, the burner surface must never show red areas.
Follow manual procedures to correct this condition.
Boiler water
You must thoroughly ush the system, with the boiler isolated from the
system, to remove sediment. Existing systems, in particular, oen contain
large amounts of iron sediment. Excess suspended solids in the water can
lead to premature boiler failure.
High eciency equipment requires suitable water for reliable operation.
Follow the ASME recommendation for water treatment on hydronic
applications that have dissolved solids greater than 200 parts per million.
Fill water must be soened if the solids concentration is higher than this.
See additional guidelines in this manual.
Do not allow the boiler to operate with frequent introduction of make-up
water. Correct all problems causing leaks, relief valve weeping, or other
factors that could cause fresh water to be added.
Do not use automotive anti-freeze in the boiler waterways. If the use of
antifreeze is necessary, an anti-freeze specically formulated for hydronic
heating systems must be used or damage to the boiler may occur, voiding
the warranty.
On applications that use antifreeze or other low conductivity uid in the
water, provide for increased water ow or ensure proper temperature rise.
Train the user
Before leaving, review the User’s Information Manual with the boiler
user/homeowner, including the required maintenance to be performed
by the user, the need for annual start-up/maintenance by a qualied tech-
nician, the avoidance of combustion air blockage or contamination, and
never bringing or storing ammable products into the boiler area.
•
•
•
•
•
•
•
•
•
•
•
•
•
•
•
•
•
1