42488-01 • 12/21/11 • Hunter Fan Company
2
© 2011 Hunter Fan Company
Your new Hunter® ceiling fan is an addition to your home or oce that
will provide comfort and performance for many years. is installation
and operation manual gives you complete instructions for installing
and operating your fan.
We are proud of our work. We appreciate the opportunity to supply
you with the best ceiling fan available anywhere in the world.
Before installing your fan, for your records and warranty assistance,
record information from the carton and Hunter nameplate label
(located on the top of the fan motor housing).
Cautions and Warnings
•READ THIS ENTIRE MANUAL CAREFULLY BEFORE BEGINNING
INSTALLATION. SAVE THESE INSTRUCTIONS.
• Use only Hunter replacement parts.
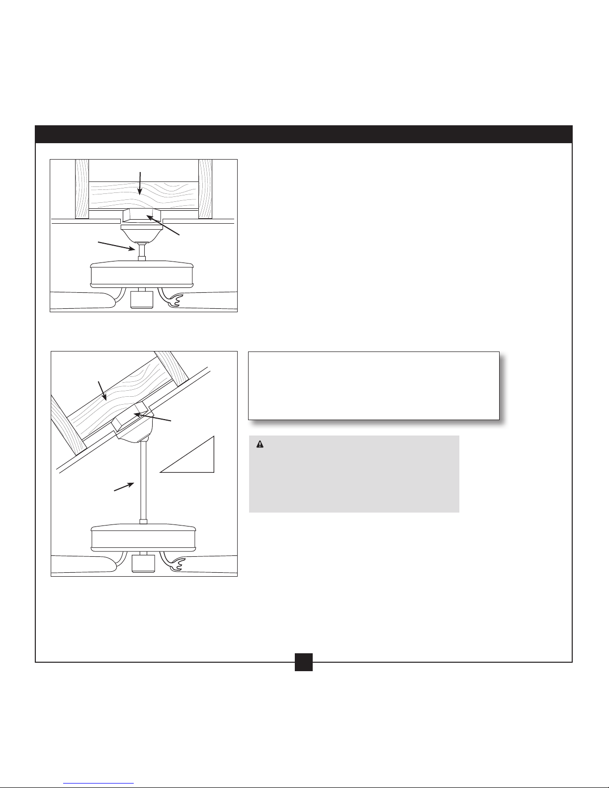
• To reduce the risk of personal injury, attach the fan directly to the
support structure of the building according to these instructions,
and use only the hardware supplied.
• To avoid possible electrical shock, before installing your fan,
disconnect the power by turning o the circuit breakers to the
outlet box and associated wall switch location. If you cannot lock
the circuit breakers in the o position, securely fasten a prominent
warning device, such as a tag, to the service panel.
• All wiring must be in accordance with national and local electrical
codes and ANSI/NFPA 70. If you are unfamiliar with wiring, use a
qualied electrician.
• To reduce the risk of personal injury, do not bend the blade
attachment system when installing, balancing, or cleaning the fan.
Never insert foreign objects between rotating fan blades.
• To reduce the risk of re, electrical shock, or motor damage, do not
use a solid-state speed control with this fan. Use only Hunter speed
controls, which are solid state.
• is product conforms to UL STD 507 and is certied to STD C22.2
No.113
• Wash your hands after your fan installation is complete.
Welcome
Table Of Contents
1 • Getting Ready .................... 6
2 • Assembling the Blades. ........... 7
3 • Installing the Light Kit............. 8
4 • Assembling and Hanging the Fan..10
5 • Installing the Ceiling Plate ........11
6 • Setting the Remote Transmitter and
Receiver.........................12
7 • Securing Fan to Secondary Support
System ..........................13
8 • Wiring the Fan....................14
9 • Installing the Canopy and Canopy Trim
Ring ............................15
10 • Installing the Glass...............16
11 • Operating the Remote Control and
Mounting the Holder............17
12 • Operating and Cleaning your Ceiling
Fan .............................18
13 • Troubleshooting .................19