2
41847-02 • 05/28/10 • Hunter Fan Company
© 2010 Hunter Fan Company
Bienvenido
Tabla de contenido
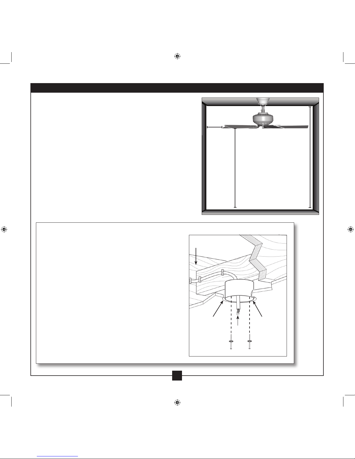
Preparación del sitio del ventilador 3
1 • Preparándose. . . . . . . . . . . . . . . . . . 6
2 • Instalación de la placa de techo 7
3 • Montaje y suspensión del
ventilador ..................... 8
4 • Cableado del ventilador . . . . . . . 9
5 • Instalación de la campana
y del anillo de la moldura
de campana ..................10
6 • Montaje de las aspas. . . . . . . . . . 11
7 • Completando su instalación
con un artefacto de iluminación
o sin él........................12
8 • Operación y limpieza de su
ventilador de techo . . . . . . . . . . . 16
9 • Localización de fallas . . . . . . . . . 17
Su nuevo ventilador de techo Hunter® es una adición a su hogar u oficina que
proporcionará comodidad y rendimiento por muchos años. Este manual de
instalación y operación le proporciona instrucciones completas para instalar y
operar su ventilador.
Estamos orgullosos de nuestro trabajo. Apreciamos la oportunidad de
suministrarle el mejor ventilador de techo disponible en cualquier lugar
del mundo.
Antes de instalar su ventilador, para sus registros y ayuda con la garantía,
registre la información de la caja y la placa Hunter (ubicada en la parte
superior del alojamiento del motor del ventilador).
Precauciones y advertencias
• LEA DETENIDAMENTE TODO EL MANUAL ANTES DE COMENZAR LA
INSTALACIÓN. GUARDE ESTAS INSTRUCCIONES.
• Solamente use piezas de repuesto Hunter.
• Para reducir el riesgo de lesiones personales, conecte directamente el
ventilador a las estructuras de soporte de la construcción de acuerdo con
estas instrucciones, y use sólo la tornillería suministrada.
• Para evitar posibles choques eléctricos, antes de instalar su ventilador,
desconecte la alimentación apagando los interruptores automáticos que
alimentan a la caja de salida y al interruptor de pared asociado. Si no puede
bloquear los interruptores automáticos en la posición de apagado, asegure
firmemente una forma destacada de advertencia, como una etiqueta de
seguridad, en el tablero de servicio.
• Todo el cableado debe realizarse de acuerdo con los códigos eléctricos
locales y nacionales y con ANSI/NFPA 70. Si no está familiarizado con el
cableado, emplee un electricista calificado.
• Para reducir el riesgo de lesiones personales, no doble el sistema de fijación
de las aspas cuando instale, equilibre o limpie el ventilador. Jamás introduzca
objetos extraños entre las aspas del ventilador en rotación.
• Para reducir el riesgo de incendio, choque eléctrico, o daño al motor, no
use este ventilador con ningún dispositivo de estado sólido para control de
velocidad. Solamente use controles de velocidad Hunter.
• Este producto se ajusta a UL STD 507 y se certifica a STD C22.2 No.113
• Lávese las manos después de instalar el ventilador.