3
Original installation and operating instructions.
CONTENTS Page
1. General description 3
1.1 Applications 3
2. Nameplates 4
3. Product range 4
4. Functions 4
4.1 Factory settings 4
5. Mechanical installation 5
5.1 MP 204 in control cabinet 5
5.2 MP 204 on DIN rail 5
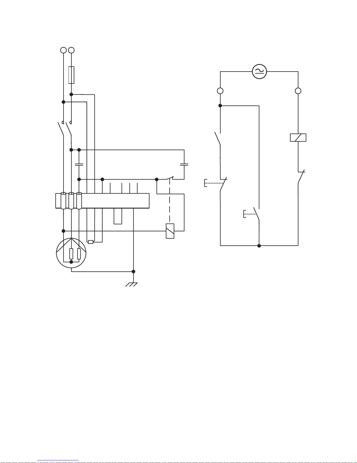
6. Connection 6
6.1 Overview 6
6.2 Input for Pt100/Pt1000 7
6.3 Input for PTC/thermal switch 7
6.4 Back-up fuses 7
6.5 Wiring diagrams 8
6.6 External current transformers 11
7. Start-up 12
7.1 Operation 12
7.2 Setting on control panel 12
7.3 Learning function 15
8. R100 remote control 15
8.1 R100 menus 16
8.2 Operating the R100 17
8.3 Menu structure 17
9. Setting with the R100 18
9.1 Menu 1. OPERATION 18
9.2 Menu 2. STATUS 19
9.3 Menu 3. LIMITS 22
9.4 Menu 4. INSTALLATION 25
10. MP 204 with GENIbus 29
11. Approvals and standards 29
12. Pump operation with MP 204 29
12.1 Industrial pumps 29
12.2 Submersible pumps 29
12.3 Wastewater pumps 30
13. Curves 31
13.1 Trip class "P" 31
13.2 IEC trip curves 32
14. Technical data 33
15. Electrical data 33
15.1 Outputs 33
15.2 Inputs 33
15.3 Insulation measurement method 33
15.4 Measuring ranges 34
15.5 Setting ranges 34
16. Fault finding 35
16.1 Warning and trip codes 35
17. Disposal 35
1. General description
The MP 204 is an electronic motor protector,
designed for the protection of an asynchronous
motor or a pump.
The motor protector consists of:
•acabinet incorporating instrument transformers
and electronics.
•acontrol panel with operating buttons and dis-
play for reading of data.
The MP 204 operates with two sets of limits:
• a set of warning limits and
• a set of trip limits.
If one or more of the warning limits are exceeded,
the motor continues to run, but the warnings will
appear in the MP 204 display.
If one of the trip limits is exceeded, the trip relay
stops the motor. At the same time, the signal relay is
operating to indicate that the limit has been
exceeded.
Some values only have a warning limit.
The warning can also be read out by means of the
Grundfos R100 remote control.
1.1 Applications
The MP 204 can be used as a stand-alone motor
protector.
The MP 204 may also be incorporated in a Grundfos
Modular Controls system in which it functions as a
motor protector and data collection unit transmitting
measured values via the Grundfos GENIbus to the
Grundfos CU 401 control unit or other units in the
system.
Monitoring of the MP 204 is possible via a Grundfos
GENIbus.
The power supply to the MP 204 is in parallel with
the supply to the motor. Motor currents up to 120 A
are passed directly through the MP 204. The MP 204
protects the motor primarily by measuring the motor
current by means of a true RMS measurement. The
MP 204 disconnects the contactor if, for example,
the current exceeds the preset value.
The pump is protected secondarily by measuring the
temperature with a Tempcon sensor, a Pt100/Pt1000
sensor and a PTC sensor/thermal switch.
Prior to installation, read these installation
and operating instructions. Installation and
operation must comply with local regula-
tions and accepted codes of good prac-
tice.
The use of this product requires
experience with and knowledge of the
product.
Persons with reduced physical, sensory or
mental capabilities must not use this
product, unless they are under supervision
or have been instructed in the use of the
product by a person responsible for their
safety.
Children must not use or play with this
product.
All cables taken through the MP 204 and
the current transformers must be insu-
lated.