
30" to 36" Adjustable Height
Backsplash With Shelf
ZXADJB48PSS,for 48" wide ranges
ZXADJB36PSS,for 36" wide ranges
ZXADJB30PSS, for 30" wide ranges
12" High Backsplash
ZX12B48PSS, for 48" wide ranges
ZX12B36PSS, for 36" wide ranges
ZX12B30PSS, for 30" wide ranges
CONTENTS
Design Information
Models Available......................................................................3
Backsplash Accessories ......................................................3
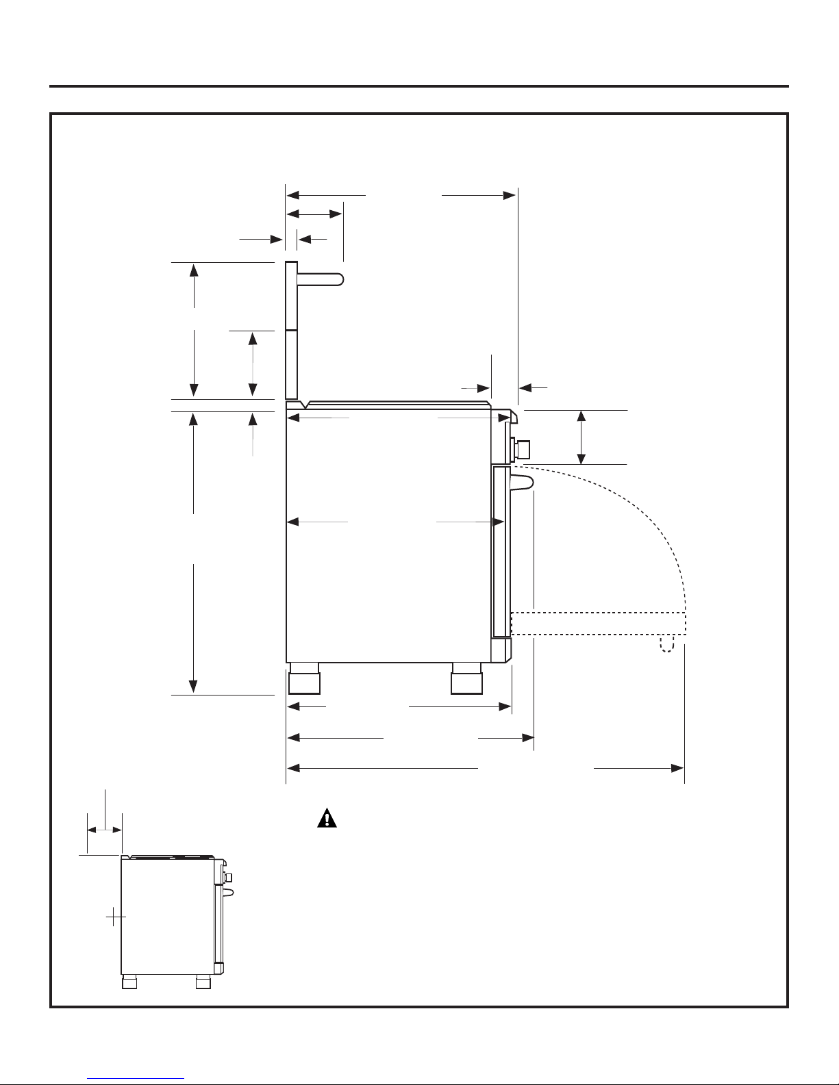
Product Dimensions and Clearances........................4-7
Tools and Materials Required .......................................... 8
Installation Preparation
Power Supply Locations ..............................................9, 10
Installation Instructions
Step 1, Remove Packaging ..............................................11
Step 2, Move Range Indoors ..........................................12
Step 3, Install Anti-Tip Device ........................................13
Step 4, Connect Range to Gas........................................14
Step 5, Connect Electrical ................................................14
Step 6, Roll Range into Position ....................................14
Step 7, Level the Range ....................................................15
Step 8, Replace Oven Doors............................................15
Step 9, Check Burners ........................................................16
Finalize Installation ..............................................................16
Installation Checklist ..........................................................16
Accessories..............................................................................17
Accessory Installation ................................................18–20
Gas Conversion ............................................................21-23
MODELS AVAILABLE
These Monogram ranges arefactoryset for either
natural gas or LP gas. Order the model for your
installation situation.
48" Natural Gas Models:
ZDP484NG – 4 gas burners, grill and griddle
ZDP486NR – 6 gas burnersand grill
ZDP486ND – 6 gas burners and griddle
48" LP Gas Models:
ZDP484LG–4gas burners, grill and griddle
ZDP486LR – 6 gas burnersand grill
ZDP486LD – 6 gas burners and griddle
36" Natural Gas Models:
ZDP366N – 6 gas burners
ZDP364NR – 4 gas burnersand grill
ZDP364ND – 4 gas burnersand griddle
36" LP Gas Models:
ZDP366L – 6 gas burners
ZDP364LR – 4 gas burnersand grill
ZDP364LD – 4 gas burners and griddle
30" Natural Gas Model: ZDP304N
30" LP Gas Model: ZDP304L
3
BACKSPLASH ACCESSORIES
All models require 12" minimum clearance to a
vertical combustible surface at the rear. If clearance
is less than 12”, the entire surface of the back wall
above and the full width of the range must be
protected by a backsplash. The backsplash must be
constructed of non-combustible material, such as
metal, ceramic tile, brick, marble or other stone.
Two Backsplash Accessories Available:
•The 12" high stainless steel backsplash accessory
is available. Use this backsplash in combination
with a custom, non-combustible backsplash built
beyond the 12” height.The combined height of
the backsplash accessory and the custom
backsplash must reach the bottom of a hood,
or when thereis no hood, to 48” above the
cooking surface.
Design Information
•An adjustable 30" to 36" high backsplash with
shelf is also available. This backsplash fills in the
space between the top of the range and the
bottom of the hood. The shelf is positioned so that
heat lamps from the bottom of a Monogram
professional hood are directed towards the shelf.