
Garland Commercial Ranges Ltd.
1177 Kamato Road,
Mississauga, Ontario
L4W 1X4 CANADA
General Inquires 1-905-624-0260
USA Sales, Parts and Service 1-800-424-2411
Canadian Sales 1-888-442-7526
Canada or USA Parts/Service 1-800-427-6668
36 E Series Heavy Duty
Open ElementTop Range
Item: ______________________________
Quantity: __________________________
Project: ____________________________
Approval: __________________________
Date: ______________________________
36 E Series Heavy Duty Open ElementTop Range
Models:
36ER33 36ES33
Specifications:
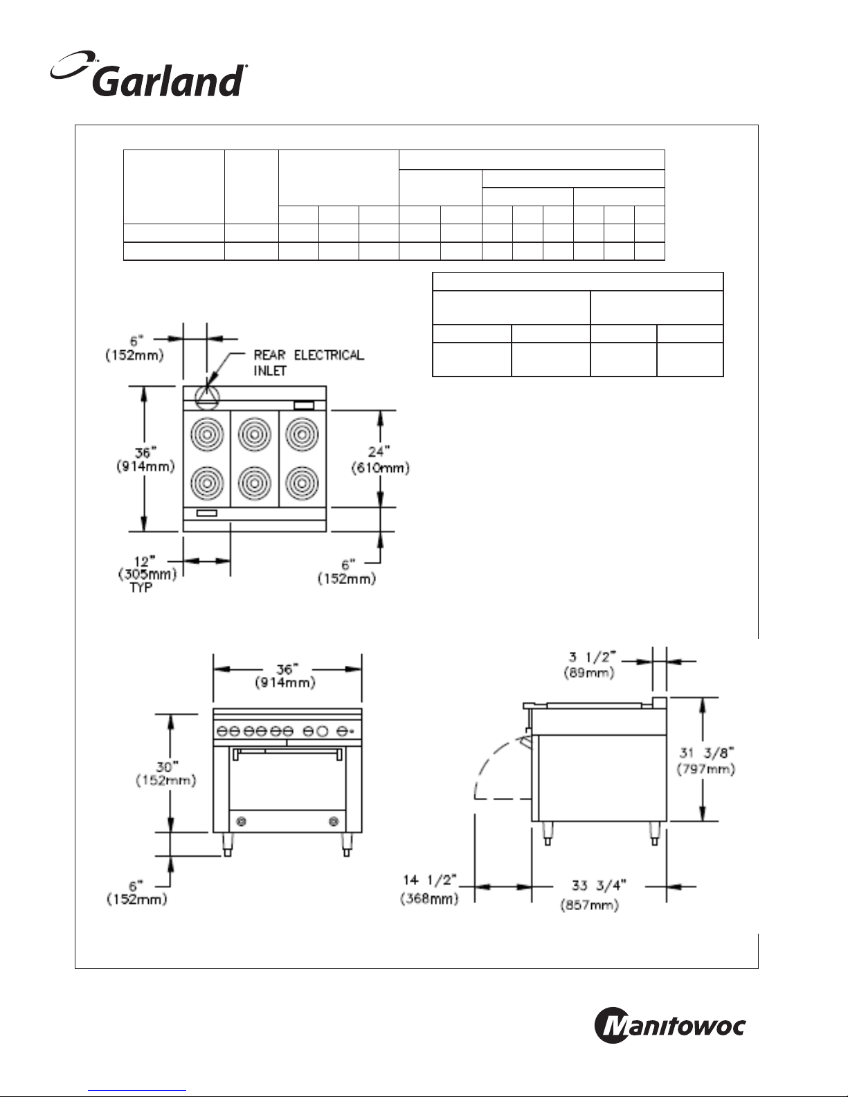
Heavy‑duty electric range, Model 36ER33, with 6 element
open top. Topc ontains six tubular elements, each
controlled by 3‑heat switch. Full size oven is controlled by
a heavy‑duty electromechanical thermostat. . Oven interior
is 13.5" (343mm) high x 26.25" (667mm) wide x 29" (533mm)
deep with removable four‑position chrome plated rack
guides and one oven rack, front and rear stainless steel
grease troughs. Stainless steel front and sides. Circuit
breakers or fuses provide electric circuit protection.
Available with casters or for dais mount. Model 36ES33 has
storage base in lieu of oven section.
Standard Features:
• Stainlesssteelfrontandsides
• Stainlesssteelfrontrail
• Chromeplated,4position
removable rack guides w/oven
rack
• Electro‑mechanicalheavy‑duty
oven thermostat
• Sixtubularelementseach
controlled by three‑heat
switches
• 3"(76mm)highstainlesssteel
vent raiser
• Heatresistant,cooltotouch
oven door handle
• 6"(152mm)adjustablechrome
plated legs (NSF)
• OneYearlimitedparts&labor
(USA&Canada)
Optional Features:
Stainlesssteelmainback(R&S
models)
Extra oven rack
Swivel casters complete with
front brakes (4)
6"(152mm)adjustablestainless
steel legs
Marine equipment‑ storm rails
for pots, hand rails, oven door
latch, drip tray stop and deck
fasteners
NOTE: Ranges supplied with
casters must be installed with an
approved restraining device.
Model 36ER33
Six Open Element Top Range
C US
®