2!
!
oAll the models incorporate different safety
elements. If one or more of them are activated,
consult the section 7 TROUBLE SHOOTING.
oIn time, the presence in the air of smoke, dust and
pollution may stain the walls and areas close to the
appliance.
oAny improper use is forbidden.
oDo not install the boiler in rooms prone to frost.
!
3 INTRODUCTION
3.1 DESIGN & OPERATION
The Gabarron CM15 boilers are electrically heated
appliances providing wet central heating through a standard
radiator system (or underfloor system with special kit).
The Gabarron CMX15 boilers are electrically heated combi
boilers providing wet central heating through a standard
radiator system (or underfloor system with special kit) and
domestic hot water (DHW) delivered from an integral
unvented store at mains water pressure.
Outputs are from 2 to 15kW. Maximum output can be
adjusted to match the heat requirement of the system or the
limitations of the incoming available power supply.
Operation is possible on three phase 3x400V+N or single
phase 230V - 50Hz.
The boilers are designed for internal installation on a suitable
wall with consideration for the total weight of the appliance
when full.
A digital control panel provides user control to adjust the
temperatures of heating and hot water. A power modulation
feature automatically adjusts the heating output to the
demand to ensure economic operation.
A suitable external time clock/room thermostat should be
fitted.
An adjustable thermostatic blending valve must be fitted on
the hot water supply to ensure a safe and economic supply
of hot water.
All components for sealed system central heating are built-
in. A suitable filling loop should be fitted externally to
comply with water supply regulations.
Heating and hot water functions will operate independently
but not simultaneously with priority always to hot water
production unless this function is not selected.
3.2 PRINCIPLE COMPONENTS
•Insulated steel boiler unit with immersed
stainless steel elements INCOLOY800
•50 L stainless steel domestic hot water store
with CFC free insulation and immersed
stainless steel elements INCOLOY800.
•Fully integrated electronic control boards
featuring temperature control and modulation
function, pump over-run, anti-seize and frost
protection. Self diagnostic fault information.
•Sealed system heating components: circulating
pump, 6L expansion vessel, auto air-vent, 3 bar
relief valve, pressure gauge, water flow switch
and temperature limit safety thermostat.
•Unvented hot water components: 7 bar relief
valve, 2l expansion vessel, non-return valve and
temperature limit safety thermostat.
•Silent TRIAC power switches.
•Digital control board.
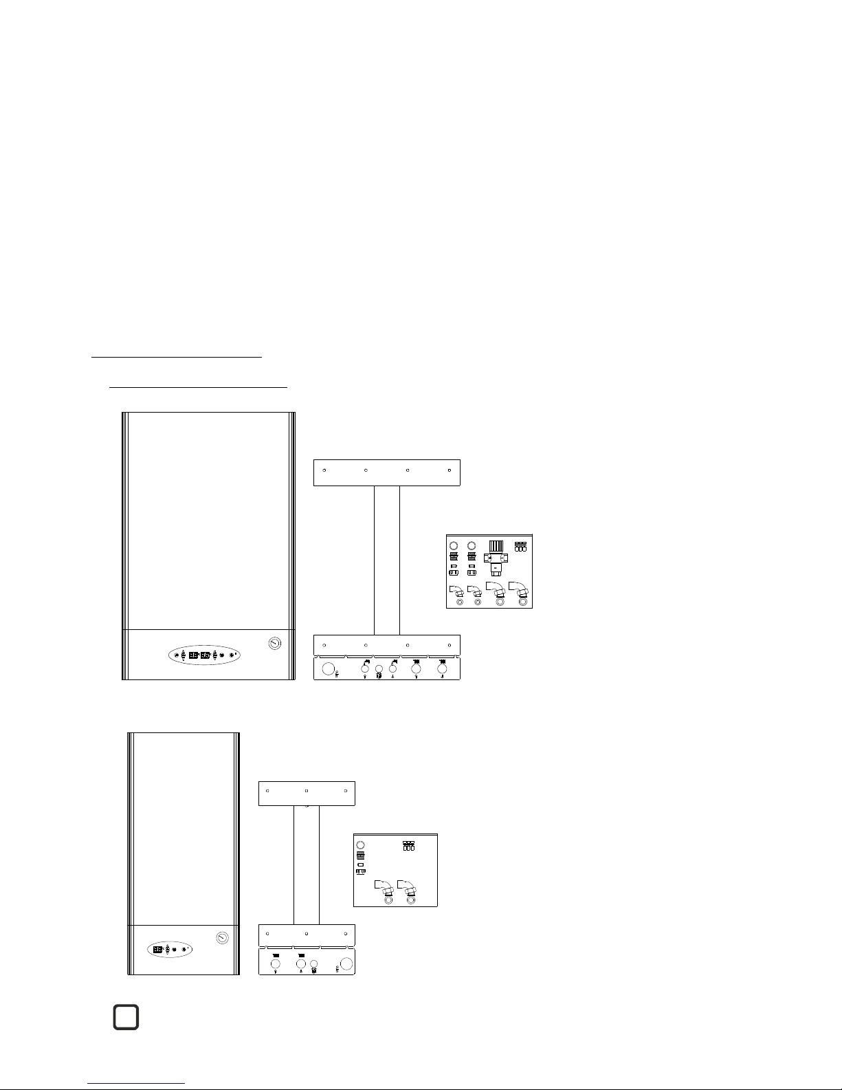
3.3 KEY TO COMPONENTS
!
1 DHW 7 bar relief valve.
2 Connection block.
3 ON / OFF switch.
4 DHW safety thermal limit switch.
5 Main contactor.!!
6 DHW electronic PCB
7 Anti-electrolysis DHW hoses.
8 DHW resistance.
9 Temperature sensor location.
10 Insulated tank 50L.
11 Automatic purge.
12 Heating expansion vessel 6L.
13 DHW expansion vessel 2L.
14 Circulation pump.
15 Insulated heating header tank.
16 Heating resistance.
17 Heating 3 bar relief valve.
18 Heating safety thermal limit switch.
19 Main electronic PCB.
20 Pressure gauge.
21 Heating flow detector.
22 Controls card.