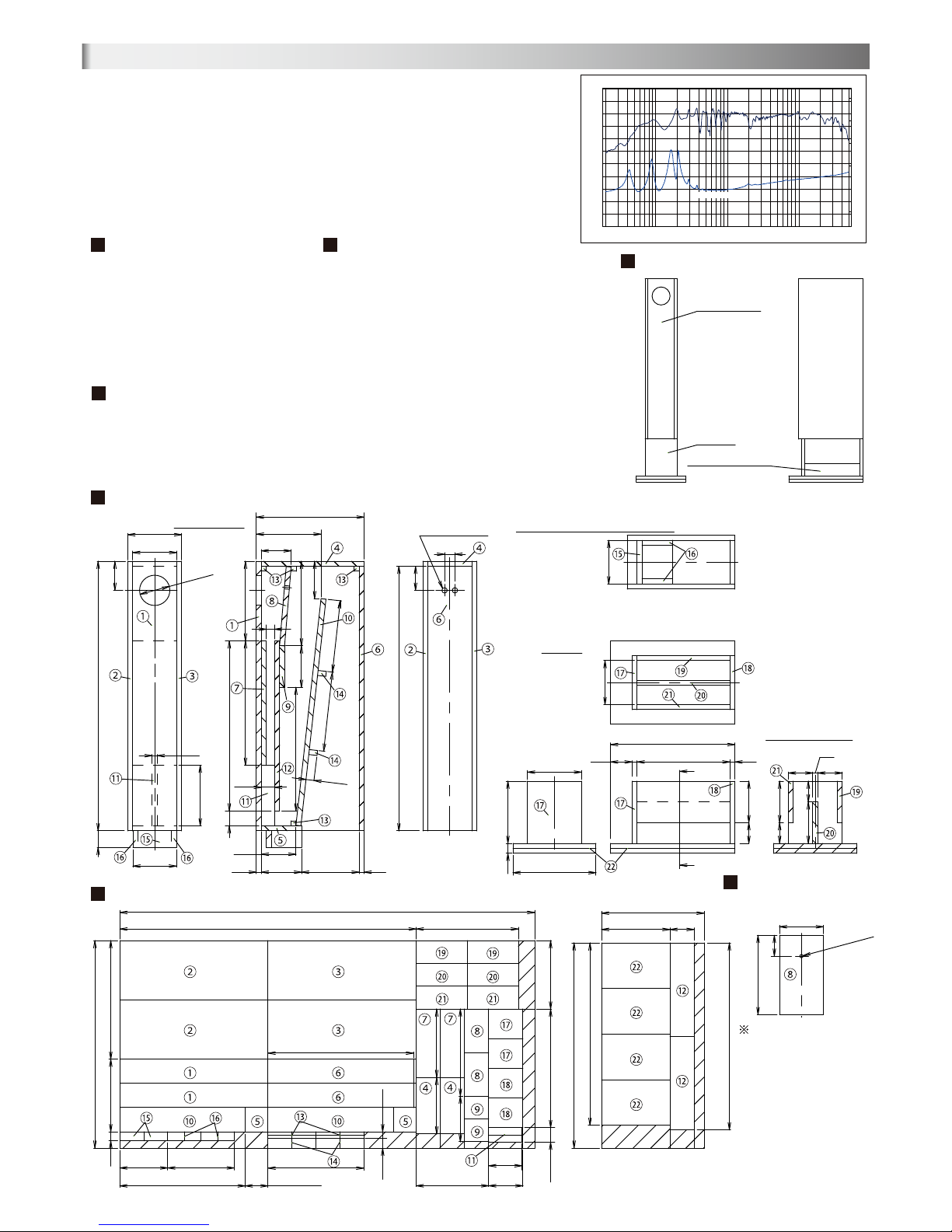
FE83-Sol Thiele/Small Parameters
in
in
in
in
in
lb
lb
80
83
73
46.8
16.4
Stamped
8
Fs - 40
88
5
15
187
470
30
60
3.2
3.3
2.9
1.85
0.65
0.412
1.036
Size
Overall Diameter
Baffle Hole Diameter
Depth
Voice Coil Diameter
Cast / Stamped
Impedance
Reproduction Frequency Response
Sound Pressure Level
Rated Input
Music Power
Magnet Weight
Net Weight
Equivalent Diaphragm Radius
Effective Cone Diameter
a
D
mm
mm
mm
mm
mm
ohm
kHz
dB/W (1m)
W
W
g
g
mm
mm
Surface Area of Cone
Nominal Impedance
Resonance Frequency
DC Resistance
Coil Inductance
Mechanical Q
Electromagnetic Q
Total Q
Equivalent Mass
BL Product (Factor Force)
Compliance Equivalent Volume
Voice Coil Overhang
Reference Efficiency n0
Mechanical Compliance of Suspension
Efficiency Bandwidth Product
Sd
Zn
Fs
Re
Le
Qms
Qes
Qts
Mms
BL
Vas
Xmax
Eff/n0
Cms
EBP
m2
ohm
Hz
ohm
mH
g
Tesla/m
L
mm
%
mm/N
0.0028
8
135
6.9
0.3
3.62
0.79
0.65
1.53
3.53
0.88
0.25
0.35
0.75
170.886
FOSTEX CO.
© PRINTED IN CHINA AUGUST 2016 611683
1-1-109, Tsutsujigaoka, Akishima City, Tokyo, 196-8550, Japan
• Read this manual carefully before starting operation and use this
product safely. We cannot be responsible for problems resulting
from failure to observe the instructions in this manual.
• This manual uses various pictorial displays to show how to use
this product and to avoid harm to yourself and others and damage
to your property. Here is what these pictorial displays mean.
IMPORTANT SAFETY INSTRUCTIONS
• Do not disassemble or alter. Doing so may lead to accident, fire or
electric shock.
• Do not place the speaker cabinet (enclosure) on an unstable cart,
stand or tripod, bracket, or table. It may fall, causing serious injury
and / or serious damage.
• Do not expose the product to rain or moisture, never wet the inside
with any liquid and never pour or spill liquids directly onto this
product. Please do not put any objects filled with liquids (e.g.
vases, etc.) onto the speaker cabinet.
WARNING
CAUTION
This label is intended to alert the user to the
presence of important operating instruc-
tions. Failure to heed the instructions will
result in severe injury or death.
This label is intended to alert the user to the
presence of important operating instruc-
tions. Failure to heed the instructions can
result in injury or material damage.
WARNING
CAUTION
• After taking the product out of the plastic bag, be sure to dispose
of it out of the reach of children. Otherwise, they may play with
the bag, which could cause hazard of suffocation. Also keep small
articles out of reach of children. If swallowed, consult a physician
immediately.
• Halt use immediately if a problem appears. When problems occur
such as a lack of sound, foreign objects inside the unit, smoke
coming out, or noxious odors, stop use immediately and contact
the dealer where you bought the product. Failure to do so may
result in an accident or injury.
• Never expose this product to extremely high or low temperatures.
• High SPL’ s may damage your hearing! Please do not get close to
the loudspeakers when using them at high volumes.
• Please note that the diaphragm build up a magnetic field. Do not
play with magnetic items at close range to the diaphragms.
• Use specified accessory parts and install them securely. Use of
other than designated parts may damage the product internally or
may not securely install the product in place as parts that come
loose may create hazards.
• Avoid touching the speaker membranes and do not block the
woofer’s ventilation ports.
• Always use fully checked cables. Defective cables can harm your
speakers. They are a common source for any kind of noise, hum,
crackling, etc.