
3ENGLISH
ENGLISH............................................................................................................................................................................................................ 4
TECHNICAL CHARACTERISTICS...................................................................................................................................................................... 4
IDENTIFICATION OF COMPONENTS ...................................................................................................................................................................................................5
INTRODUCTION ............................................................................................................................................................................................... 6
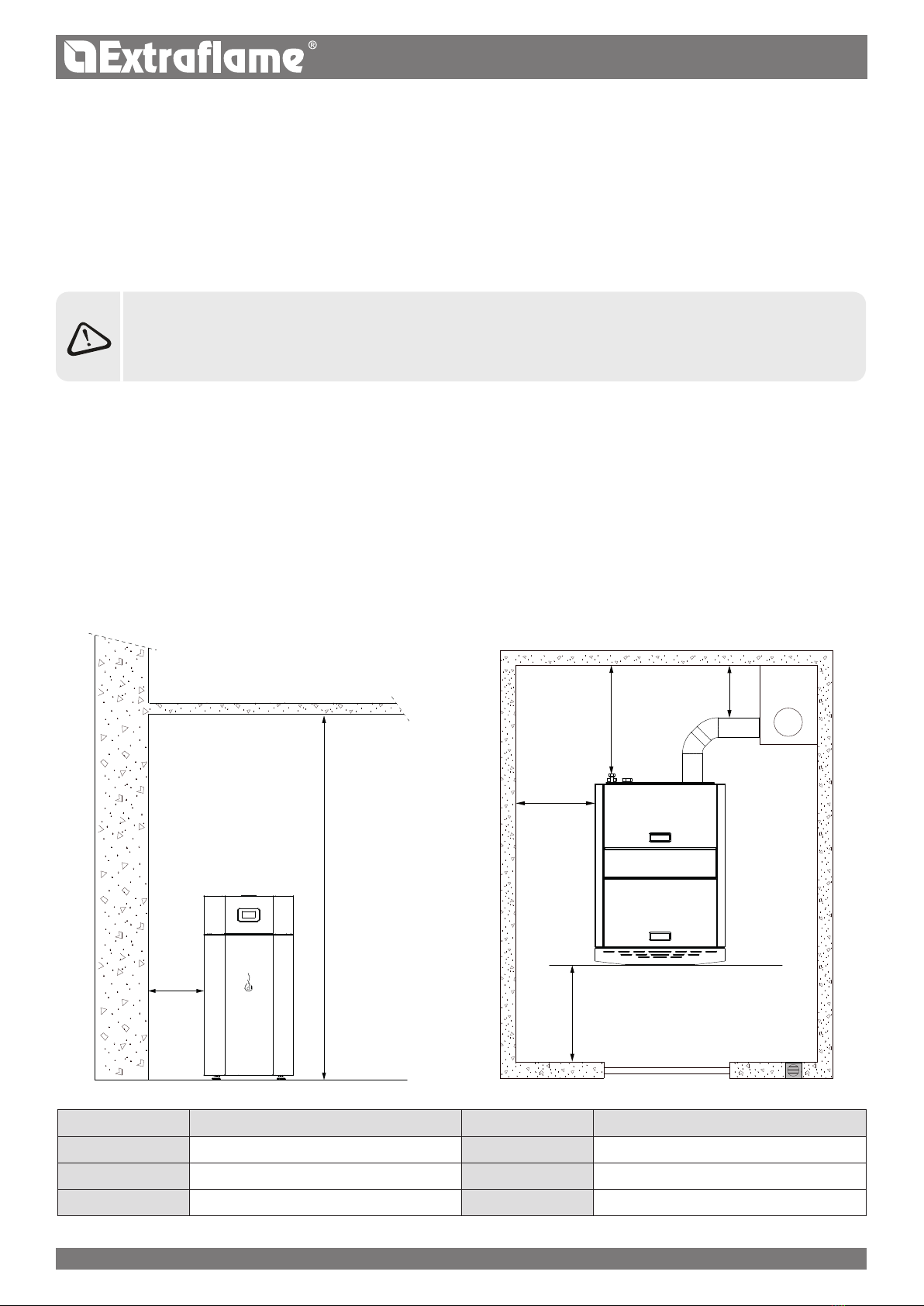
RECOmmENDED DISTANCES fOR THE bOILER COmpARTmENT................................................................................................................ 7
WARNINGS........................................................................................................................................................................................................ 8
SAfETy.............................................................................................................................................................................................................. 8
ROUTINE mAINTENANCE.............................................................................................................................................................................. 10
HyDRAULIC SySTEm...................................................................................................................................................................................... 11
INSTALLATION AND SAFETY DEVICES.............................................................................................................................................................................................11
ANTI-CONDENSATION DEVICE (mANDATORy) .......................................................................................................................................... 12
POSITIONINg .............................................................................................................................................................................................................................................13
REARmS........................................................................................................................................................................................................... 13
fEATURES........................................................................................................................................................................................................ 13
INSTALLATION................................................................................................................................................................................................ 14
MINIMUM DISTANCES............................................................................................................................................................................................................................14
PREPARATIONS FOR MAINTENANCE................................................................................................................................................................................................14
pELLETS AND fEEDING ................................................................................................................................................................................. 16
CHECKS AND pRECAUTIONS fOR fIRST IGNITION.................................................................................................................................... 16
THE PELLET LOADINg MOTOR DOES NOT WORK:...............................................................................................................................................................16
TOUCH SCREEN DISpLAy .............................................................................................................................................................................. 17
CONTROL pANEL AND ICONS ....................................................................................................................................................................... 18
KEy fUNCTIONS............................................................................................................................................................................................. 19
mENU STRUCTURE......................................................................................................................................................................................... 19
BASIC INSTRUCTIONS ............................................................................................................................................................................................................................19
COmmISSIONING SETTINGS......................................................................................................................................................................... 20
MAINS FREqUENCY 50/ 60Hz.............................................................................................................................................................................................................20
SET CLOCK...................................................................................................................................................................................................................................................20
SET LANgUAgE.........................................................................................................................................................................................................................................20
OpERATION AND LOGICS.............................................................................................................................................................................. 21
STby - ADDITIONAL ROOm THERmOSTAT .................................................................................................................................................. 22
ADDITIONAL ROOM THERMOSTAT FUNCTIONINg WITH STBY ACTIVE (STBY ON) ......................................................................................................22
OPERATION OF THE AMBIENT ADDITIONAL THERMOSTAT WITH STBY DISABLED [STBY OFF]..............................................................................22
AUx .................................................................................................................................................................................................................. 22
SET pOWER .................................................................................................................................................................................................... 23
TEmpERATURE SET ........................................................................................................................................................................................ 23
USER REGULATION ........................................................................................................................................................................................ 23
BURN POT CLEANINg.............................................................................................................................................................................................................................23
STAND BY.....................................................................................................................................................................................................................................................23
ENABLE CHRONO.....................................................................................................................................................................................................................................24
EASY SETUP ................................................................................................................................................................................................................................................24
STATUS ............................................................................................................................................................................................................ 24
USER mENU..................................................................................................................................................................................................... 24
CHRONO ......................................................................................................................................................................................................................................................25
LANgUAgE..................................................................................................................................................................................................................................................25
DISPLAY........................................................................................................................................................................................................................................................25
RESET.............................................................................................................................................................................................................................................................26
OTHER fUNCTIONS........................................................................................................................................................................................ 26
OUTLET AIR.................................................................................................................................................................................................................................................26
COMBUSTION CHAMBER CLEANINg ...............................................................................................................................................................................................26
PRELOAD......................................................................................................................................................................................................................................................26
CLEANING AND mAINTENANCE................................................................................................................................................................... 27
mAINTENANCE............................................................................................................................................................................................... 27
CLEANINg AND MAINTENANCE BY THE USER.............................................................................................................................................................................27
ROUTINE mAINTENANCE pERfORmED by qUALIfIED TECHNICIANS .................................................................................................... 29
DECOMMISSIONINg (END OF SEASON) .........................................................................................................................................................................................29
DISpLAy .......................................................................................................................................................................................................... 31
ALARmS .......................................................................................................................................................................................................... 31
GUARANTEE TERmS ...................................................................................................................................................................................... 33
DISpOSAL........................................................................................................................................................................................................ 34
ATTENTION
SURfACES CAN bECOmE VERy HOT!
ALWAyS USE pROTECTIVE GLOVES!
During combustion, thermal energy is released that signicantly increases the heat of surfaces, doors, handles, controls, glass, exhaust
pipes, and even the front of the appliance. Avoid contact with those elements if not wearing protective clothing (protective gloves
included). Make sure children are aware of the danger and keep them away from the stove during operation.