
8
8.0 MAINTENANCE
8.1 It is recommended that a pool water sample is taken to a pool shop and tested once per
month for analysis. Please refer to Section 2.0, 6.0 and 7.0 for additional information.
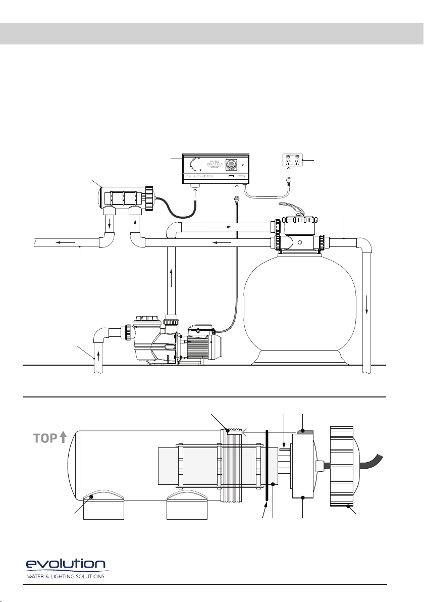
8.2 The Low Salt Oxidiser cell operates most efficiently when it is clean. As a natural result
of the electrolytic process, calcium is attracted to the titanium plates in the cell. The
self-cleaning feature helps to inhibit such build-up and scaling. However, the attraction
of calcium and other minerals is inevitable, and eventually, it must be removed by
manual cleaning.
8.3 The transparent housing of the cell allows easy visual inspections, and with correct
water chemistry, the cell will only need cleaning approximately every 3-6 months. In
regions with hard water (high calcium levels), more frequent cleaning may be required.
8.4 To clean the cell follow these instructions:
1. Turn off power to the Oxidiser and pump.
2. Remove the cell from the cell housing by loosening the cell collar and pulling the
cell out of the housing. If required, disconnect the cell cable wires at the junction box
underneath the power pack (these must be reconnected firmly and tightly).
3. With the cell removed, use a high-pressure hose nozzle to spray off as much loose
scale as possible. Do not use any sharp or metallic objects to remove scale, as this will
damage the cell.
4. If further cleaning is required, the cell needs to be cleaned in a mixture of 1 part
Hydrochloric Acid to 10 parts water. Mix the acid solution in a bucket or tube that will
fit the cell.
5. iWARNING: Chemical Hazard - When mixing acid with water, always add the
acid to the water, never add water to the acid. When using the acid, ensure to use
rubber gloves and appropriate eye protection and follow safety directions on the
Hydrochloric Acid label.
6. Place the cell into the cleaning solution submerging the plates and ensuring that
the cell head (Section 3.0 Fig. 2) does not contact the acid solution. Once the cell is
clean, remove it from the cleaning solution and rinse. Replace the cell into the housing
in the reverse manner to the steps above.
8.5 Only qualified electrical technicians should service the power pack. For the nearest
Evolution recommended service technician, please contact Evolution Water & Lighting
Solutions on 07 5565 0000 or email us at service@evolutionwls.com.au.