2
Electronic unit Type 12B2 for series 1200 panels
INTRODUCTION
With the Digit Digit 2 Wires electronic unit Type 12B2 it is possible to
build series 1200 audio panels with alphanumeric keyboard and dis-
play complete with 2-line, 16-character each, display.
The electronic units are to be used with series 1200 plates and
components, supplied separately.
Selection of the elements starts with the plate for the standard electro-
nic unit, continuing with the addition of any extra plates that make it
possible to expand the standard modules. To complete the panel, the
box and frame versions are selected according to the type of panel
installation; surface wall-mounted or flush-mounted.
DESCRIPTION
Type 12B2 corresponds to the electronic unit for building an electronic
audio plate with alphanumeric keyboard and display.
This unit provide the facility to create exclusively audio door entry instal-
lations with only 2 polarised wires to the cable riser.
The entrance panels are designed to operate either alone or together
with other entrance panels by interconnecting the specific terminal
boards; a maximum of 2 additional panels can be connected in parallel
with the main panel by adding one additional wire from one entrance
panel to the next. (no more than 3 panels per installation).
Electronic entrance panels can also generate different call codes by
means of the numerical keypad, with values from 1 to 9999. A maximum
of 200 users can be configured in the system.
Facility to connect one interphone to another interphone with the same
call (max. 2 interphones connected in parallel).
The front of the panels feature "External Volume - 2", "Internal Volume
- 3" and "Audio Balance - 1" controls, which are preset in the factory. If
necessary we recommend exclusively adjustment of "External Volume"
and, if necessary, adjustment of "Balance" in the case of feedback on
the speech unit, turning the specific trimmer slightly clockwise or anti-
clockwise until the feedback howl is eliminated. In addition, the entran-
ce panel can be programmed directly from the keypad for the technical
parameters programming phase.
INSTALLATION
The assembling and the installation of the electronic units for the 1200
series plates require the following phases:
1- Define the plate for the electronic base unit and possible additional
plates (see components on page 3).
2- Define the back boxes and the frames for the surface wall-mount or
flush-mount installation (see accessory on page 4).
3- Install the flush-mounted wall box or surface-mounted wall box at
suitable height. Route the wires through the hole at the bottom of the
box.
4- Fix the rainproof cover on the back box.
5- Fix the terminal box of the base module to the module holder frame
of the entrance panel.
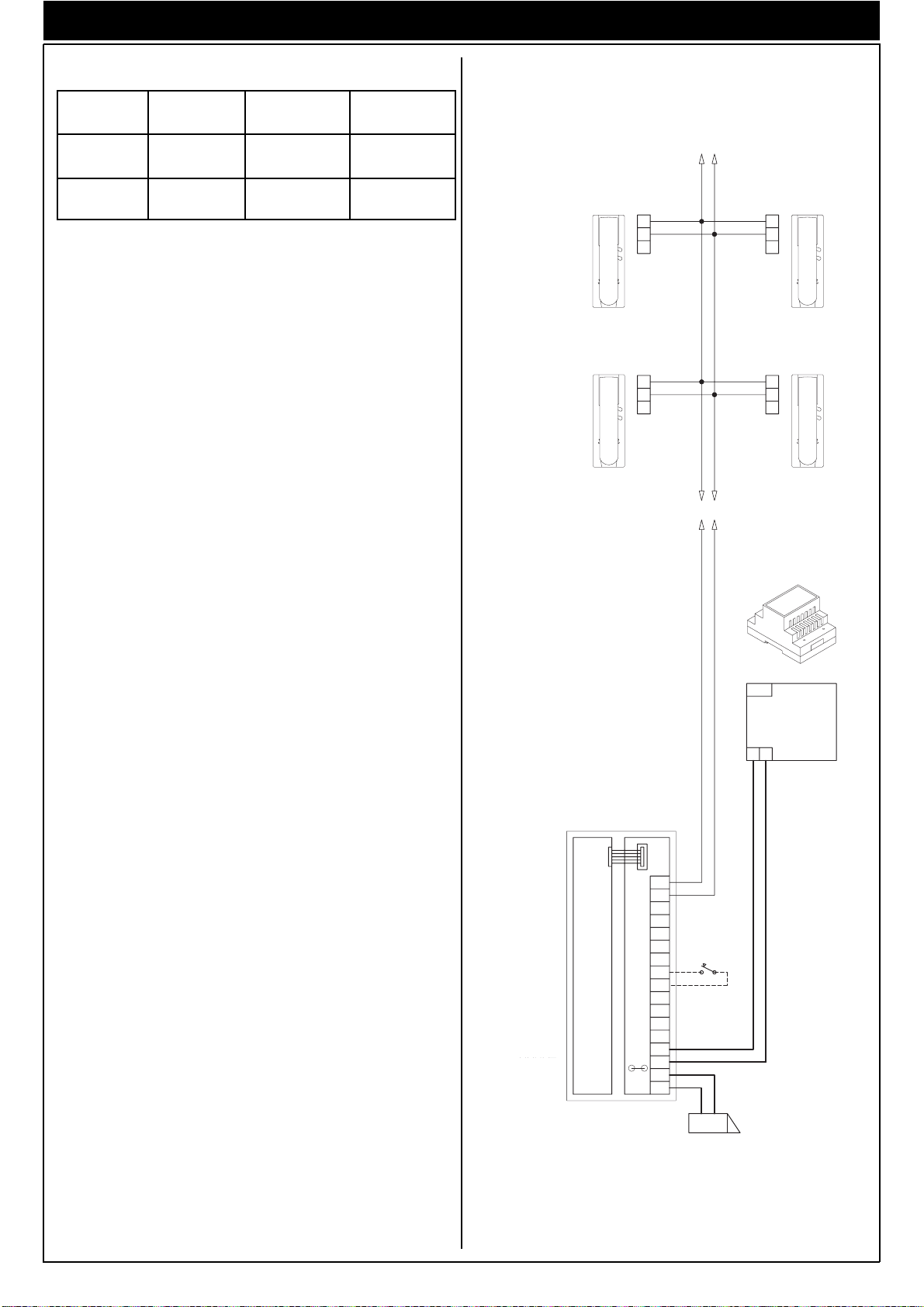
6- Connect the terminal block to the system as shown in the wiring dia-
gram.
7- Fix the module holder frame to the back boxes
8- Connect the electronic unit of the base module to the plates with
name-tags.
9- Insert the electronic unit and the additional modules in the module
holder frame of the entrance panel.
10-Insert the microphone of the electronic base unit in the module hol-
der frame of the entrance panel (Fig. 8, Part 1).
11- Program the entrance panel.
12- Insert the external plate of the electronic unit in the module holder
frame and the additional entrance panels in the remaining module
holder frames.
13- Close the panel
BASIC MODULES
The basic modules comprise: an electronic unit and a connection termi-
nal block. The electronic unit is equipped with a speech unit, a backlit
alphanumeric display, a keypad, and wiring for connecting the terminal
block.
SAFETY INSTRUCTIONS / INTRODUCTION
SAFETY INSTRUCTIONS FOR INSTALLERS
- Carefully read the instructions on this leaflet: they give important infor-
mation on the safety, use and maintenance of the installation.
- After removing the packing, check the integrity of the set. Packing
components (plastic bags, expanded polystyrene etc.) are dangerous
for children. Installation must be carried out according to national safe-
ty regulations.
- It is convenient to fit close to the supply voltage source a proper bipo-
lar type switch with 3 mm separation (minimum) between contacts.
- Before connecting the set, ensure that the data on the label corre-
spond to those of the mains.
- Use this set only for the purposes designed, i.e.for electric door-open-
er systems. Any other use may be dangerous. The manufacturer is not
responsible for damage caused by improper, erroneous or irrational
use.
- Before cleaning or maintenance, disconnect the set.
- In case of failure or faulty operation, disconnect the set and do not
open it.
- For repairs apply only to the technical assistance centre authorized by
the manufacturer.
- Safety may be compromised if these instructions are disregarded.
- Do not obstruct opening of ventilation or heat exit slots and do not
expose the set to dripping or sprinkling of water.
- Installers must ensure that manuals with the above instructions are left
on connected units after installation, for users' information.
- All items must only be used for the purposes designed.
WARNING: to avoid the possibility of hurting yourself, this unit must be
fixed to the wall according to the installation instructions.
- This leaflet must always be enclosed with the equipment.
Directive 2002/96/EC (WEEE)
The crossed-out wheelie bin symbol marked on the product indicates that
at the end of its useful life, the product must be handled separately from
household refuse and must therefore be assigned to a differentiated col-
lection centre for electrical and electronic equipment or returned to the
dealer upon purchase of a new, equivalent item of equipment.
The user is responsible for assigning the equipment, at the end of its life,
to the appropriate collection facilities.
Suitable differentiated collection, for the purpose of subsequent recycling
of decommissioned equipment and environmentally compatible treat-
ment and disposal, helps prevent potential negative effects on health and
the environment and promotes the recycling of the materials of which the
product is made. For further details regarding the collection systems
available, contact your local waste disposal service or the shop from
which the equipment was purchased.
Risks connected to substances considered as dangerous (WEEE).
According to the WEEE Directive, substances since long usually used on
electric and electronic appliances are considered dangerous for people
and the environment. The adequate differentiated collection for the sub-
sequent dispatch of the appliance for the recycling, treatment and
dismantling (compatible with the environment) help to avoid possible
negative effects on the environment and health and promote the recy-
cling of material with which the product is compound.