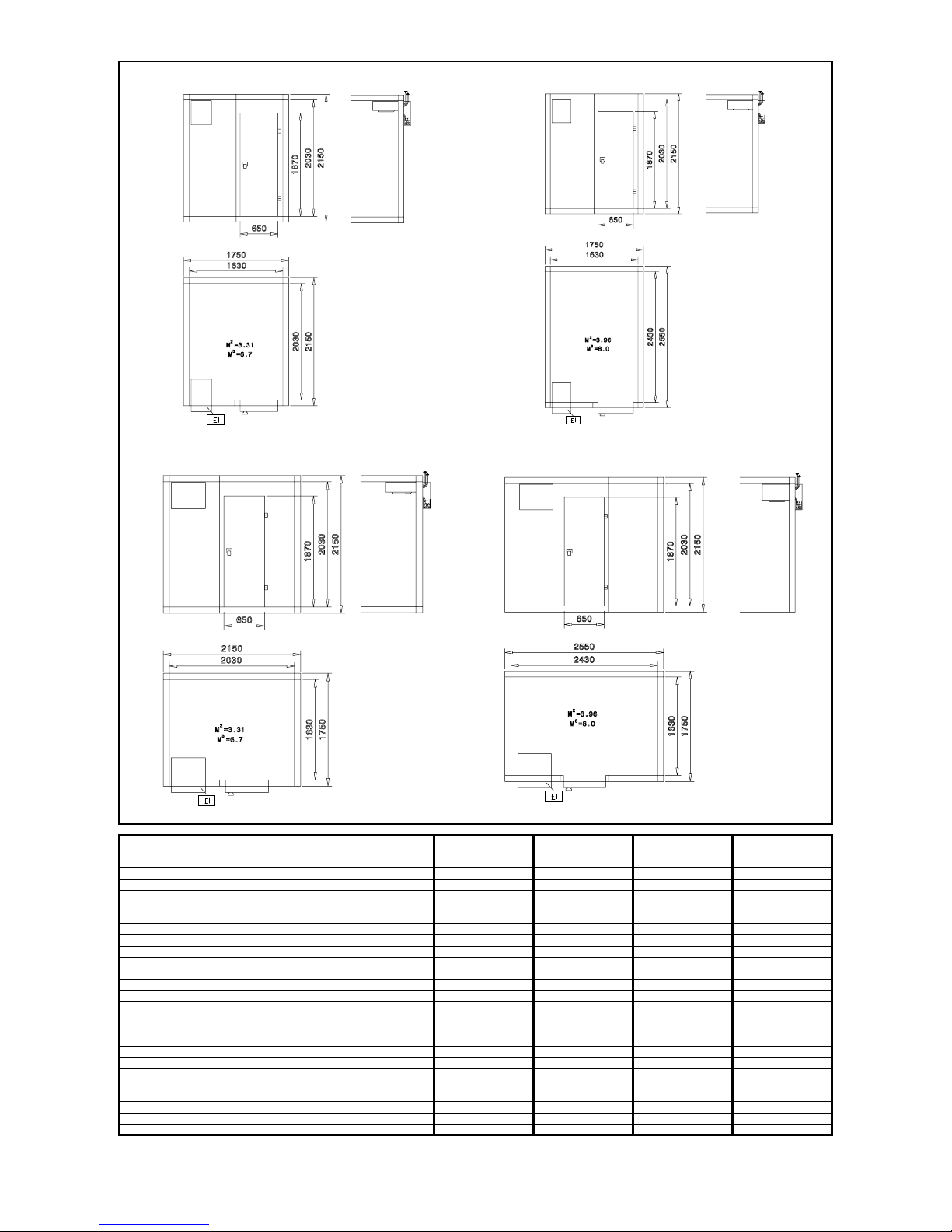
Electrolux Cold Rooms
-2/+2º - 6,7/8 m³ - Split unit
Electrolux cold rooms are available in a vast range of different sizes and functionalities. They are designed to
work in tropical temperatures (+43ºC). The range consists of coolers (-2/+2°C) with panels 60 mm in thickness,
freezer cold rooms (-18/-20ºC) with panels 100 mm in thickness and with built-in or remote refrigerating unit.
The four models detailed on this sheet are split unit coolers with usable volume of 6,7 to 8 cubic meters.
Models come with panels, gas pre-charged cooling unit and piping.
Shelving as accessory
CONSTRUCTION
• Very short assembly time. Expert
refrigeration knowledge is not required
for installation.
• New vacuum injection technology
which permits to have significant
enhancement on the performances of the
panels and high quality.
• Panels are cladded inside and outside
with anti-scratch prepainted galvinized
steel. Polyurethane foam insulation. CFC
and HCFC free.
• Rounded internal and external corners.
All edges are radiused.
• Anti-slip walk-in floor.
• The fast-fit centering system allows
perfect alignment of the panels. These
new fasteners are made of high resistant
composite materials and guarantee
perfect grip of all components.
• Airtight panels connection. All sides of
panels have PVC gasket foamed in place
to assure airtight and secure fitting. Any
other sealing between panels on site is
eliminated.
• The refrigeration unit is mounted on a
modular panel for easy installation and
quick set-up of the cold room. All the
refrigeration units are tropicalized (+43°C)
and use R404A refrigerant and are
supplied with a high/low temperature
alarm.
• If the floor on which the cold rooms will
be installed presents irregularities or
unevenness up to 1 cm, then the surface
of the floor should be levelled.
PERFORMANCES
• Defrosting through heated gas with
re-evaporation of defrosting water
permits to reduce the total power
installed, shorten defrosting time and
limit the warming of the cold room.
• All models are equipped with internal
lighting (waterproof IP54) mounted on the
refrigerating unit panel.
• The control panel includes: luminous
ON/OFF switch, internal lighting switch,
cold room functioning indicator, defrost
cycle indicator, temperature and
thermostat control with digital display.
• The right-hinged door is available as
standard (left-hinged door on request)
and constructed with smooth rounded
profiles, cam-lift action hinges, airtight
magnetic gasket and high insulation thus
allowing to reduce energy and operating
costs.
• Newly designed handle complete with
lock and interior safety release to prevent
entrapment when the door is accidentally
locked from outside.
• HACCP monitoring is possible trough a
serial port supplied on all models.
• Conform to ruling European safety and
hygiene standards and H marked.