
Xf Two-Way, MB/HF System
XfTwo-Way, MB/HF System
4
X-Array
TM
XfTwo-Way,MB/HFSystem
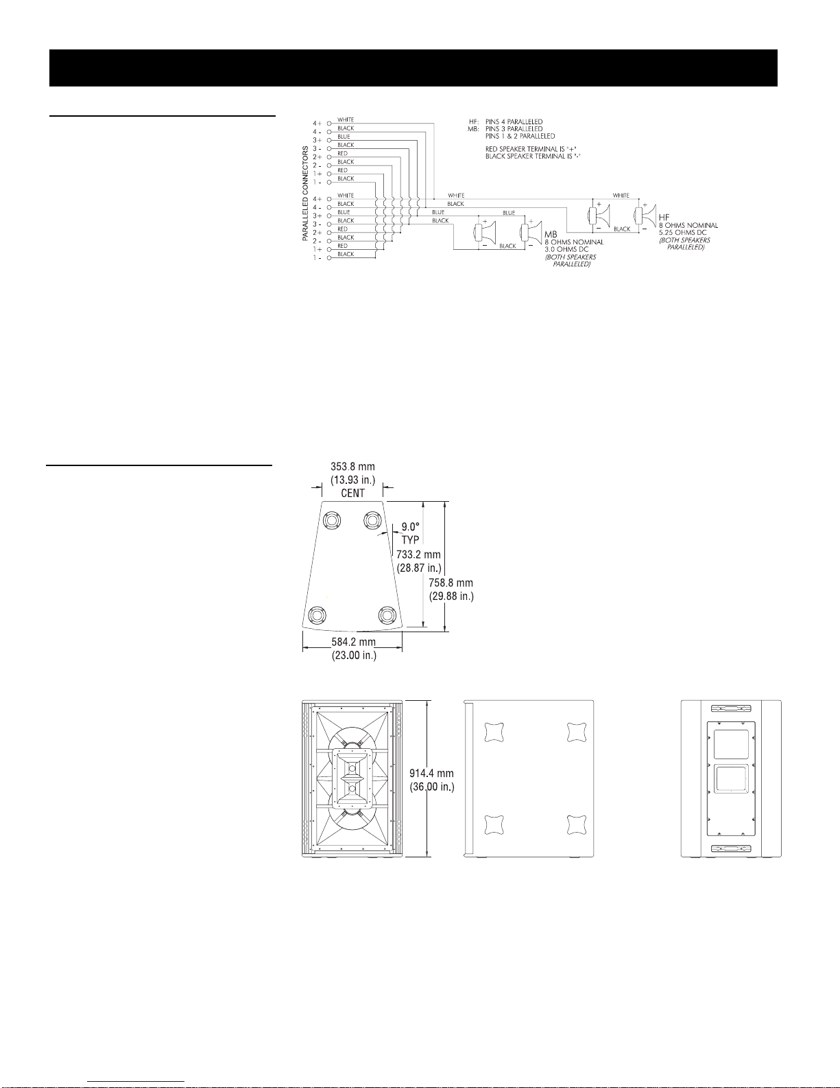
drivers mounted on two 40° x 20° constant-
directivity horns, and each shall have a
16-ohm,76.2-mm(3-in.)diametervoicecoil,
a76.2-mm (3-in.) titanium dome, a 35.6-mm
(1.4-in.) exit, a neodymium magnetic motor
structure, and a 75-watt power rating.
The loudspeaker system also shall have two
305-mm (12-in.) mid-bass drivers mounted
on a dual-throat mid-bass horn, and each
shall have a 16-ohm, 63.5-mm (2.5-in.) di-
ameter voice coil, a neodymium magnetic
motor structure, and a 300-watt power rat-
ing. The loudspeaker shall have a rigging
system enabling a column of loudspeakers
to be hinged at their back corners, with rela-
tive downward angles set by adjustable rig-
ging straps at the front. The enclosure shall
be constructed of 18-mm thick, 13-ply birch
plywood, and shall be trapezoidal, forming
an 18° wedge, and be 914 mm (36.00 in.)
high, 584 mm (23.00 in.) wide at the front,
354 mm (13.93 in.) wide at the back and 759
mm (29.88 in.) deep, and shall weigh 87.1
kg (192 lb). The loudspeaker system shall
be the Electro-Voice Xf.
Rigging Accessories:
Grid: This ATM Fly-Ware™ “T” shaped,
all-steel-construction grid was specifically
designed as a single column of X-Array™
systems. Multiple grids can be linked to-
gether with couplers on front and back re-
tractable arms, the position of which sets the
splay angle between adjacent columns. Part
number MEGS-4000-T. ATM Fly-ware™,
2100S.WilmingtonAve.,Carson,CA90810
USA, 310/834-5914
Xrhg Grid Hinge: Two Xrhg grid rigging
hinges are used to attach the rear of the
top enclosure in a column to the rear of an
X-Array™compatible grid. Each hinge con-
sistsoftwoprecision-machinedsteelrigging-
track fittings connected by an alloy-steel
chain.Partnumber 510-2999. Electro-Voice,
600 Cecil St., Buchanan, MI 49107 USA,
616/695-6831 or 800/234-6831
XrhpPickup Hinge: Two Xrhp pickup rig-
ging hinges are used to create custom rig-
ging assemblies to attach to the rear of the
topenclosurein a column when an ATM grid
is not used. Each hinge consists of one pre-
cision-machined steel rigging-track fitting
with an alloy-steel chain. Part number
510-3000. Electro-Voice, 600 Cecil St.,
Buchanan, MI 49107 USA, 616/695-6831
or 800/234-6831
XrhlLinking Hinge: Two Xrhl linking rig-
ging hinges are used to link two enclosures
together at the rear. Each hinge consists of
two precision-machined steel rigging-track
fittings connected by a heavy-duty steel
hinge.Partnumber510-2998.Electro-Voice,
600 Cecil St., Buchanan, MI 49107 USA,
616/695-6831 or 800/234-6831
XrslLong Rigging SteelStraps: Two Xrsl
longriggingstrapsareusedatthefrontof two
enclosures to adjust their relative vertical
angles. The Xrsl may also be used to attach
the front of the top enclosure to the ATM
grid when upward angles are not required.
Each all-steel strap consists of two New
Haven NH32102-2 double-stud fittings con-
nected by black plastic-coated wire rope.
SoundManufacturingInc., 3336PrimeraAve.,
Hollywood, CA 90068 USA, 213/850-5042
or ATM Fly-ware™, 2100 S. Wilmington
Ave.,Carson, CA 90810 USA, 310/834-5914
Xrss Short Rigging Steel Straps: Two
Xrss short rigging straps are used to at-
tach the front of the top enclosure to the
ATM grid. The Xrss may also be used at
the front of two enclosures when a limited
range of vertical angles are required. The
all-steel Xrss utilizes the same construc-
tion as the Xrsl. Sound Manufacturing Inc.,
3336 Primera Ave., Hollywood, CA 90068
USA, 213/850-5042 or ATM Fly-ware™,
2100S.WilmingtonAve., Carson, CA 90810
USA,310/834-5914
New Haven NH32102-2 Fittings: The
New Haven NH32102-2 swivel-ring,
double-stud fitting recommended for at-
tachment to both the front and rear X-Ar-
ray™ rigging track is available for the user
to make custom rigging attachment hard-
ware. Sound Manufacturing, Inc., 3336
Primera Ave., Hollywood, CA 90068, USA,
213-850-5042 or ATM Fly-ware™, 2100 S.
Wilmington Ave., Carson, CA 90810 USA,
310/834-5914
General Rigging Supplies: A wide vari-
ety of standard and specialty rigging hard-
ware components for both touring and per-
manent-installation applications is avail-
able. Sound Manufacturing Inc., 3336
Primera Ave., Hollywood, CA 90068 USA,
213/850-5042 or ATM Fly-ware™, 2100 S.
Wilmington Ave., Carson, CA 90810 USA,
310/834-5914
Electronic Accessories:
Klark Teknik DN8000 Digital Control-
ler: The DN8000 digital electronic loud-
speaker controller has a two-in/five-out ar-
chitecture, with each output having pro-
grammable high-pass and low-pass filters,
four-band equalization, signal delay, com-
pressor-limiter-and noise-gate functions.
Program parameters for optimal perfor-
mance of the X-Array™ systems are avail-
able. Klark Teknik, Klark Industrial Park,
Walter Nash Road, Kidderminster,
Worcestershire DY11 7HJ England, 44-156-
274-1515
Electro-Voice Dx38 Digital Controller:
The Dx38 digital electronic loudspeaker
controller has a two-in/four-out architec-
ture, with each output having program-
mable high-pass and low-pass filters, four-
band equalization, signal delay compres-
sor and limiter functions. Program param-
eters for optimal performance of the
X-Array™ systems are available. Electro-
Voice, 600 Cecil St., Buchanan, MI 49107
USA,616/695-6831
Electro-Voice P3000 Power Amplifiers:
The stereo P3000 power amplifiers are rated
at 800 watts into 8 ohms, or 93-volts rms
short term. The amplifiers are 3-U high and
weigh 28 kg (62 lb) each. Electro-Voice,
600 Cecil St., Buchanan, MI 49107 USA,
616/695-6831
X-Array™ Amplifier Racks: These 16-U
racks will hold four Electro-Voice P3000
poweramplifiers,one Klark Teknik DN8000
digital controller, 1-U light module, and a
2-U multipin patch panel. The aluminum-
frame/wood-panel racks are vibration-iso-
lation mounted on heavy-duty wheel
boards and come prewired for AC power,
audio and control signal sends and Neutrik®
Speakon speaker connectors. db Sound,
L.P.,1219RandRoad,DesPlaines,IL60016
USA,847/299-0357
X-Array™ Speaker Cables: Eight con-
ductor cable with four #11 AWG conduc-
tors and four #13 AWG connectors. The
larger conductors are used in the LF bands