Edwards 3-PPS/M Instrucciones de montaje

© 2014 UTC Fire & Security Americas Corporation, Inc. 1 / 4 P/N 270495-EN • REV 06 • ISS 10JUL14
Power Supplies
Installation Sheet
Description
This installation sheet applies to the following models:
•3-PPS/M(-230) Primary Power Supply
•3-BPS/M(-230) Booster Power Supply
•3-BBC/M(-230) Booster/Charger Supply
3-PPS/M(-230) Primary Power Supply
The 3-PPS/M(-230) Primary Power Supply provides the required
power and related supervision functions for the control panel. The
3-PPS/M(-230) comprises a heat sink assembly and a monitor module.
The monitor module plugs into the rail, and the heat sink and the heat
sink assembly mount onto the rail chassis.
The 3-PPS/M(-230) provides filtered, regulated power to the rail
chassis modules as well as 24 VDC for operating ancillary equipment.
AC power and battery connections are made to fixed terminals on the
heat sink assembly, away from the panel’s power-limited wiring.
The 3-PPS/M(-230) provides a dual rate constant current battery
charger circuit with automatic temperature compensation. To prevent
memory problems and total battery discharge, a battery monitor circuit
supervises the standby batteries and disconnects them when they
reach the low battery threshold.
The 3-PPS/M(-230) checks the AC input source and automatically
switches to battery power in the event of a brownout or loss of AC
power. In the event of a failure of one or more booster power supplies,
the 3-PPS/M(-230) determines its ability, along with the surviving
booster supplies, to supply the load. If the load exceeds the ability of
the primary and surviving booster supplies to meet the demand, the
3-PPS/M(-230) automatically switches in the standby batteries. The
3-PPS/M(-230) also switches in the standby batteries if an overload
causes the heat sink temperature to reach a high level.
The power supply monitor module provides the interface between the
3-PPS/M(-230) and the panel, making the required data and power
connections to and from the rail chassis. The monitor module requires
one rail space and is secured to the assembly using snap rivet
fasteners. The monitor module has a hinged front panel for mounting
displays or a blank protective faceplate.
3-BPS/M(-230) Booster Power Supply and 3-BBC/M(-230)
Booster/Charger Supply
The 3-BPS/M(-230) and 3-BBC/M(-230) booster power supplies are
used to provide additional power over and above that of the
3-PPS/M(-230). Each model is composed of a heat sink assembly and
a monitor module. The monitor module plugs into the rail and the heat
sink assembly mounts onto the rail chassis.
Depending on the size of the cabinet, up to three booster power
supplies can be added to make a total of 28 A available for both
internal and external applications. Each booster supply provides
filtered, regulated power to the rail chassis modules as well as 24 VDC
for operating ancillary equipment.
A 3-BPS/M(-230) supply can share a common set of standby batteries
with the 3-PPS/M(-230) or 3-BBC/M(-230). Each 3-BPS/M(-230)
supervises its own battery connection but does not have any battery
charging capability. The 3-BBC/M(-230) is capable of charging standby
batteries.
Each booster supply shares the panel's 24 VDC electrical load with the
3-PPS/M(-230). In the event of a booster power supply failure, a
trouble is annunciated, and the panel load is distributed among the
remaining operational power sources. Should the load ever exceed the
ability of the operable power sources to supply the power, as in the
event of an alarm, the system automatically switches to standby
batteries.
The booster supply monitor module provides the interface between the
booster power supply and the panel, making the required data and
power connections to and from the rail chassis. The monitor module
requires one rail space and is secured to the assembly using snap
rivet fasteners. The monitor module has a hinged front panel for
mounting displays or a blank protective faceplate.
Installation
Installing a heat sink assembly
Heat sink assemblies are installed on the rail chassis behind the rail
module connectors. Refer to Figure 1.
To install a heat sink assembly:
1. Attach the heat sink assembly to the four threaded mounting studs
on the rail chassis using lock nuts provided in the hardware kit.
2. Secure the bottom edge of the heat sink assembly to the threaded
standoffs on the rail chassis using screws provided in the
hardware kit.
3. Secure the top edge of the heat sink assembly to the rail chassis
using the two threaded standoffs provided in the hardware kit.
4. Attach the AC terminal block cover to the threaded standoffs using
two #6-32 x 1/2 pan head screws.
Notes
•Always mount the heat sink assembly for the primary power supply
onto the left mounting space of the rail chassis in which the central
processor module is installed.
•Booster supplies, if installed, can be mounted on any rail chassis,
but no more than three booster supplies may be installed in the
same enclosure.
TB1
P3
TB2
P2
+BATTERY-MON
TEMP
TB1
AUXILIARY POWER
1 2
Heat sink
assembly
Monitor
module

2 / 4 P/N 270495-EN • REV 06 • ISS 10JUL14
Figure 1: Heat sink assembly installation
Installing a monitor module
Caution: Equipment damage hazard. This product is sensitive to
electrostatic discharge (ESD). To avoid damage, follow accepted ESD
handling procedures.
To install a monitor module:
1. Plug the cable harness and ribbon cable into the monitor module
as shown in Figure 2. Ensure the cable connections are secure.
2. For a power supply monitor module, align the module to the guide
posts on slot 3 of the rail chassis.
For a booster supply monitor module, align the module to the
guide posts on slot 3 or slot 5 of the rail chassis, whichever is
closest to the heat sink assembly.
3. Route the cable harness over and behind the bottom rail and
connect it to P2 on the heat sink assembly. Push in until the
connector clicks.
4. Route the ribbon cable under the bottom rail and connect it to P3
on the heat sink assembly.
5. Plug the module into the rail connectors and lock it into place using
the snap rivet fasteners.
Figure 2: Power supply to monitor module cable connections
Figure 3 shows a primary power supply and booster power supply
installed in a chassis before they are wired.
Figure 3: Primary and booster power supplies installed in a
chassis
Wiring
Install and wire these power supplies in accordance with applicable
national and local codes, ordinances, and regulations.
Mains power wiring
Connect the mains power wiring after all power supplies have been
installed. No more than one primary power supply and three booster
supplies may be connected to a single mains AC circuit. All mains
power wiring must be double insulated.
WARNING: Electrocution hazard. To avoid personal injury or death
from electrocution, remove all sources of power and allow stored
energy to discharge before installing or removing equipment. Ensure
that the mains power cannot be inadvertently switched on.
#8-32 lock nut
(4 places)
#6-32 x 3/4 threaded standoff
(2 places)
#6-32 x 1/2 pan head screw
#6 lock washer
#6 flat washer
(2 places)
J8
J9
J10
J11
Right mounting area for installing
booster power supply
P2
TB1
H
120 VAC
GN
P3
TB2
P2
+BATTERY- MON
TEMP
P2
J4
P3
P6
Cable harness
(P/N 250187)
Ribbon cable
P/N 250189 (primary monitor module)
P/N 250188 (booster monitor module)
P3
P3
TB2
MON
TEMP
J8
J9
J10
J11

P/N 270495-EN • REV 06 • ISS 10JUL14 3 / 4
To connect the mains power wiring:
1. Ensure that the mains AC circuit is de-energized.
2. Connect the mains AC conductors from the dedicated mains
distribution circuit to TB1 on the power supplies (see Figure 4).
3. Secure the power supply cover to the standoffs on the top edge of
each power supply.
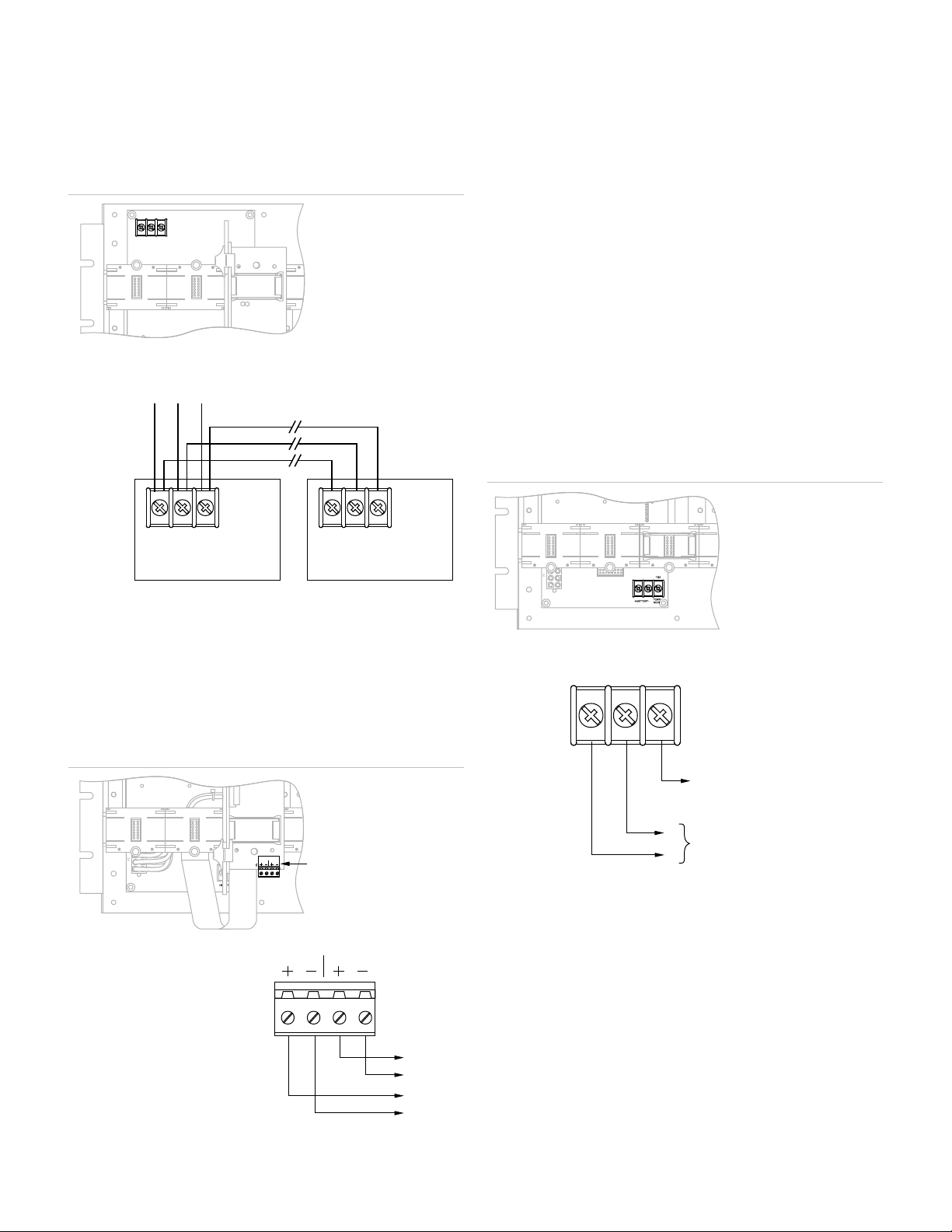
Figure 4: Mains power wiring
Auxiliary 24 VDC riser wiring
Connect the 24 VDC auxiliary power riser conductors to TB1 on the
power supply monitor module as shown in Figure 5.
Note: Current loads must be evenly distributed across all power
supplies.
Figure 5: 24 VDC riser wire connections
Standby battery wiring
Connect the standby batteries to TB2 on the heat sink assembly as
shown in Figure 6and according to the following requirements:
•Each set (pair) of batteries must be connected to a separate
battery charging circuit, either on a 3-PPS/M(-230) or on a
3-BBC/M(-230).
•Each power supply must be connected to only one set of batteries.
A 3-PPS/M(-230) and a 3-BPS/M(-230) can be wired to the same
set of batteries, as well as a 3-BBC/M(-230) and a 3-BPS/M(-230),
but never a 3-PPS/M(-230) and a 3-BBC/M(-230).
•Each power supply must have its own separate pair of wires
connecting it to a set of standby batteries. Daisy chaining battery
connections from power supply to power supply is not allowed.
•All battery wiring must be the same length and wire gauge.
•All batteries connected to the same control panel must have the
same ampere-hours rating, be from the same manufacturer, and
have the same manufacturing date code.
•Batteries greater than 17 Ah and any additional batteries must be
installed in an external battery cabinet.
•If an external battery cabinet is used to house standby batteries,
the cabinet must be installed within three feet and in the same
room as the control panel.
Figure 6: Standby battery wire connections
Table 1 lists typical battery and power supply combinations.
TB1
H
GN
TB1
120 VAC
L1
GL2 230 VAC
H
GN
TB1
120 VAC
L1
GL2 230 VAC
Dedicated 120 V or 230 V mains
power distribution circuit
Primary power supply Last booster supply
in the same cabinet
TB1
AUXILIARY POWER
1 2
AUXILIARY POWER
12
24 VDC
0 VDC
24 VDC
0 VDC
TB1
TB2
BATTERY TEMP
MON
Not used
To plus and minus terminals
on cabinet battery or to plus and
minus terminals on power
distribution bus in remote cabinet
+ −
−
+
TB2

4 / 4 P/N 270495-EN • REV 06 • ISS 10JUL14
Table 1: Typical battery and power supply combinations
Total current
Power supplies required Battery sets required
7A
1 3-PPS/M(-230) 1 set, 65 Ah max.
14 A
1 3-PPS/M(-230)
1 3-BPS/M(-230) 1 set, 65 Ah max.
1 3-PPS/M(-230)
1 3-BBC/M(-230) 2 sets, 65 Ah max.
21 A
1 3-PPS/M(-230)
2 3-BPS/M(-230) 1 set, 65 Ah max.
1 3-PPS/M(-230)
2 3-BBC/M(-230) 3 sets, 65 Ah max.
28 A
1 3-PPS/M(-230)
3 3-BPS/M(-230) 1 set, 65 Ah max.
1 3-PPS/M(-230)
3 3-BBC/M(-230) 4 sets, 65 Ah max.
Specifications
3-PPS/M(-230), 3-BPS/M(-230), and 3-BBC/M(-230)
Installation
Heat sink assembly
Monitor module
Mounts onto the rail chassis
Mounts in one rail space
Power input
120 VAC, +10%, −15%, 3.0 A, 50 to
60 Hz
230 VAC, +10%, −15%, 1.5 A, 50 to
60 Hz (-230 only)
Brownout level
≤ 102 VAC
≤ 195 VAC (-230 only)
Output ratings
Special application
s
Total
Internal DC
Auxiliary DC
R
egulated applications
Total
Auxiliary DC
24 VDC at 7.0 A (internal and auxiliary
outputs)
24 VDC at 7.0 A max.
Two 24 VDC at 3.5 A max.
Power-limited and supervised for ground
faults and shorts
For special applications, see the EST3
Compatibility List (P/N 3100427-EN)
24 VDC at 4.5 A (internal and auxiliary
outputs)
Two: one 24 VDC at 3.5 A max. for all
circuits except the regulated NAC; one
24 VDC at 1.0 A max. for regulated NACs
to 3-IDC8/4 modules only
Power-limited and supervised for ground
faults and shorts
Termination
AC input
Batteries
Internal DC output
Auxiliary DC output
Terminals on heat sink assembly
Terminals on heat sink assembly
LRM chassis rails via monitor module
Removable plug-in terminal strips on
monitor module
Current requirements
3-PPS/M(-230)
3-BPS/M(-230)
3-BBC/M(-230)
Included with CPU current requirements
Alarm: 50 mA
Standby: 50 mA
Alarm: 70 mA
Standby: 70 mA
Operating environment
Temperature
Relative humidity
32 to 120°F (0 to 49°C)
0 to 93% noncondensing
3-PPS/M(-230) and 3-BBC/M(-230)
Battery charging capacity
10 to 65 Ah
Type
Temperature compensated dual rate
(1.5 A and 3.0 A)
Supervision
Low AC
Low battery
High battery
Discharged battery
Ground fault
< 22.5 VDC
< 18 VDC
< 10 kΩ
3-BPS/M(-230) only
Supervision
Low AC
Low battery
Ground fault
< 22.5 VDC
< 10 kΩ
Contact information
For contact information, see www.edwardsutcfs.com.
Este manual sirve para los siguientes modelos
5
Otros manuales de Fuente de alimentación de Edwards



















