
5
Plug into a grounded 3-prong outlet.
Never remove the grounding prong from the plug.
Never use an adapter to bypass the grounding prong.
DO NOT use an extension cord.
Failure to follow these instructions can result in fire, electrical shock, or death.
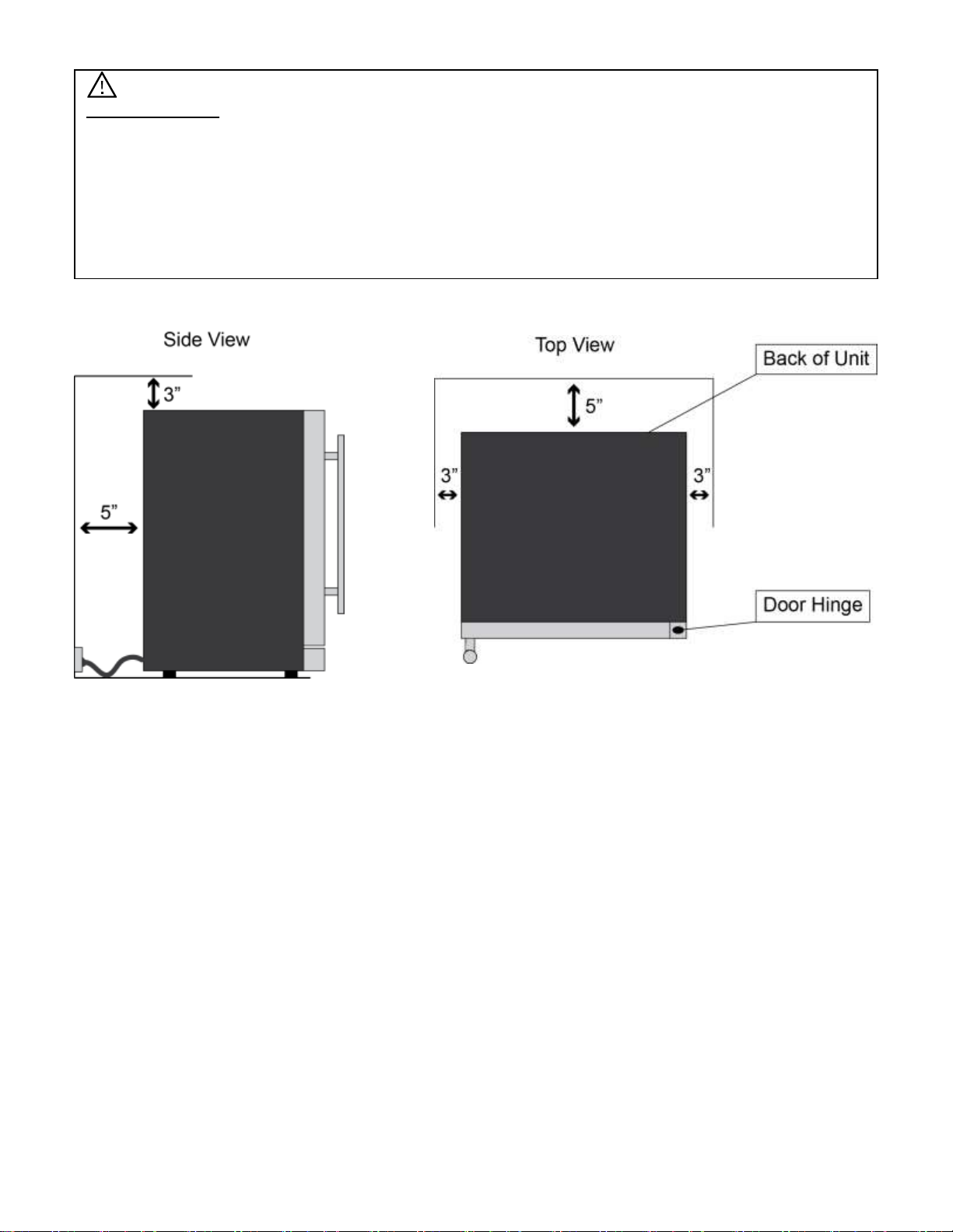
Important: Once you are ready to install it in a cabinet or directly on the floor, you must adjust
the feet to level the beverage cooler.
Electrical Requirements
Before you move your beverage cooler into its final location, it is important to make sure you
have the proper electrical connection:
A standard electrical supply (115 V, 60Hz), properly grounded in accordance with the National
Electrical Code and local codes and ordinances, is required.
It is recommended that a separate circuit, serving only your beverage cooler, be provided. Use
outlets that cannot be turned off by a switch or pull chain.
The fuse (or circuit breaker) size should be 15 Amps.
Recommended Grounding Method
For your personal safety, this appliance must be grounded. It is equipped with a power
supply cord that has a 3-pronged grounding plug. To minimize possible shock hazard, the
cord must be plugged into a mating 3-pronged wall socket, and grounded in accordance
with the National Electrical Code and local codes and ordinances. If a mating wall socket
is not available, it is the personal responsibility of the customer to have a properly
grounded, 3-prong wall receptacle installed by a qualified electrician.
Leveling the Beverage Cooler
It is important for the beverage cooler to be leveled in order to work
properly. It can be raised or lowered by rotating the plastic sheaths
around each of the feet on the bottom of the machine. If you find that
the surface is not level, rotate the feet until the beverage cooler
becomes level. You may need to make several adjustments to level
it. We recommend using a carpenter’s level to check the machine.
1. Place a carpenter’s level on top of the product to see if the
beverage cooler is level from front to back and side to side.
2. Adjust the height of the feet as follows:
Turn the leveling feet to the right to lower that side of the
refrigerator.
Turn the leveling feet to the left to raise that side of the refrigerator.